Технические характеристики
Общие
Количество жилых комнат/спален
Внутренние не несущие перегородки
Дополнительные
Фасады
Описание проекта
Проект «Саян» — это идеальное сочетание компактности и рациональности в планировке. В настоящее время в малоэтажном строительстве наблюдается тенденция к увеличению полезной площади, и мы не отстаём от модных тенденций.
Общая площадь «Саян» составляет 68 квадратных метров, на которых расположены:
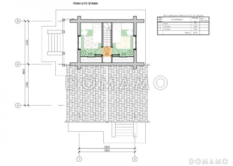
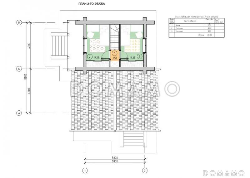
На первом этаже — гостиная площадью 19 квадратных метров, кухня площадью 17 квадратных метров и санузел площадью 4 квадратных метра. На втором этаже — две спальни по 9 квадратных метров.
Этот проект идеально подходит для молодой семьи, а также может быть реализован в коммерческих проектах, таких как базы отдыха или дома выходного дня.
Вдали от городского шума и суеты, в собственном деревянном доме, стены которого наполнены энергией леса, можно наслаждаться каждой минутой и чувствовать счастье здесь и сейчас. Проект этого уникального дома создан для комфортного проживания семьи из четырёх человек.
На первом этаже расположена просторная кухня с обеденной зоной, уютное пространство для встречи гостей и выход на летнюю веранду. На втором этаже — две просторные спальни и светлый холл, создающий атмосферу уюта и тепла. Выгодные условия и все вопросы по проекту вы можете узнать у нашего менеджера.
Состав проекта
Входит в стоимость
|
Цена, руб. |
Сроки, дней |
|
|
|
Комплект архитектурно-строительных чертежей (АС)
|
Входит в стоимость |
Готов к отправке |
|
Разрабатывается отдельно
|
Цена, руб. |
Сроки, дней |
|
|
|
Адаптация фундамента (изменение типа фундамента)
|
по запросу |
14 рабочих дней |
|
|
|
Дизайн интерьера (стоимость от 2200руб. за квад.метр площади)
|
по запросу |
30 рабочих дней |
|
|
|
Внесение изменений в проект
|
по запросу |
20 рабочих дней |
|
|
|
Фэншуй дома
|
20 000 ₽ |
14 рабочих дней |
в корзину
|
|
|
Фэншуй участка
|
15 000 ₽ |
14 рабочих дней |
в корзину
|
|
|
Фэншуй полная консультация дом+участок с выездом на объект
|
100 000 ₽ |
30 рабочих дней |
в корзину
|
Опции проекта вы можете заказать в корзине при оформлении заказа