Главная Проекты бани Проект деревянной бани с односкатной крышей

D1203 Проект деревянной бани с односкатной крышей

Сравнить проект В избранное
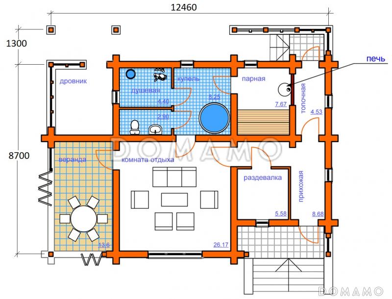
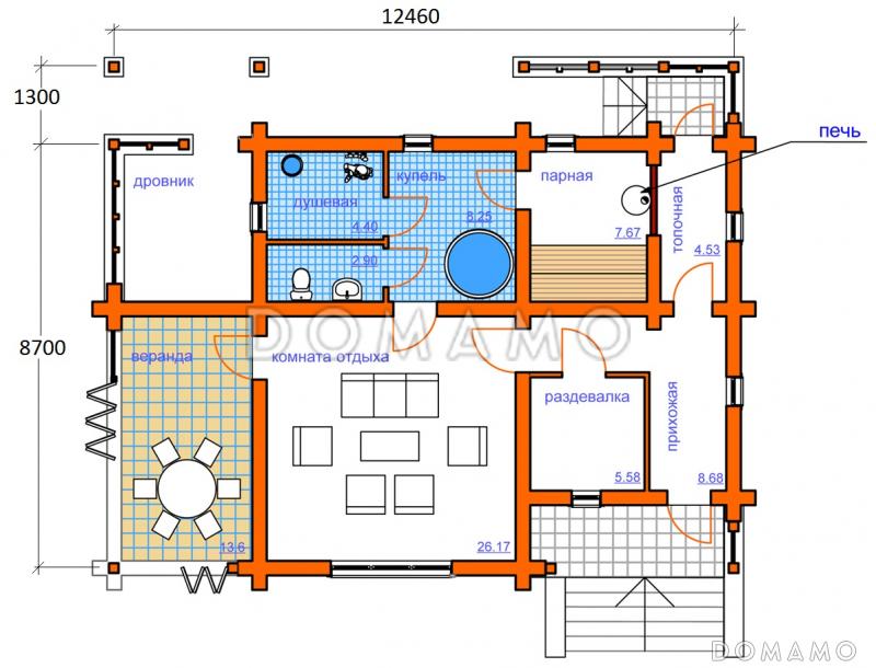
Проект деревянной бани с односкатной крышей / 1
Проект деревянной бани с односкатной крышей / 2
Проект деревянной бани с односкатной крышей / 3
Проект деревянной бани с односкатной крышей / 1
Проект деревянной бани с односкатной крышей / 2
Проект деревянной бани с односкатной крышей / 3
D1203
90 м²
Подготовка проекта:
Готов к отправке
Стоимость проекта
Купить проект
Задайте вопросы по проекту нашему архитектору
8 (800) 200-28-83
Время работы: пн-вс: с 9:00 до 20:00
Задать вопрос по проекту

Технические характеристики
Общие
Материал стен
Бревно
Общая площадь
90 м²
Приведенная площадь
84.4 м²
Этажи
1 этаж
Гараж
Нет гаража
Подвал / цокольный этаж
Без подвала
Высота в коньке
5.9 м
Кровля
Металлочерепица
Межэтажные перекрытия
По деревянным балкам
Внутренние не несущие перегородки
Каркасно-обшивные
Фундамент
Ленточный монолитный
Терраса
Терраса застекленная (веранда)
Дополнительные
Сауна/баня внутри
Есть
Купель
Есть
Количество санузлов
2
Котельная
Есть
Кладовая
1
Планы помещений
Фасады

Похожие проекты
Состав проекта
Входит в стоимость
Цена, руб. Сроки, дней
Комплект архитектурно-строительных чертежей (АС) Входит в стоимость Готов к отправке
Готово к продаже
Цена, руб. Сроки, дней
Паспорт рабочего проекта 5 000 ₽ Готов к отправке в корзину
Дополнительная копия проекта формата А3 2 000 ₽ Готов к отправке в корзину
Две дополнительные копии проекта формата А3 + 1 паспорт рабочего проекта 8 000 ₽ Готов к отправке в корзину
Разрабатывается отдельно
Цена, руб. Сроки, дней
Адаптация фундамента (изменение типа фундамента) по запросу 14 рабочих дней
Дизайн интерьера (стоимость от 2200руб. за квад.метр площади) по запросу 30 рабочих дней
Внесение изменений в проект по запросу 20 рабочих дней
Фэншуй дома 20 000 ₽ 14 рабочих дней в корзину
Фэншуй участка 15 000 ₽ 14 рабочих дней в корзину
Фэншуй полная консультация дом+участок с выездом на объект 100 000 ₽ 30 рабочих дней в корзину
Опции проекта вы можете заказать в корзине при оформлении заказа
Отзывы покупателей
Рейтинг покупателей
0 / 5 5 5 1
На основе 1 оценок покупателей
0%
0%
0%
0%
0%
Отзывы о проекте D1203
Отзыв о проекте D1203
Чтобы оставить отзыв, пожалуйста авторизуйтесь.
Подбор строительной компании
Не знаете кому доверить строительство дома? Мы можем помочь! Подберем для вас из сотен наших партнеров несколько компаний с лучшем соотношением цена/качество под конкретно ваш запрос.
Подобрать