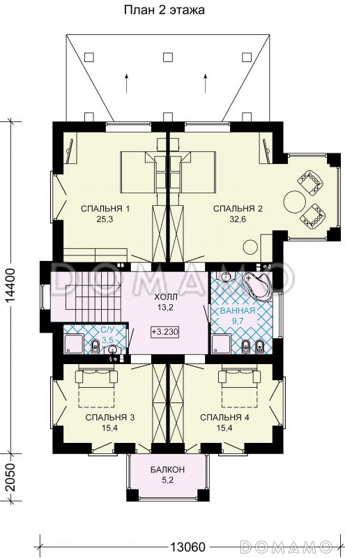
Компания Domamo предлагает проект двухэтажного дома из пеноблоков с выходом на террасу из просторной гостиной D678. Общая площадь - 247 м2, размер - 17.3х13 м. Фундамент - монолитная ж/бетонная плита, кровля - натуральная черепица, внешняя отделка - мокрая штукатурка. Для заказа проекта или внесения изменений свяжитесь с нами с помощью форм обратной связи на сайте или по телефону +7 (831) 231-05-01.
Не знаете кому доверить строительство дома? Мы можем помочь! Подберем для вас из сотен наших партнеров несколько компаний с лучшем соотношением цена/качество под конкретно ваш запрос.