Главная Проекты домов Проект двухэтажного дома с вместительным гаражом для двух авто

D1515 Проект двухэтажного дома с вместительным гаражом для двух авто

Сравнить проект В избранное
Проект двухэтажного дома с вместительным гаражом для двух авто / 1
Проект двухэтажного дома с вместительным гаражом для двух авто / 2
Проект двухэтажного дома с вместительным гаражом для двух авто / 3
Проект двухэтажного дома с вместительным гаражом для двух авто / 4
Проект двухэтажного дома с вместительным гаражом для двух авто / 5
Проект двухэтажного дома с вместительным гаражом для двух авто / 6
Проект двухэтажного дома с вместительным гаражом для двух авто / 7
Проект двухэтажного дома с вместительным гаражом для двух авто / 1
Проект двухэтажного дома с вместительным гаражом для двух авто / 2
Проект двухэтажного дома с вместительным гаражом для двух авто / 3
Проект двухэтажного дома с вместительным гаражом для двух авто / 4
Проект двухэтажного дома с вместительным гаражом для двух авто / 5
Проект двухэтажного дома с вместительным гаражом для двух авто / 6
Проект двухэтажного дома с вместительным гаражом для двух авто / 7
D1515
284 м²
Подготовка проекта:
Готов к отправке
Стоимость проекта
Купить проект
Задайте вопросы по проекту нашему архитектору
8 (800) 200-28-83
Время работы: пн-вс: с 9:00 до 20:00
Задать вопрос по проекту

Технические характеристики
Общие
Материал стен
Газобетон
Общая площадь
284 м²
Жилая площадь
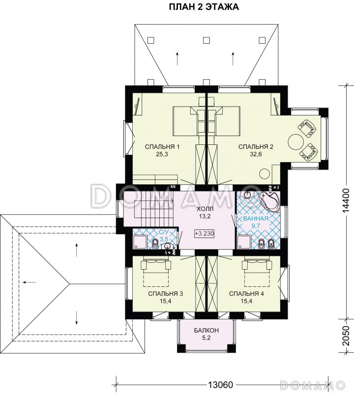
137 м²
Приведенная площадь
280.79 м²
Количество жилых комнат/спален
5
Этажи
2 этажа
Гараж
Пристроенный гараж
Количество машин
2
Подвал / цокольный этаж
Без подвала
Длина дома
19.5 м
Ширина дома
14.4 м
Высота в коньке
9.3 м
Кровля
Натуральная черепица
Облицовка внешних стен
Мокрая штукатурка
Толщина несущих наружных стен
375-400 мм
Межэтажные перекрытия
Монолитные
Внутренние не несущие перегородки
Каркасно-обшивные
Фундамент
Монолитная ж/бетонная плита
Терраса
Терраса крытая
Дополнительные
Окна
Окна до пола
,
Окна с французским балконом
Камин
Есть
Сауна/баня внутри
Нет
Площадь гостиной
37.2 м²
Площадь кухни
21.4 м²
Количество санузлов
3
Окно в ванной комнате
Есть
Котельная
Есть
Кладовая
2
Балкон / лоджия
Балкон
Планы помещений
Фасады
Описание проекта
Компания Domamo предлагает проект двухэтажного дома с вместительным гаражом для двух авто D1515. Общая площадь - 284 м2, размер - 19.5х14.4 м. Фундамент - монолитная ж/бетонная плита, кровля - натуральная черепица, внешняя отделка - мокрая штукатурка. Для заказа проекта или внесения изменений свяжитесь с нами с помощью форм обратной связи на сайте или по телефону +7 (831) 231-05-01.
Категории проекта: с гаражом для постоянного проживания пенобетон современные от 200 до 300 кв.м в европейском стиле с эркером с террасой из газобетона с эркером из газобетона готовые из газобетона с гаражом двухэтажные двухэтажные с гаражом с котельной двухэтажные из газобетона из газосиликатных блоков двухэтажные из пеноблоков из пеноблоков с гаражом загородные с четырехскатной крышей из керамзитобетонных блоков с камином прямоугольные с балконом из газобетона с террасой двухэтажные с эркером из блоков двухэтажные из блоков из блоков с гаражом из блоков с эркером Проекты домов из пеноблоков с эркером из пеноблоков с террасой загородные из газобетона Проекты двухэтажных домов с террасой Проекты двухэтажных домов с верандой с террасой и камином с гаражом под одной крышей с гаражом на 2 машины с гаражом и террасой двухэтажные с террасой и гаражом с балконом и террасой из пеноблоков загородные с эркером и гаражом с 5 спальнями двухэтажные с камином двухэтажные с балконом двухэтажные с балконом и террасой двухэтажные в современном стиле из газобетона от 200 до 300 кв.м из газобетона с четырехскатной крышей из газобетона современные из газобетона с балконом из газобетона с котельной из газобетона прямоугольные из газобетона готовые из газобетона с камином из газобетона с большой кухней из газобетона для постоянного проживания двухэтажные из газобетона с гаражом двухэтажные из газобетона с террасой двухэтажные из газобетона с камином двухэтажные из газобетона с котельной двухэтажные из газобетона современные двухэтажные из газобетона с четырехскатной крышей двухэтажные из газобетона без подвала двухэтажные из газобетона с эркером современные с гаражом современные с окнами в пол современные с террасой из пеноблоков в современном стиле из пеноблоков с четырехскатной крышей из пеноблоков с окнами до пола из пеноблоков прямоугольные из пеноблоков с балконом из пеноблоков для постоянного проживания из пеноблоков готовые из пеноблоков с камином из пеноблоков от 200 до 300 м2 из пеноблоков с большой кухней из клееного бруса без гаража Показать все категории Скрыть категории

Похожие проекты
Состав проекта
Входит в стоимость
Цена, руб. Сроки, дней
Комплект архитектурно-строительных чертежей (АС) Входит в стоимость 3 рабочих дня
Готово к продаже
Цена, руб. Сроки, дней
Зеркальная версия проекта Входит в стоимость 3 рабочих дня
Паспорт рабочего проекта 5 000 ₽ 3 рабочих дня в корзину
Инженерные разделы: ВК + ОВ + ЭО 23 000 ₽ 3 рабочих дня в корзину
Дополнительная копия проекта формата А3 3 000 ₽ 3 рабочих дня в корзину
Две дополнительные копии проекта формата А3 + 1 паспорт рабочего проекта 10 100 ₽ 3 рабочих дня в корзину
Электронная копия проекта (скан распечатанной версии) 4 000 ₽ 3 рабочих дня в корзину
Разрабатывается отдельно
Цена, руб. Сроки, дней
Адаптация фундамента (изменение типа фундамента) по запросу 14 рабочих дней
Дизайн интерьера (стоимость от 2200руб. за квад.метр площади) по запросу 30 рабочих дней
Внесение изменений в проект по запросу 20 рабочих дней
Фэншуй дома 20 000 ₽ 14 рабочих дней в корзину
Фэншуй участка 15 000 ₽ 14 рабочих дней в корзину
Фэншуй полная консультация дом+участок с выездом на объект 100 000 ₽ 30 рабочих дней в корзину
Опции проекта вы можете заказать в корзине при оформлении заказа
Варианты проекта Сравнить все варианты
Избранные проекты
Избранные строители
Отзывы покупателей
Рейтинг покупателей
0 / 5 5 5 1
На основе 1 оценок покупателей
0%
0%
0%
0%
0%
Отзывы о проекте D1515
Отзыв о проекте D1515
Чтобы оставить отзыв, пожалуйста авторизуйтесь.
Подбор строительной компании
Не знаете кому доверить строительство дома? Мы можем помочь! Подберем для вас из сотен наших партнеров несколько компаний с лучшем соотношением цена/качество под конкретно ваш запрос.
Подобрать