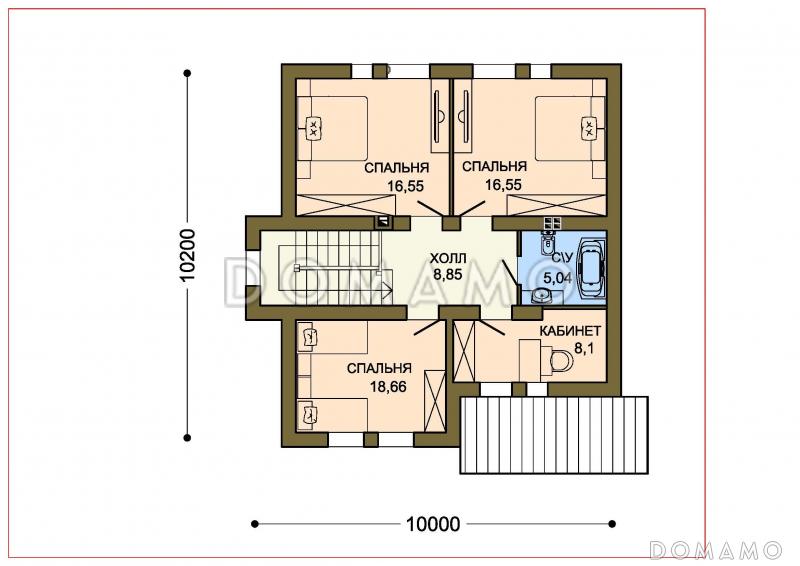
Типовой проект двухэтажного коттеджа с привлекательным вариантом комбинированной отделки наружного фасада — сочетанием эстетичного декоративного кирпича и штукатурки. Стеновой материал, пенобетон, обеспечивает высокую теплоизоляцию здания, позволяет уменьшить расходы на отопление. Внутренняя планировка подразумевает полное деление жилой и функциональных зон, максимальное использование каждого метра пространства, как например, в объединенной кухне-гостиной с камином.
Особенности проекта: