Главная Проекты домов Проект загородного дома с каменного облицовкой крыльца и панорамными окнами гостиной

D285 Проект загородного дома с каменного облицовкой крыльца и панорамными окнами гостиной

Сравнить проект В избранное
Проект загородного дома с каменного облицовкой крыльца и панорамными окнами гостиной / 1
Проект загородного дома с каменного облицовкой крыльца и панорамными окнами гостиной / 2
Проект загородного дома с каменного облицовкой крыльца и панорамными окнами гостиной / 3
Проект загородного дома с каменного облицовкой крыльца и панорамными окнами гостиной / 4
Проект загородного дома с каменного облицовкой крыльца и панорамными окнами гостиной / 1
Проект загородного дома с каменного облицовкой крыльца и панорамными окнами гостиной / 2
Проект загородного дома с каменного облицовкой крыльца и панорамными окнами гостиной / 3
Проект загородного дома с каменного облицовкой крыльца и панорамными окнами гостиной / 4
D285
167 м²
Подготовка проекта:
3 рабочих дня
Стоимость проекта
Купить проект
Задайте вопросы по проекту нашему архитектору
8 (800) 200-28-83
Время работы: пн-вс: с 9:00 до 20:00
Задать вопрос по проекту

Технические характеристики
Общие
Материал стен
Газобетон
Общая площадь
167 м²
Жилая площадь
107.0 м²
Площадь застройки
144.7 м²
Приведенная площадь
170.03 м²
Количество жилых комнат/спален
5
Этажи
2 этажа
Гараж
Пристроенный навес
Количество машин
1
Подвал / цокольный этаж
Без подвала
Длина дома
11.4 м
Ширина дома
10 м
Высота в коньке
8.94 м
Кровля
Металлочерепица
Облицовка внешних стен
Мокрая штукатурка
,
Облицовка камнем
Толщина несущих наружных стен
400 мм
Межэтажные перекрытия
По деревянным балкам
Внутренние не несущие перегородки
Газобетонные
,
Каркасно-обшивные
Фундамент
Монолитная ж/бетонная плита
Терраса
Терраса крытая
Дополнительные
Окна
Окна до пола
,
Панорамные окна
Камин
Есть
Сауна/баня внутри
Нет
Площадь гостиной
25.8 м²
Площадь кухни
14.2 м²
Количество санузлов
2
Окно в ванной комнате
Есть
Котельная
Есть
Кабинет
Есть
Балкон / лоджия
Балкон
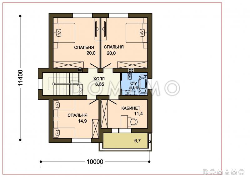
Планы помещений
Фасады
Описание проекта

Двухэтажный дом общим размером 10×11,4 метра для постоянного проживания большой семьи. Всего проектом предусмотрено пять жилых комнат, не считая просторной гостиной с великолепными панорамными окнами совмещенной с помещением кухни. При желании можно установить перегородку, барную стойку или использовать другие способы зонирования. Ещё одной особенностью гостиной является наружная каменная отделка, придающая особое очарование проекту.

Специфика проекта:

  • Пенобетон и частичная каменная отделка фасада — красота и энергоэффективность.
  • Большие панорамные окна гостиной — естественное освещение и тепло.
  • Санузел на каждом этаже.
  • Кабинет с выходом на просторный балкон, достаточно места для небольшого столика для чаепития на свежем воздухе.
  • Технические помещения для котельной.
  • Крытый навес для одного автомобиля.
Категории проекта: с гаражом для постоянного проживания пенобетон современные от 100 до 200 кв.м в европейском стиле с эркером с террасой из газобетона с эркером из газобетона готовые в стиле минимализм двухэтажные двухэтажные с гаражом с котельной двухэтажные из газобетона из газосиликатных блоков двухэтажные из пеноблоков из пеноблоков с гаражом до 200 кв.м с двухскатной крышей 9х12 загородные из керамзитобетонных блоков с камином прямоугольные с балконом 10х12 с навесом для машины с панорамным остеклением из газобетона с террасой двухэтажные с эркером из блоков двухэтажные из блоков из блоков с гаражом из блоков с эркером Проекты домов из пеноблоков с эркером из пеноблоков с террасой загородные из газобетона Проекты двухэтажных домов с террасой Проекты двухэтажных домов с верандой с террасой и камином с кабинетом с гаражом под одной крышей двухэтажные 10 на 12 каменные с гаражом и террасой двухэтажные с террасой и гаражом двухэтажные 200 кв м с панорамными окнами и террасой двухэтажные от 150 до 200 кв м с балконом и террасой из пеноблоков загородные с 5 спальнями двухэтажные до 180 кв.м двухэтажные с камином двухэтажные с двускатной крышей двухэтажные с панорамными окнами двухэтажные с балконом двухэтажные с балконом и террасой двухэтажные в современном стиле из газобетона до 200 кв.м из газобетона от 100 до 200 кв.м из газобетона с двухскатной крышей из газобетона в стиле минимализм из газобетона современные из газобетона с панорамными окнами из газобетона с балконом из газобетона с котельной из газобетона прямоугольные из газобетона готовые из газобетона с камином из газобетона с кабинетом из газобетона для постоянного проживания двухэтажные из газобетона с террасой двухэтажные из газобетона с камином двухэтажные из газобетона с кабинетом двухэтажные из газобетона с котельной двухэтажные из газобетона в стиле минимализм двухэтажные из газобетона современные двухэтажные из газобетона с двухскатной крышей двухэтажные из газобетона до 200 кв. м двухэтажные из газобетона без подвала двухэтажные из газобетона с эркером современные с двухскатной крышей современные с панорамными окнами современные с окнами в пол современные с террасой современные от 100 до 200 кв. м из пеноблоков в современном стиле из пеноблоков в стиле минимализм из пеноблоков с двухскатной крышей из пеноблоков с окнами до пола из пеноблоков с панорамными окнами из пеноблоков прямоугольные из пеноблоков с балконом из пеноблоков для постоянного проживания из пеноблоков готовые из пеноблоков с камином из пеноблоков от 100 до 200 м2 в стиле минимализм для постоянного проживания в стиле минимализм прямоугольные в стиле минимализм с двухскатной крышей в стиле минимализм с окнами в пол в стиле минимализм с панорамными окнами в стиле минимализм с террасой в стиле минимализм с кабинетом в стиле минимализм с котельной в стиле минимализм с камином в стиле минимализм недорогие в стиле минимализм от 100 до 200 м2 в стиле минимализм с монолитным фундаментом недорогие двухэтажные недорогие с террасой недорогие для постоянного проживания недорогие с двухскатной крышей недорогие с окнами до пола недорогие с панорамными окнами недорогие без бани недорогие с кабинетом недорогие с котельной недорогие с балконом недорогие с камином недорогие прямоугольные недорогие от 100 до 200 м2 из клееного бруса без гаража Показать все категории Скрыть категории

Похожие проекты
Состав проекта
Входит в стоимость
Цена, руб. Сроки, дней
Комплект архитектурно-строительных чертежей (АС) Входит в стоимость 3 рабочих дня
Готово к продаже
Цена, руб. Сроки, дней
Паспорт рабочего проекта 4 000 ₽ 3 рабочих дня в корзину
Дополнительная копия проекта формата А3 3 000 ₽ 3 рабочих дня в корзину
Две дополнительные копии проекта формата А3 + 1 паспорт рабочего проекта 10 000 ₽ 3 рабочих дня в корзину
Разрабатывается отдельно
Цена, руб. Сроки, дней
Адаптация фундамента (изменение типа фундамента) по запросу 14 рабочих дней
Дизайн интерьера (стоимость от 2200руб. за квад.метр площади) по запросу 30 рабочих дней
Внесение изменений в проект по запросу 20 рабочих дней
Фэншуй дома 20 000 ₽ 14 рабочих дней в корзину
Фэншуй участка 15 000 ₽ 14 рабочих дней в корзину
Фэншуй полная консультация дом+участок с выездом на объект 100 000 ₽ 30 рабочих дней в корзину
Опции проекта вы можете заказать в корзине при оформлении заказа
Варианты проекта Сравнить все варианты
Избранные проекты
Избранные строители
Отзывы покупателей
Рейтинг покупателей
0 / 5 5 5 1
На основе 1 оценок покупателей
0%
0%
0%
0%
0%
Отзывы о проекте D285
Отзыв о проекте D285
Чтобы оставить отзыв, пожалуйста авторизуйтесь.
Подбор строительной компании
Не знаете кому доверить строительство дома? Мы можем помочь! Подберем для вас из сотен наших партнеров несколько компаний с лучшем соотношением цена/качество под конкретно ваш запрос.
Подобрать