Главная Проекты домов Проект двухэтажного дома из кирпича с полукруглым эркером

D552 Проект двухэтажного дома из кирпича с полукруглым эркером

Сравнить проект В избранное
Проект двухэтажного дома из кирпича с полукруглым эркером / 1
Проект двухэтажного дома из кирпича с полукруглым эркером / 2
Проект двухэтажного дома из кирпича с полукруглым эркером / 3
Проект двухэтажного дома из кирпича с полукруглым эркером / 4
Проект двухэтажного дома из кирпича с полукруглым эркером / 1
Проект двухэтажного дома из кирпича с полукруглым эркером / 2
Проект двухэтажного дома из кирпича с полукруглым эркером / 3
Проект двухэтажного дома из кирпича с полукруглым эркером / 4
D552
490 м²
Подготовка проекта:
Готов к отправке
Стоимость проекта
Купить проект
Задайте вопросы по проекту нашему архитектору
8 (800) 200-28-83
Время работы: пн-вс: с 9:00 до 20:00
Задать вопрос по проекту

Технические характеристики
Общие
Материал стен
Кирпич
Общая площадь
490 м²
Жилая площадь
10.2 м²
Площадь застройки
297.3 м²
Приведенная площадь
424.8 м²
Количество жилых комнат/спален
4
Этажи
2 этажа
Гараж
Пристроенный гараж
Количество машин
2
Подвал / цокольный этаж
С окнами
Длина дома
24.7 м
Ширина дома
16.5 м
Кровля
Гибкая черепица
Облицовка внешних стен
Мокрая штукатурка
Толщина несущих наружных стен
510 мм
Межэтажные перекрытия
Монолитные
Внутренние не несущие перегородки
Каркасно-обшивные
,
Кирпичные
Фундамент
Ленточный заглубленный из ФБС
Терраса
Без террасы
Дополнительные
Окна
Окна до пола
Второй свет
Есть
Камин
Есть
Сауна/баня внутри
Есть
Площадь гостиной
25 м²
Площадь кухни
15.8 м²
Количество санузлов
5
Котельная
Есть
Кабинет
Есть
Бильярдная
Есть
Хозяйский санузел
Есть
Хозяйская гардеробная
Есть
Кладовая
8
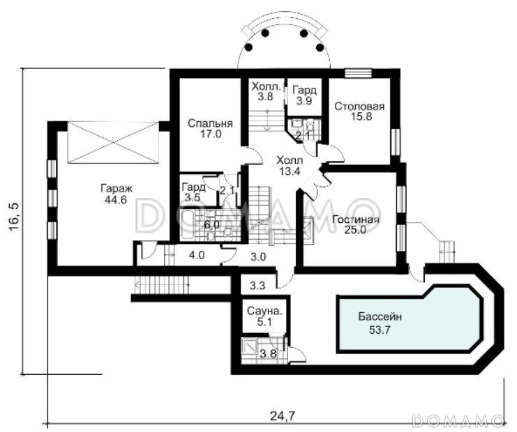
Планы помещений
Описание проекта
Компания Domamo предлагает проект двухэтажного дома из кирпича с полукруглым эркером D552. Общая площадь - 490 м2, размер - 24.7х16.5 м. Фундамент - ленточный заглубленный из фбс, кровля - гибкая черепица, внешняя отделка - мокрая штукатурка. Для заказа проекта или внесения изменений свяжитесь с нами с помощью форм обратной связи на сайте или по телефону +7 (831) 231-05-01.
Категории проекта: с гаражом для постоянного проживания кирпич от 400 до 500 кв.м дома из кирпича с гаражом с эркером кирпичные дома с эркером готовые с цокольным этажом загородные из кирпича двухэтажные из кирпича двухэтажные кирпичные с гаражом двухэтажные двухэтажные с гаражом кирпичные с цокольным этажом кирпичные с котельной с котельной со вторым светом с баней загородные с четырехскатной крышей с баней и гаражом с бильярдной с камином с сауной с гардеробной в стиле эклектика кирпичные с баней двухэтажные с цокольным этажом двухэтажные с эркером с кабинетом с гаражом под одной крышей с гаражом на 2 машины с 4 спальнями двухэтажные с сауной недорогие с эркером и гаражом большие сложной формы двухэтажные с камином двухэтажные со вторым светом двухэтажные с 4 спальнями большие готовые большие в стиле эклектика большие с четырехскатной крышей большие с вторым светом большие сложной формы большие с камином большие с окнами в пол большие с гаражом большие с гаражом на 2 машины большие с большой кухней большие с изолированной кухней большие без террасы большие с баней большие с котельной большие с кабинетом большие с мастер-спальней большие с 4 спальнями недорогие двухэтажные недорогие кирпичные недорогие в стиле эклектика недорогие с гаражом недорогие без террасы недорогие для постоянного проживания недорогие с четырехскатной крышей недорогие с окнами до пола недорогие с изолированной кухней недорогие с баней недорогие с кабинетом недорогие с котельной недорогие с вторым светом недорогие с камином недорогие сложной формы недорогие большие недорогие от 400 до 500 м2 из клееного бруса без гаража Показать все категории Скрыть категории

Похожие проекты
Состав проекта
Входит в стоимость
Цена, руб. Сроки, дней
Комплект архитектурно-строительных чертежей (АС) Входит в стоимость 7 рабочих дней
Готово к продаже
Цена, руб. Сроки, дней
Паспорт рабочего проекта 2 500 ₽ Готов к отправке в корзину
Разрабатывается отдельно
Цена, руб. Сроки, дней
Адаптация фундамента (изменение типа фундамента) по запросу 14 рабочих дней
Дизайн интерьера (стоимость от 2200руб. за квад.метр площади) по запросу 30 рабочих дней
Внесение изменений в проект по запросу 20 рабочих дней
Фэншуй дома 20 000 ₽ 14 рабочих дней в корзину
Фэншуй участка 15 000 ₽ 14 рабочих дней в корзину
Фэншуй полная консультация дом+участок с выездом на объект 100 000 ₽ 30 рабочих дней в корзину
Опции проекта вы можете заказать в корзине при оформлении заказа
Отзывы покупателей
Рейтинг покупателей
0 / 5 5 5 1
На основе 1 оценок покупателей
0%
0%
0%
0%
0%
Отзывы о проекте D552
Отзыв о проекте D552
Чтобы оставить отзыв, пожалуйста авторизуйтесь.
Подбор строительной компании
Не знаете кому доверить строительство дома? Мы можем помочь! Подберем для вас из сотен наших партнеров несколько компаний с лучшем соотношением цена/качество под конкретно ваш запрос.
Подобрать