Главная Проекты домов Проект двухэтажного коттеджа с цокольным этажом, гаражом и парной

D2777 Проект двухэтажного коттеджа с цокольным этажом, гаражом и парной

Сравнить проект В избранное
Проект двухэтажного коттеджа с цокольным этажом, гаражом и парной / 1
Проект двухэтажного коттеджа с цокольным этажом, гаражом и парной / 1
D2777
460 м²
Подготовка проекта:
Готов к отправке
Стоимость проекта
Купить проект
Задайте вопросы по проекту нашему архитектору
8 (800) 200-28-83
Время работы: пн-вс: с 9:00 до 20:00
Задать вопрос по проекту

Технические характеристики
Общие
Материал стен
Кирпич
Общая площадь
460 м²
Приведенная площадь
445.05 м²
Количество жилых комнат/спален
4
Этажи
2 этажа
Гараж
Встроенный гараж
Количество машин
2
Подвал / цокольный этаж
С окнами
Длина дома
18.1 м
Ширина дома
15.0 м
Высота в коньке
10.512 м
Кровля
Рулонная кровля
Облицовка внешних стен
Облицовочный кирпич
Межэтажные перекрытия
Сборные
Фундамент
Ленточный монолитный
Терраса
Терраса крытая
Дополнительные
Окна
Окна до пола
,
Панорамные окна
Второй свет
Есть
Мансардные окна
Есть
Камин
Есть
Сауна/баня внутри
Есть
Площадь гостиной
26.95 м²
Площадь кухни
12.9 м²
Количество санузлов
5
Окно в ванной комнате
Есть
Котельная
Есть
Кабинет
Есть
Постирочная
Есть
Хозяйский санузел
Есть
Хозяйская гардеробная
Есть
Кладовая
3
Балкон / лоджия
Балкон
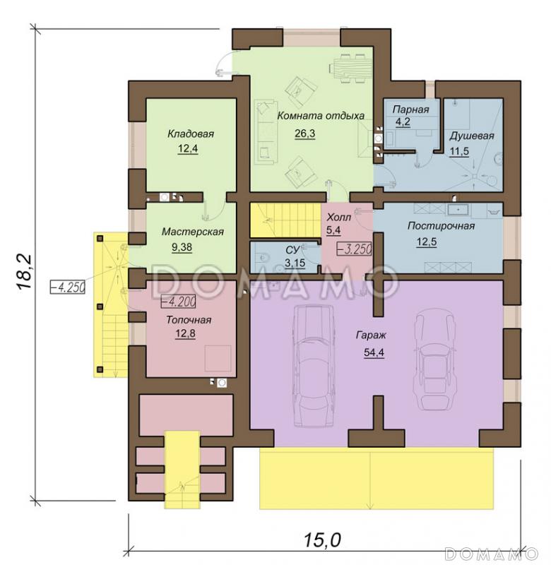
Планы помещений
Фасады
Описание проекта
Компания Domamo предлагает проект двухэтажного коттеджа с цокольным этажом, гаражом и парной D2777. Общая площадь - 460 м2, размер - 18.1х15.0 м. Фундамент - ленточный монолитный, кровля - рулонная кровля, внешняя отделка - облицовочный кирпич. Для заказа проекта или внесения изменений свяжитесь с нами с помощью форм обратной связи на сайте или по телефону +7 (831) 231-05-01.
Категории проекта: с гаражом для постоянного проживания кирпич от 400 до 500 кв.м дома из кирпича с гаражом в европейском стиле кирпичные европейские дома с террасой из кирпича с террасой готовые с цокольным этажом загородные из кирпича двухэтажные из кирпича двухэтажные кирпичные с гаражом двухэтажные двухэтажные с гаражом кирпичные с цокольным этажом кирпичные с котельной с котельной со вторым светом с баней загородные с баней и гаражом с камином с сауной с гардеробной прямоугольные с балконом со встроенным гаражом с панорамным остеклением кирпичные с баней двухэтажные с цокольным этажом Проекты двухэтажных домов с террасой Проекты двухэтажных домов с верандой с террасой и камином облицованные кирпичом с кабинетом с гаражом под одной крышей с гаражом на 2 машины с гаражом и террасой двухэтажные с террасой и гаражом с 4 спальнями с панорамными окнами и террасой двухэтажные с сауной с цокольным этажом и гаражом недорогие с балконом и террасой большие двухэтажные с камином двухэтажные со вторым светом двухэтажные с панорамными окнами двухэтажные с 4 спальнями двухэтажные с балконом двухэтажные с балконом и террасой двухэтажные эконом класса европейские для постоянного проживания европейские недорогие европейские готовые европейские с гаражом европейские с гаражом на 2 машины европейские с подвалом европейские с террасой европейские с сауной европейские с изолированной кухней европейские с котельной европейские с кабинетом европейские с прачечной европейские с кладовой европейские с балконом европейские прямоугольные европейские с вторым светом европейские с мансардными окнами европейские с панорамными окнами европейские с окнами в пол европейские с камином европейские 400-500 м2 большие готовые большие в европейском стиле большие с вторым светом большие с балконом большие прямоугольные большие с камином большие с окном в ванной комнате большие с панорамными окнами большие с окнами в пол большие с гаражом большие с гаражом на 2 машины большие с изолированной кухней большие с террасой большие с баней большие с прачечной большие с котельной большие с кабинетом большие с мастер-спальней большие с 4 спальнями недорогие двухэтажные недорогие кирпичные недорогие с гаражом недорогие с террасой недорогие для постоянного проживания недорогие с окнами до пола недорогие с панорамными окнами недорогие с изолированной кухней недорогие с баней недорогие с кабинетом недорогие с котельной недорогие с мансардными окнами недорогие с вторым светом недорогие с балконом недорогие с камином недорогие прямоугольные недорогие большие недорогие от 400 до 500 м2 из клееного бруса без гаража Показать все категории Скрыть категории

Похожие проекты
Состав проекта
Входит в стоимость
Цена, руб. Сроки, дней
Комплект архитектурно-строительных чертежей (АС) Входит в стоимость Готов к отправке
Готово к продаже
Цена, руб. Сроки, дней
Паспорт рабочего проекта 5 000 ₽ Готов к отправке в корзину
Инженерные разделы: ВК + ОВ + ЭО 14 000 ₽ Готов к отправке в корзину
Разрабатывается отдельно
Цена, руб. Сроки, дней
Адаптация фундамента (изменение типа фундамента) по запросу 14 рабочих дней
Дизайн интерьера (стоимость от 2200руб. за квад.метр площади) по запросу 30 рабочих дней
Внесение изменений в проект по запросу 20 рабочих дней
Фэншуй дома 20 000 ₽ 14 рабочих дней в корзину
Фэншуй участка 15 000 ₽ 14 рабочих дней в корзину
Фэншуй полная консультация дом+участок с выездом на объект 100 000 ₽ 30 рабочих дней в корзину
Опции проекта вы можете заказать в корзине при оформлении заказа
Отзывы покупателей
Рейтинг покупателей
0 / 5 5 5 1
На основе 1 оценок покупателей
0%
0%
0%
0%
0%
Отзывы о проекте D2777
Отзыв о проекте D2777
Чтобы оставить отзыв, пожалуйста авторизуйтесь.
Подбор строительной компании
Не знаете кому доверить строительство дома? Мы можем помочь! Подберем для вас из сотен наших партнеров несколько компаний с лучшем соотношением цена/качество под конкретно ваш запрос.
Подобрать