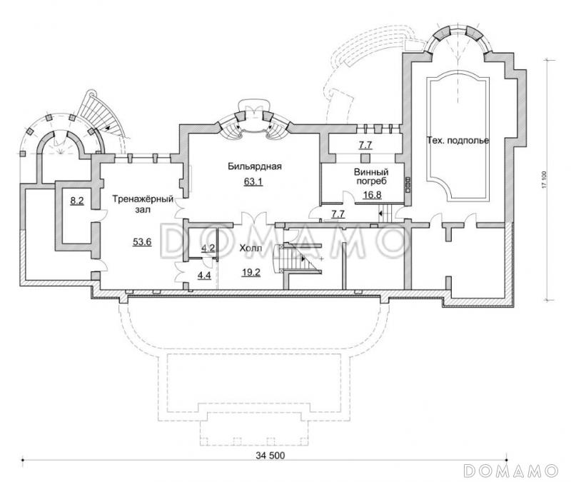
Проект роскошного двухэтажного особняка, выполненного в классическом стиле, который станет идеальным вариантом для проживания большой семьи из шести – семи человек. Экстерьер дома совместил себе изысканность и представительность, фасады украшены множеством массивных колонн, окон необычной формы, витых декоративных элементов. Отделка осуществлена в благородных мраморных оттенках. Цокольный этаж включает в себя тренажерный зал, бильярдную комнату, винный погреб, а также техническое помещение. Этажом выше - просторная гостиная со вторым светом и выходами в отдельную каминную комнату и на кухню. Здесь же расположены столовая, спальная и игровая комнаты, кабинет, а также комната отдыха, сауна и бассейн. У выходов находятся две крытые террасы. На втором этаже предусмотрены отдельные спальни для хозяйки и хозяина дома, три детские комнаты, четыре балкона.
Ключевые особенности: