Главная Проекты домов Проект углового коттеджа

D264 Проект углового коттеджа

Сравнить проект В избранное
Проект углового коттеджа / 1
Проект углового коттеджа / 2
Проект углового коттеджа / 1
Проект углового коттеджа / 2
D264
137 м²
Подготовка проекта:
Готов к отправке
Стоимость проекта
Купить проект
Задайте вопросы по проекту нашему архитектору
8 (800) 200-28-83
Время работы: пн-вс: с 9:00 до 20:00
Задать вопрос по проекту

Технические характеристики
Общие
Материал стен
Кирпич
Общая площадь
137 м²
Жилая площадь
95.6 м²
Площадь застройки
130.9 м²
Приведенная площадь
144.59 м²
Количество жилых комнат/спален
3
Этажи
2 этажа
Гараж
Нет гаража
Подвал / цокольный этаж
Без подвала
Длина дома
13.64 м
Ширина дома
11.14 м
Высота в коньке
9.5 м
Кровля
Металлочерепица
Облицовка внешних стен
Облицовочный кирпич
Толщина несущих наружных стен
380 мм
Межэтажные перекрытия
Монолитные
Внутренние не несущие перегородки
Кирпичные
Фундамент
Монолитная ж/бетонная плита
Терраса
Терраса крытая
Дополнительные
Окна
Окна до пола
Сауна/баня внутри
Нет
Площадь гостиной
30 м²
Площадь кухни
8.4 м²
Количество санузлов
3
Окно в ванной комнате
Есть
Котельная
Есть
Хозяйская гардеробная
Есть
Кладовая
1
Планы помещений
Фасады
Описание проекта
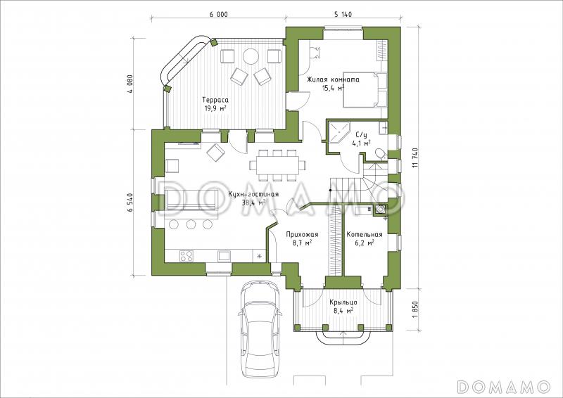
Загородный коттедж в 2 полноценных этажа специально создан, чтобы отгородиться от внешнего мира на территории своей усадьбы. Его планировка рассчитана на размещение постройки в углу участка с ориентацией жилых помещений на собственный сад. Здесь же проектируется большая терраса. На ней можно устроить летнюю столовую, укрытую от лишних солнечных лучей и осадков.

Внутренняя планировка первого этажа включает современную кухню-гостиную, котельную с отдельным входом с улицы и жилую комнату, где будет кабинет или дополнительная спальня. Наверху разместятся еще 2 большие спальни, одна из которых имеет приватную гардеробную.

Имеется вариант проекта с другой планировкой второго этажа, D164.
Категории проекта: для постоянного проживания кирпич в английском стиле в классическом стиле от 100 до 200 кв.м кирпичные дома хай-тек классические кирпичные дома с террасой из кирпича с террасой готовые загородные из кирпича двухэтажные из кирпича двухэтажные кирпичные площадью до 150 кв. м. кирпичные с котельной с котельной кирпичные до 200 кв.м до 150 кв.м до 200 кв.м загородные с четырехскатной крышей с гардеробной угловые Проекты двухэтажных домов с террасой Проекты двухэтажных домов с верандой без гаража облицованные кирпичом Проекты домов с тремя спальнями двухэтажные до 150 кв м двухэтажные 200 кв м г-образные до 140 кв м в английском стиле из кирпича недорогие двухэтажные до 180 кв.м двухэтажные с 3 спальнями двухэтажные в классическом стиле двухэтажные эконом класса двухэтажные до 150 кв.м с террасой двухэтажные до 150 кв.м с 3 спальнями двухэтажные без гаража классические для постоянного проживания классические без гаража классические с 3 спальнями классические с окнами в пол классические с террасой классические готовые классические недорогие классические с котельной классические без подвала классические угловые классические с четырехскатной крышей до 150 кв.м для постоянного проживания до 150 кв.м без гаража до 150 кв.м с четырехскатной крышей до 150 кв.м с окнами до пола до 150 кв.м классические до 150 кв.м готовые до 150 кв.м угловые до 150 кв.м с котельной до 150 кв.м без бани до 150 кв.м с террасой до 150 кв.м без подвала до 150 кв.м с 3 спальнями до 150 кв.м с большой гостиной недорогие двухэтажные недорогие кирпичные недорогие в английском стиле недорогие без гаража недорогие с террасой недорогие для постоянного проживания недорогие с четырехскатной крышей недорогие с окнами до пола недорогие без бани недорогие с котельной недорогие угловые недорогие до 150 м2 недорогие от 100 до 200 м2 из клееного бруса без гаража Показать все категории Скрыть категории

Похожие проекты
Состав проекта
Входит в стоимость
Цена, руб. Сроки, дней
Комплект архитектурно-строительных чертежей (АС) Входит в стоимость Готов к отправке
Готово к продаже
Цена, руб. Сроки, дней
Паспорт рабочего проекта 5 000 ₽ 3 рабочих дня в корзину
Дополнительная копия проекта формата А3 4 000 ₽ Готов к отправке в корзину
Электронная копия проекта (скан распечатанной версии) 4 000 ₽ 3 рабочих дня в корзину
Разрабатывается отдельно
Цена, руб. Сроки, дней
Адаптация фундамента (изменение типа фундамента) по запросу 14 рабочих дней
Дизайн интерьера (стоимость от 2200руб. за квад.метр площади) по запросу 30 рабочих дней
Внесение изменений в проект по запросу 20 рабочих дней
Инженерные разделы: ВК + ОВ + ЭО 40 000 ₽ 20 рабочих дней в корзину
Зеркалирование проекта (для которого нет зеркальной версии) 8 000 ₽ 5 рабочих дней в корзину
Разработка Генплана участка, в масштабе 1:250 7 500 ₽ 5 рабочих дней в корзину
Фэншуй дома 20 000 ₽ 14 рабочих дней в корзину
Фэншуй участка 15 000 ₽ 14 рабочих дней в корзину
Фэншуй полная консультация дом+участок с выездом на объект 100 000 ₽ 30 рабочих дней в корзину
Опции проекта вы можете заказать в корзине при оформлении заказа
Отзывы покупателей
Рейтинг покупателей
0 / 5 5 5 1
На основе 1 оценок покупателей
0%
0%
0%
0%
0%
Отзывы о проекте D264
Отзыв о проекте D264
Чтобы оставить отзыв, пожалуйста авторизуйтесь.
Подбор строительной компании
Не знаете кому доверить строительство дома? Мы можем помочь! Подберем для вас из сотен наших партнеров несколько компаний с лучшем соотношением цена/качество под конкретно ваш запрос.
Подобрать