Главная Проекты домов Проект деревянного дома из клееного бруса с просторным балконом на втором этаже

D87 Проект деревянного дома из клееного бруса с просторным балконом на втором этаже

Сравнить проект В избранное
Проект деревянного дома из клееного бруса с просторным балконом на втором этаже / 1
Проект деревянного дома из клееного бруса с просторным балконом на втором этаже / 2
Проект деревянного дома из клееного бруса с просторным балконом на втором этаже / 3
Проект деревянного дома из клееного бруса с просторным балконом на втором этаже / 4
Проект деревянного дома из клееного бруса с просторным балконом на втором этаже / 1
Проект деревянного дома из клееного бруса с просторным балконом на втором этаже / 2
Проект деревянного дома из клееного бруса с просторным балконом на втором этаже / 3
Проект деревянного дома из клееного бруса с просторным балконом на втором этаже / 4
D87
310 м²
Домокомплект
Артикул проекта: Волга
Компания: ГК "Приозерский лесокомбинат"
Стоимость домокомплекта
4 774 000 ₽
Заказать подробную смету
+7 (921) XXX-XX-XX Показать телефон
Задать вопрос по проекту
Технические характеристики
Общие
Материал стен
Клееный брус
Общая площадь
310 м²
Приведенная площадь
236.41 м²
Количество жилых комнат/спален
4
Этажи
2 этажа
Гараж
Нет гаража
Подвал / цокольный этаж
Без подвала
Длина дома
14.6 м
Ширина дома
12.3 м
Облицовка внешних стен
Без облицовки
Толщина несущих наружных стен
166 мм
Межэтажные перекрытия
По деревянным балкам
Внутренние не несущие перегородки
Каркасно-обшивные
Терраса
Терраса крытая
Дополнительные
Сауна/баня внутри
Нет
Площадь гостиной
32.9 м²
Площадь кухни
23.5 м²
Количество санузлов
2
Окно в ванной комнате
Есть
Котельная
Есть
Хозяйская гардеробная
Есть
Кладовая
3
Балкон / лоджия
Балкон
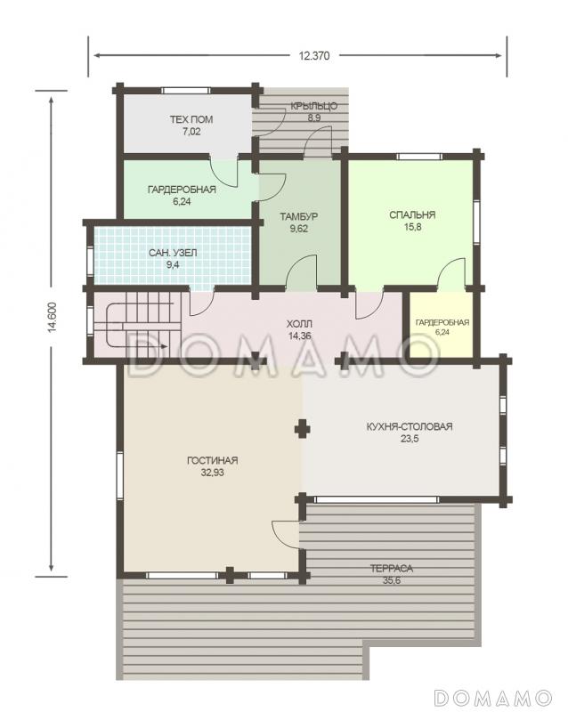
Планы помещений
Описание проекта
Компания Domamo предлагает проект деревянного дома из клееного бруса с просторным балконом на втором этаже D87. Общая площадь - 310 м2, размер - 14.6х12.3 м. Фундамент - , кровля - , внешняя отделка - без облицовки. Для заказа проекта или внесения изменений свяжитесь с нами с помощью форм обратной связи на сайте или по телефону +7 (831) 231-05-01.
Категории проекта: деревянные для постоянного проживания из клееного бруса от 300 до 400 кв.м с эркером с террасой двухэтажные с котельной двухэтажные деревянные с двухскатной крышей загородные с гардеробной с балконом в стиле эклектика двухэтажные с эркером Проекты деревянных домов с террасой Проекты двухэтажных домов из клееного бруса Проекты двухэтажных домов с террасой Проекты двухэтажных домов с верандой без гаража деревянные для круглогодичного проживания с 4 спальнями с балконом и террасой сложной формы двухэтажные с двускатной крышей двухэтажные с 4 спальнями двухэтажные с балконом двухэтажные с балконом и террасой двухэтажные без гаража деревянные в стиле эклектика деревянные с балконом деревянные без гаража деревянные домокомплекты деревянные без подвала деревянные с 4 спальнями деревянные с большой гостиной деревянные с большой кухней деревянные от 300 до 400 м2 из клееного бруса домокомплект из клееного бруса для постоянного проживания из клееного бруса с окном в ванной комнате из клееного бруса сложной формы из клееного бруса с балконом из клееного бруса в скандинавском стиле из клееного бруса в стиле эклектика из клееного бруса с двухскатной крышей из клееного бруса с каркасно-обшивными перегородками из клееного бруса без облицовки из клееного бруса с перекрытиями по деревянным балкам из клееного бруса с хозяйской гардеробной из клееного бруса с котельной из клееного бруса с 2 эркерами из клееного бруса с выходом на терассу из гостиной из клееного бруса с выходом на терассу из кухни из клееного бруса с крытой терассой из клееного бруса без подвала из клееного бруса без гаража из клееного бруса двухэтажные из клееного бруса от 300 до 400 м2 из клееного бруса с большой гостиной Показать все категории Скрыть категории

Похожие проекты
Состав проекта
Входит в стоимость
Цена, руб. Сроки, дней
Комплект архитектурно-строительных чертежей (АС) Входит в стоимость Готов к отправке
Разрабатывается отдельно
Цена, руб. Сроки, дней
Адаптация фундамента (изменение типа фундамента) по запросу 14 рабочих дней
Дизайн интерьера (стоимость от 2200руб. за квад.метр площади) по запросу 30 рабочих дней
Внесение изменений в проект по запросу 20 рабочих дней
Фэншуй дома 20 000 ₽ 14 рабочих дней в корзину
Фэншуй участка 15 000 ₽ 14 рабочих дней в корзину
Фэншуй полная консультация дом+участок с выездом на объект 100 000 ₽ 30 рабочих дней в корзину
Опции проекта вы можете заказать в корзине при оформлении заказа
Отзывы покупателей
Рейтинг покупателей
0 / 5 5 5 1
На основе 1 оценок покупателей
0%
0%
0%
0%
0%
Отзывы о проекте D87
Отзыв о проекте D87
Чтобы оставить отзыв, пожалуйста авторизуйтесь.
Подбор строительной компании
Не знаете кому доверить строительство дома? Мы можем помочь! Подберем для вас из сотен наших партнеров несколько компаний с лучшем соотношением цена/качество под конкретно ваш запрос.
Подобрать