Главная Проекты домов Проект загородного дома с мансардой и гаражом для двух автомобилей

D788 Проект загородного дома с мансардой и гаражом для двух автомобилей

Сравнить проект В избранное
Проект загородного дома с мансардой и гаражом для двух автомобилей / 1
Проект загородного дома с мансардой и гаражом для двух автомобилей / 2
Проект загородного дома с мансардой и гаражом для двух автомобилей / 3
Проект загородного дома с мансардой и гаражом для двух автомобилей / 1
Проект загородного дома с мансардой и гаражом для двух автомобилей / 2
Проект загородного дома с мансардой и гаражом для двух автомобилей / 3
D788
190 м²
Подготовка проекта:
Готов к отправке
Стоимость проекта
Купить проект
Задайте вопросы по проекту нашему архитектору
8 (800) 200-28-83
Время работы: пн-вс: с 9:00 до 20:00
Задать вопрос по проекту

Технические характеристики
Общие
Материал стен
Газобетон
Общая площадь
190 м²
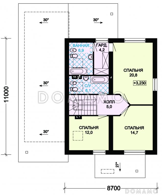
Жилая площадь
69.1 м²
Приведенная площадь
186.94 м²
Количество жилых комнат/спален
3
Этажи
1 этаж + мансарда
Гараж
Пристроенный гараж
Количество машин
2
Подвал / цокольный этаж
Без подвала
Длина дома
15.2 м
Ширина дома
12.5 м
Высота в коньке
8.4 м
Кровля
Гибкая черепица
Облицовка внешних стен
Деревянная вагонка
,
Мокрая штукатурка
Толщина несущих наружных стен
375-400 мм
Межэтажные перекрытия
По деревянным балкам
Внутренние не несущие перегородки
Каркасно-обшивные
Фундамент
Монолитная ж/бетонная плита
Терраса
Терраса крытая
Дополнительные
Окна
Окна до пола
Мансардные окна
Есть
Камин
Есть
Сауна/баня внутри
Нет
Площадь гостиной
21.6 м²
Площадь кухни
12.3 м²
Количество санузлов
3
Котельная
Есть
Хозяйский санузел
Есть
Хозяйская гардеробная
Есть
Кладовая
2
Планы помещений
Фасады
Описание проекта
Компания Domamo предлагает проект загородного дома с мансардой и гаражом для двух автомобилей D788. Общая площадь - 190 м2, размер - 15.2х12.5 м. Фундамент - монолитная ж/бетонная плита, кровля - гибкая черепица, внешняя отделка - деревянная вагонка мокрая штукатурка. Для заказа проекта или внесения изменений свяжитесь с нами с помощью форм обратной связи на сайте или по телефону +7 (831) 231-05-01.
Категории проекта: с мансардой с гаражом с мансардой и гаражом для постоянного проживания пенобетон современные от 100 до 200 кв.м в европейском стиле с террасой из пеноблоков с мансардой из газобетона с мансардой и гаражом из газобетона готовые из газобетона с мансардой из газобетона с гаражом одноэтажные с гаражом одноэтажные с мансардой одноэтажные с котельной с котельной одноэтажные из газобетона из газосиликатных блоков из пеноблоков с гаражом одноэтажные с гаражом и мансардой до 200 кв.м с двухскатной крышей загородные из керамзитобетонных блоков с камином с гардеробной прямоугольные из газобетона с террасой из блоков одноэтажные из блоков из блоков с гаражом из блоков с мансардой из пеноблоков с террасой загородные из газобетона Проекты одноэтажных домов с террасой Типовые проекты загородных одноэтажных домов с террасой и камином одноэтажные с тремя спальнями Проекты домов с тремя спальнями с гаражом под одной крышей одноэтажных из керамзитобетонных блоков одноэтажные с гаражом и террасой с гаражом на 2 машины с мансардой и террасой полутораэтажные с гаражом и террасой одноэтажные до 200 кв м из пеноблоков загородные одноэтажные с мансардными окнами с мансардой с котельной с мансардой с камином с мансардой с двухскатной крышей с мансардой современные с мансардой с окнами до пола с мансардой с мансардными окнами с мансардой прямоугольные с мансардой готовые с мансардой для постоянного проживания с мансардой до 200 кв.м одноэтажные из газобетона с гаражом одноэтажные из газобетона с террасой одноэтажные из газобетона с мансардой одноэтажные из газобетона с 3 спальнями из газобетона до 200 кв.м из газобетона от 100 до 200 кв.м из газобетона с двухскатной крышей из газобетона современные из газобетона с котельной из газобетона прямоугольные из газобетона готовые из газобетона с камином из газобетона с тремя спальнями из газобетона для постоянного проживания двухэтажные из газобетона с гаражом двухэтажные из газобетона с террасой двухэтажные из газобетона с камином двухэтажные из газобетона с котельной двухэтажные из газобетона современные двухэтажные из газобетона с двухскатной крышей двухэтажные из газобетона до 200 кв. м двухэтажные из газобетона без подвала двухэтажные из газобетона с 3 спальнями из газобетона с мансардой современные из газобетона с мансардой с террасой из газобетона с мансардой с камином из газобетона с мансардой для постоянного проживания из газобетона с мансардой готовые из газобетона с мансардой с двухскатной крышей из газобетона с мансардой с 3 спальнями из газобетона с мансардой с гардеробной из газобетона с мансардой прямоугольные из газобетона с мансардой и гаражом на 2 машины одноэтажные с мансардой для постоянного проживания одноэтажные с мансардой современные современные с гаражом современные с двухскатной крышей современные с окнами в пол современные с террасой современные от 100 до 200 кв. м из пеноблоков в современном стиле из пеноблоков с двухскатной крышей из пеноблоков с окнами до пола из пеноблоков прямоугольные из пеноблоков для постоянного проживания из пеноблоков готовые из пеноблоков с камином из пеноблоков от 100 до 200 м2 из пеноблоков с 3 спальнями из клееного бруса без гаража Показать все категории Скрыть категории

Похожие проекты
Состав проекта
Входит в стоимость
Цена, руб. Сроки, дней
Комплект архитектурно-строительных чертежей (АС) Входит в стоимость 3 рабочих дня
Готово к продаже
Цена, руб. Сроки, дней
Зеркальная версия проекта Входит в стоимость 3 рабочих дня
Паспорт рабочего проекта 5 000 ₽ 3 рабочих дня в корзину
Инженерные разделы: ВК + ОВ + ЭО 23 000 ₽ 3 рабочих дня в корзину
Дополнительная копия проекта формата А3 3 000 ₽ 3 рабочих дня в корзину
Две дополнительные копии проекта формата А3 + 1 паспорт рабочего проекта 10 100 ₽ 3 рабочих дня в корзину
Электронная копия проекта (скан распечатанной версии) 4 000 ₽ 3 рабочих дня в корзину
Разрабатывается отдельно
Цена, руб. Сроки, дней
Адаптация фундамента (изменение типа фундамента) по запросу 14 рабочих дней
Дизайн интерьера (стоимость от 2200руб. за квад.метр площади) по запросу 30 рабочих дней
Внесение изменений в проект по запросу 20 рабочих дней
Фэншуй дома 20 000 ₽ 14 рабочих дней в корзину
Фэншуй участка 15 000 ₽ 14 рабочих дней в корзину
Фэншуй полная консультация дом+участок с выездом на объект 100 000 ₽ 30 рабочих дней в корзину
Опции проекта вы можете заказать в корзине при оформлении заказа
Отзывы покупателей
Рейтинг покупателей
0 / 5 5 5 1
На основе 1 оценок покупателей
0%
0%
0%
0%
0%
Отзывы о проекте D788
Отзыв о проекте D788
Чтобы оставить отзыв, пожалуйста авторизуйтесь.
Подбор строительной компании
Не знаете кому доверить строительство дома? Мы можем помочь! Подберем для вас из сотен наших партнеров несколько компаний с лучшем соотношением цена/качество под конкретно ваш запрос.
Подобрать