Главная Проекты домов Проект дома из клееного бруса с двумя навесными балконами

D762 Проект дома из клееного бруса с двумя навесными балконами

Сравнить проект В избранное
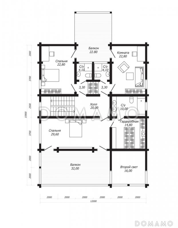
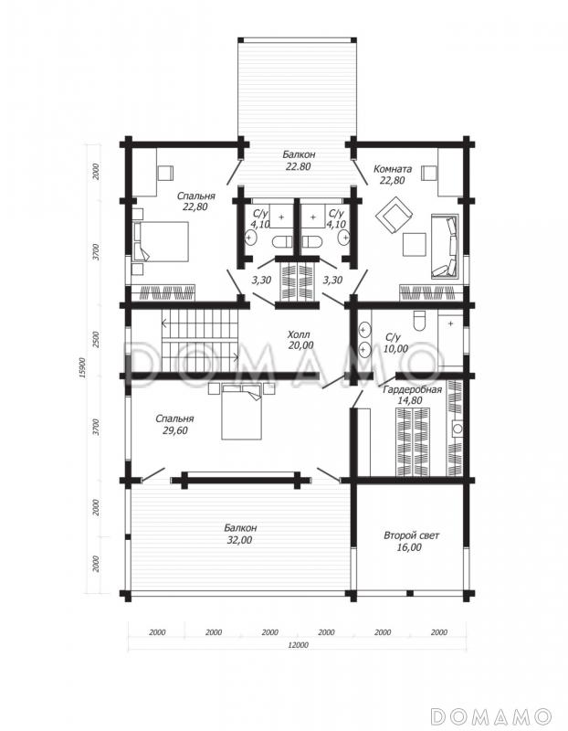
Проект дома из клееного бруса с двумя навесными балконами / 1
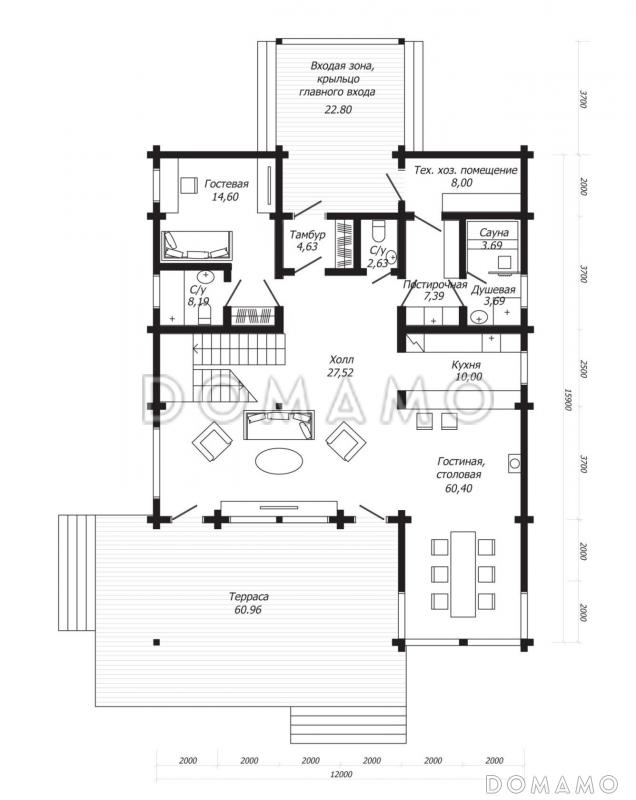
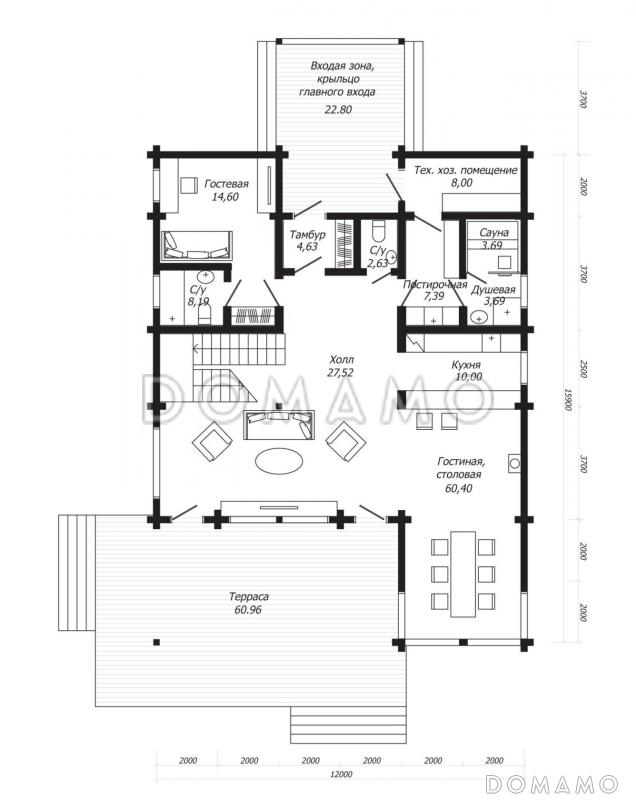
Проект дома из клееного бруса с двумя навесными балконами / 2
Проект дома из клееного бруса с двумя навесными балконами / 1
Проект дома из клееного бруса с двумя навесными балконами / 2
D762
436 м²
Проект с подрядом
Артикул проекта: КРОКУС МАКСИ
Компания: Ecohouse Group
Стоимость строительства
8 655 000 ₽
Заказать подробную смету
+7 (812) XXX-XX-XX Показать телефон
Задать вопрос по проекту
Технические характеристики
Общие
Материал стен
Клееный брус
Общая площадь
436 м²
Приведенная площадь
326.65 м²
Количество жилых комнат/спален
4
Этажи
2 этажа
Гараж
Нет гаража
Подвал / цокольный этаж
Без подвала
Длина дома
15.9 м
Ширина дома
12.0 м
Кровля
Металлочерепица
Облицовка внешних стен
Без облицовки
Толщина несущих наружных стен
200 мм
Межэтажные перекрытия
По деревянным балкам
Внутренние не несущие перегородки
Каркасно-обшивные
Терраса
Терраса крытая
Дополнительные
Окна
Окна до пола
,
Панорамные окна
Второй свет
Есть
Сауна/баня внутри
Есть
Площадь гостиной
30.2 м²
Площадь кухни
10 м²
Количество санузлов
6
Окно в ванной комнате
Есть
Котельная
Есть
Постирочная
Есть
Хозяйский санузел
Есть
Хозяйская гардеробная
Есть
Кладовая
1
Балкон / лоджия
Балкон
Планы помещений
Описание проекта
Компания Domamo предлагает проект дома из клееного бруса с двумя навесными балконами D762. Общая площадь - 436 м2, размер - 15.9х12.0 м. Фундамент - , кровля - металлочерепица, внешняя отделка - без облицовки. Для заказа проекта или внесения изменений свяжитесь с нами с помощью форм обратной связи на сайте или по телефону +7 (831) 231-05-01.
Категории проекта: деревянные для постоянного проживания из клееного бруса современные от 400 до 500 кв.м в европейском стиле с террасой двухэтажные с котельной со вторым светом двухэтажные деревянные с баней загородные с четырехскатной крышей с сауной с гардеробной прямоугольные с балконом с панорамным остеклением Проекты деревянных домов с террасой Проекты деревянных домов с баней Проекты двухэтажных домов из клееного бруса Проекты двухэтажных домов с террасой Проекты двухэтажных домов с верандой без гаража деревянные для круглогодичного проживания с 4 спальнями с панорамными окнами и террасой двухэтажные с сауной с балконом и террасой большие двухэтажные со вторым светом двухэтажные с панорамными окнами двухэтажные с 4 спальнями двухэтажные с балконом двухэтажные с балконом и террасой двухэтажные в современном стиле двухэтажные без гаража современные без гаража современные с панорамными окнами современные с окнами в пол современные с террасой современные большие современные со вторым светом большие с четырехскатной крышей большие с вторым светом большие с балконом большие прямоугольные большие с окном в ванной комнате большие с панорамными окнами большие с окнами в пол большие без гаража большие с террасой большие с баней большие с прачечной большие с котельной большие с мастер-спальней большие с 4 спальнями деревянные современные деревянные с окнами в пол деревянные с вторым светом деревянные с панорамными окнами деревянные с балконом деревянные прямоугольные деревянные без гаража деревянные с подрядом деревянные без подвала деревянные с 4 спальнями деревянные с большой гостиной деревянные с баней деревянные от 400 до 500 м2 деревянные большие недорогие с панорамными окнами из клееного бруса проект с подрядом из клееного бруса для постоянного проживания из клееного бруса с окном в ванной комнате из клееного бруса прямоугольный из клееного бруса с балконом из клееного бруса с вторым светом из клееного бруса с окнами в пол (на кухне) из клееного бруса с окнами в пол из клееного бруса с панорамными окнами из клееного бруса в скандинавском стиле из клееного бруса в современном стиле из клееного бруса с четырехскатной крышей из клееного бруса с каркасно-обшивными перегородками из клееного бруса без облицовки из клееного бруса с перекрытиями по деревянным балкам из клееного бруса с кровлей из металлочерепицы из клееного бруса с хозяйской гардеробной из клееного бруса с хозяйским санузлом из клееного бруса с котельной из клееного бруса с сауной/баней внутри из клееного бруса с выходом на терассу из гостиной из клееного бруса с выходом на терассу из кухни из клееного бруса с крытой терассой из клееного бруса без подвала из клееного бруса без гаража из клееного бруса двухэтажные из клееного бруса с большой гостиной Проекты домов с подрядом Показать все категории Скрыть категории

Похожие проекты
Состав проекта
Входит в стоимость
Цена, руб. Сроки, дней
Комплект архитектурно-строительных чертежей (АС) Входит в стоимость Готов к отправке
Разрабатывается отдельно
Цена, руб. Сроки, дней
Адаптация фундамента (изменение типа фундамента) по запросу 14 рабочих дней
Дизайн интерьера (стоимость от 2200руб. за квад.метр площади) по запросу 30 рабочих дней
Внесение изменений в проект по запросу 20 рабочих дней
Фэншуй дома 20 000 ₽ 14 рабочих дней в корзину
Фэншуй участка 15 000 ₽ 14 рабочих дней в корзину
Фэншуй полная консультация дом+участок с выездом на объект 100 000 ₽ 30 рабочих дней в корзину
Опции проекта вы можете заказать в корзине при оформлении заказа
Комплектации
Отзывы покупателей
Рейтинг покупателей
0 / 5 5 5 1
На основе 1 оценок покупателей
0%
0%
0%
0%
0%
Отзывы о проекте D762
Отзыв о проекте D762
Чтобы оставить отзыв, пожалуйста авторизуйтесь.
Подбор строительной компании
Не знаете кому доверить строительство дома? Мы можем помочь! Подберем для вас из сотен наших партнеров несколько компаний с лучшем соотношением цена/качество под конкретно ваш запрос.
Подобрать