D6885 Камала

Сравнить проект В избранное
Камала / 1
Камала / 2
Камала / 3
Камала / 4
Камала / 5
Камала / 6
Камала / 1
Камала / 2
Камала / 3
Камала / 4
Камала / 5
Камала / 6
D6885
130 м²
Проект с подрядом
Компания: Китежъ-Град
Стоимость строительства
не указана
Заказать подробную смету
+7 (950) XXX-XX-XX Показать телефон
Задать вопрос по проекту
Технические характеристики
Общие
Материал стен
Бревно
Общая площадь
130 м²
Количество жилых комнат/спален
3
Этажи
2 этажа
Гараж
Нет гаража
Количество машин
нет
Подвал / цокольный этаж
Без подвала
Кровля
Металлочерепица
Фундамент
Монолитная ж/бетонная плита
Дополнительные
Площадь гостиной
30 м²
Площадь кухни
15 м²
Количество санузлов
2
Кладовая
1
Планы помещений
Описание проекта
Жилой дом "Камала"

С радостью представляем вашему вниманию проект дома, выполненный из сибирского кедра по уникальной технологии ручной рубки. Первый этаж создан по канадской технологии с верхним затесом, а второй — по технологии Post and Beam.

Нежная розово-кремовая текстура дерева придает дому особую оригинальность, а высокие прочностные качества и устойчивость к внешним воздействиям окружающей среды позволяют назвать его "домом на века". Для строительства сруба использовались бревна диаметром 40-50 см.

Проект стал настоящим шедевром, сочетающим проверенные временем технологии деревянного строительства с удобной современной планировкой и вниманием к деталям.

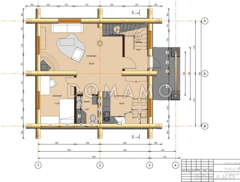
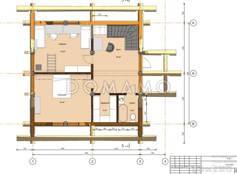
Планировка дома

Полезная площадь дома составляет 127,9 м²:

На первом этаже расположены гостиная площадью 30 кв. м, кухня-столовая — 15 кв. м, спальня — 11 кв. м и санузел — 4 кв. м. На втором этаже находятся две спальни по 19 кв. м, холл площадью 18 кв. м, второй санузел — 4 кв. м и гардеробная — 4 кв. м.

Благодаря технологии Post and Beam, мы можем воплотить в жизнь самые смелые и необычные планировки.

Проектировка дома предоставляется вам в качестве бонуса, подробности можно узнать у нашего менеджера.

Преимущества дома из кедра

Помимо исключительной текстуры и насыщенного теплого оттенка, кедр обладает идеальными экологическими свойствами, что делает его не только эстетически привлекательным, но и безопасным для здоровья.                                  Выгодные условия и все вопросы по проекту вы можете узнать у  нашего менеджера.

Похожие проекты
Состав проекта
Входит в стоимость
Цена, руб. Сроки, дней
Комплект архитектурно-строительных чертежей (АС) Входит в стоимость Готов к отправке
Разрабатывается отдельно
Цена, руб. Сроки, дней
Адаптация фундамента (изменение типа фундамента) по запросу 14 рабочих дней
Дизайн интерьера (стоимость от 2200руб. за квад.метр площади) по запросу 30 рабочих дней
Внесение изменений в проект по запросу 20 рабочих дней
Фэншуй дома 20 000 ₽ 14 рабочих дней в корзину
Фэншуй участка 15 000 ₽ 14 рабочих дней в корзину
Фэншуй полная консультация дом+участок с выездом на объект 100 000 ₽ 30 рабочих дней в корзину
Опции проекта вы можете заказать в корзине при оформлении заказа
Комплектации
Отзывы покупателей
Рейтинг покупателей
0 / 5 5 5 1
На основе 1 оценок покупателей
0%
0%
0%
0%
0%
Отзывы о проекте D6885
Отзыв о проекте D6885
Чтобы оставить отзыв, пожалуйста авторизуйтесь.
Подбор строительной компании
Не знаете кому доверить строительство дома? Мы можем помочь! Подберем для вас из сотен наших партнеров несколько компаний с лучшем соотношением цена/качество под конкретно ваш запрос.
Подобрать