D6838 Баня "Перун"

Сравнить проект В избранное
Баня "Перун" / 1
Баня "Перун" / 2
Баня "Перун" / 3
Баня "Перун" / 4
Баня "Перун" / 5
Баня "Перун" / 6
Баня "Перун" / 1
Баня "Перун" / 2
Баня "Перун" / 3
Баня "Перун" / 4
Баня "Перун" / 5
Баня "Перун" / 6
D6838
42 м²
Проект с подрядом
Компания: Китежъ-Град
Стоимость строительства
не указана
Заказать подробную смету
+7 (950) XXX-XX-XX Показать телефон
Задать вопрос по проекту
Технические характеристики
Общие
Материал стен
Бревно
Общая площадь
42 м²
Этажи
1 этаж
Гараж
Нет гаража
Количество машин
нет
Подвал / цокольный этаж
Без подвала
Кровля
Металлочерепица
Фундамент
Свайный
Терраса
Терраса застекленная (веранда)
Дополнительные
Сауна/баня внутри
Есть
Количество санузлов
1
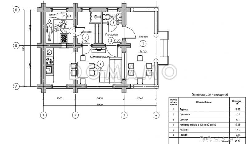
Планы помещений
Фасады
Описание проекта
Баня "Перун" — уникальное место для полного расслабления
Главной особенностью бани «Перун» является её парная, выполненная из сибирского кедра — натурального материала, обладающего удивительными свойствами, которые способствуют полному расслаблению и восстановлению организма. В парной создана идеальная температура и влажность, что позволяет вам получить максимальное удовольствие от процедуры.

Комната отдыха с кухонной зоной предлагает возможность приготовить легкие закуски или выпить чашку ароматного чая. Её площадь составляет 17 квадратных метров. Кроме того, есть просторная терраса площадью 12,5 квадратных метров для проведения летних вечеров и отдыха после парения. Здесь вы сможете наслаждаться свежим воздухом и великолепным видом на окружающую природу.

Помывочная комната площадью 4,5 квадратных метра идеально подходит для комфортного использования после парения. Парная, площадью 5,3 квадратных метра, подарит вам истинное удовольствие от процесса.

Общая площадь бани составляет 42,83 квадратных метра. Она выполнена в классическом ручном стиле из кедра, заготовленного зимой, с диаметром бревна 400 мм.

Срок изготовления сруба — всего один месяц.
Категории проекта: Проекты домов с подрядом

Похожие проекты
Состав проекта
Входит в стоимость
Цена, руб. Сроки, дней
Комплект архитектурно-строительных чертежей (АС) Входит в стоимость Готов к отправке
Разрабатывается отдельно
Цена, руб. Сроки, дней
Адаптация фундамента (изменение типа фундамента) по запросу 14 рабочих дней
Дизайн интерьера (стоимость от 2200руб. за квад.метр площади) по запросу 30 рабочих дней
Внесение изменений в проект по запросу 20 рабочих дней
Фэншуй дома 20 000 ₽ 14 рабочих дней в корзину
Фэншуй участка 15 000 ₽ 14 рабочих дней в корзину
Фэншуй полная консультация дом+участок с выездом на объект 100 000 ₽ 30 рабочих дней в корзину
Опции проекта вы можете заказать в корзине при оформлении заказа
Комплектации
Отзывы покупателей
Рейтинг покупателей
0 / 5 5 5 1
На основе 1 оценок покупателей
0%
0%
0%
0%
0%
Отзывы о проекте D6838
Отзыв о проекте D6838
Чтобы оставить отзыв, пожалуйста авторизуйтесь.
Подбор строительной компании
Не знаете кому доверить строительство дома? Мы можем помочь! Подберем для вас из сотен наших партнеров несколько компаний с лучшем соотношением цена/качество под конкретно ваш запрос.
Подобрать