Главная Проекты домов Проект дома-шале со вторым светом в гостиной и балконом на мансарде

D6659 Проект дома-шале со вторым светом в гостиной и балконом на мансарде

Сравнить проект В избранное
Проект дома-шале со вторым светом в гостиной и балконом на мансарде / 1
Проект дома-шале со вторым светом в гостиной и балконом на мансарде / 2
Проект дома-шале со вторым светом в гостиной и балконом на мансарде / 3
Проект дома-шале со вторым светом в гостиной и балконом на мансарде / 4
Проект дома-шале со вторым светом в гостиной и балконом на мансарде / 1
Проект дома-шале со вторым светом в гостиной и балконом на мансарде / 2
Проект дома-шале со вторым светом в гостиной и балконом на мансарде / 3
Проект дома-шале со вторым светом в гостиной и балконом на мансарде / 4
D6659
196 м²
Подготовка проекта:
25 рабочих дней
Стоимость проекта
Купить проект
Задайте вопросы по проекту нашему архитектору
8 (800) 200-28-83
Время работы: пн-вс: с 9:00 до 20:00
Задать вопрос по проекту

Технические характеристики
Общие
Материал стен
Брус
Общая площадь
196 м²
Жилая площадь
110.6 м²
Приведенная площадь
186.05 м²
Количество жилых комнат/спален
4
Этажи
1 этаж + мансарда
Гараж
Нет гаража
Подвал / цокольный этаж
Без подвала
Длина дома
18.5 м
Ширина дома
12 м
Высота в коньке
7.54 м
Кровля
Металлочерепица
Межэтажные перекрытия
По деревянным балкам
Внутренние не несущие перегородки
Кирпичные
Фундамент
Ленточный монолитный
Терраса
Терраса крытая
Дополнительные
Окна
Окна до пола
Второй свет
Есть
Мансардные окна
Есть
Камин
Есть
Сауна/баня внутри
Нет
Площадь гостиной
42 м²
Площадь кухни
12.3 м²
Количество санузлов
4
Окно в ванной комнате
Есть
Котельная
Есть
Хозяйский санузел
Есть
Кладовая
1
Балкон / лоджия
Балкон
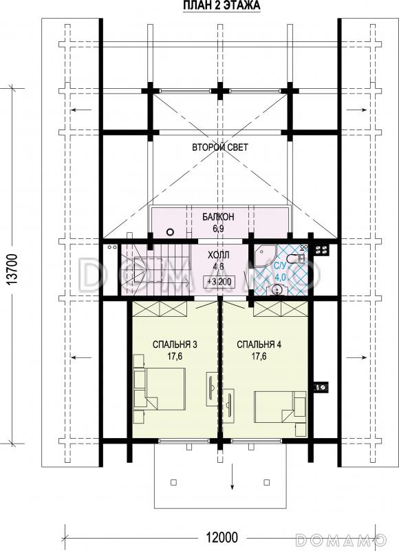
Планы помещений
Фасады
Описание проекта
Компания Domamo предлагает проект дома-шале со вторым светом в гостиной и балконом на мансарде D6659. Общая площадь - 196 м2, размер - 18.5х12 м. Фундамент - ленточный монолитный, кровля - металлочерепица, внешняя отделка - . Для заказа проекта или внесения изменений свяжитесь с нами с помощью форм обратной связи на сайте или по телефону +7 (831) 231-05-01.

Похожие проекты
Состав проекта
Входит в стоимость
Цена, руб. Сроки, дней
Комплект архитектурно-строительных чертежей (АС) Входит в стоимость 25 рабочих дней
Готово к продаже
Цена, руб. Сроки, дней
Зеркальная версия проекта Входит в стоимость 25 рабочих дней
Паспорт рабочего проекта 5 000 ₽ 25 рабочих дней в корзину
Инженерные разделы: ВК + ОВ + ЭО 23 000 ₽ 25 рабочих дней в корзину
Дополнительная копия проекта формата А3 3 000 ₽ 25 рабочих дней в корзину
Две дополнительные копии проекта формата А3 + 1 паспорт рабочего проекта 10 100 ₽ 25 рабочих дней в корзину
Электронная копия проекта (скан распечатанной версии) 4 000 ₽ 25 рабочих дней в корзину
Разрабатывается отдельно
Цена, руб. Сроки, дней
Адаптация фундамента (изменение типа фундамента) по запросу 14 рабочих дней
Дизайн интерьера (стоимость от 2200руб. за квад.метр площади) по запросу 30 рабочих дней
Внесение изменений в проект по запросу 20 рабочих дней
Фэншуй дома 20 000 ₽ 14 рабочих дней в корзину
Фэншуй участка 15 000 ₽ 14 рабочих дней в корзину
Фэншуй полная консультация дом+участок с выездом на объект 100 000 ₽ 30 рабочих дней в корзину
Опции проекта вы можете заказать в корзине при оформлении заказа
Отзывы покупателей
Рейтинг покупателей
0 / 5 5 5 1
На основе 1 оценок покупателей
0%
0%
0%
0%
0%
Отзывы о проекте D6659
Отзыв о проекте D6659
Чтобы оставить отзыв, пожалуйста авторизуйтесь.
Подбор строительной компании
Не знаете кому доверить строительство дома? Мы можем помочь! Подберем для вас из сотен наших партнеров несколько компаний с лучшем соотношением цена/качество под конкретно ваш запрос.
Подобрать