Главная Проекты домов Проект двухэтажного дома с подвалом, гаражом и верандой

D5838 Проект двухэтажного дома с подвалом, гаражом и верандой

Сравнить проект В избранное
Проект двухэтажного дома с подвалом, гаражом и верандой / 1
Проект двухэтажного дома с подвалом, гаражом и верандой / 2
Проект двухэтажного дома с подвалом, гаражом и верандой / 3
Проект двухэтажного дома с подвалом, гаражом и верандой / 4
Проект двухэтажного дома с подвалом, гаражом и верандой / 5
Проект двухэтажного дома с подвалом, гаражом и верандой / 1
Проект двухэтажного дома с подвалом, гаражом и верандой / 2
Проект двухэтажного дома с подвалом, гаражом и верандой / 3
Проект двухэтажного дома с подвалом, гаражом и верандой / 4
Проект двухэтажного дома с подвалом, гаражом и верандой / 5
D5838
400.2 м²
Подготовка проекта:
5 рабочих дней
Стоимость проекта
Купить проект
Задайте вопросы по проекту нашему архитектору
8 (800) 200-28-83
Время работы: пн-вс: с 9:00 до 20:00
Задать вопрос по проекту

Технические характеристики
Общие
Материал стен
Кирпич
Общая площадь
400.2 м²
Жилая площадь
129.4 м²
Площадь застройки
216.4 м²
Приведенная площадь
377.22 м²
Количество жилых комнат/спален
3
Этажи
2 этажа
Гараж
Нет гаража
Количество машин
2
Подвал / цокольный этаж
Без окон
Длина дома
16.3 м
Ширина дома
15.3 м
Высота в коньке
10.5 м
Кровля
Металлочерепица
Облицовка внешних стен
Мокрая штукатурка
Толщина несущих наружных стен
380 мм
Межэтажные перекрытия
Сборно-монолитные
Внутренние не несущие перегородки
Кирпичные
Фундамент
Утепленная шведская плита (УШП)
Терраса
Терраса открытая
,
Терраса крытая
,
Терраса застекленная (веранда)
Дополнительные
Камин
Есть
Сауна/баня внутри
Нет
Площадь гостиной
34.1 м²
Площадь кухни
13.7 м²
Количество санузлов
2
Котельная
Есть
Постирочная
Есть
Хозяйская гардеробная
Есть
Кладовая
4
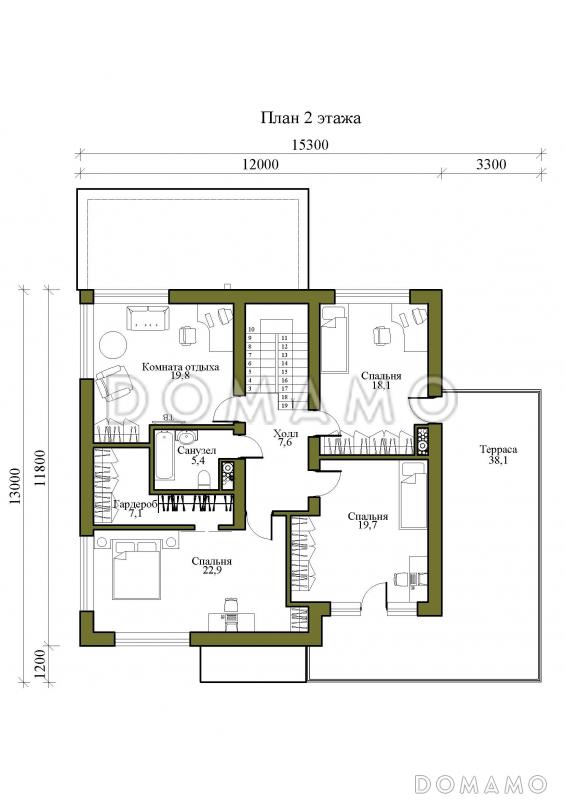
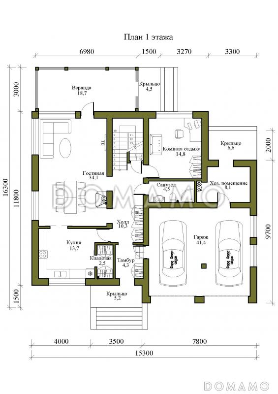
Планы помещений
Описание проекта
Компания Domamo предлагает проект двухэтажного дома с подвалом, гаражом и верандой D5838. Общая площадь - 400.2 м2, размер - 16.3х15.3 м. Фундамент - утепленная шведская плита (ушп), кровля - металлочерепица, внешняя отделка - мокрая штукатурка. Для заказа проекта или внесения изменений свяжитесь с нами с помощью форм обратной связи на сайте или по телефону +7 (831) 231-05-01.
Категории проекта: для постоянного проживания кирпич в классическом стиле от 400 до 500 кв.м кирпичные дома хай-тек классические кирпичные дома с террасой из кирпича с террасой готовые с цокольным этажом загородные из кирпича двухэтажные из кирпича двухэтажные кирпичные с подвалом кирпичные с котельной с подвалом с котельной загородные с камином с гардеробной прямоугольные с верандой кирпичные с верандой Проекты двухэтажных домов с террасой Проекты двухэтажных домов с верандой Проекты двухэтажных домов с подвалом без гаража с террасой и камином Проекты домов с тремя спальнями большие двухэтажные с камином двухэтажные с 3 спальнями двухэтажные в классическом стиле двухэтажные без гаража классические для постоянного проживания классические без гаража классические с гаражом на 2 машины классические с 3 спальнями классические с террасой классические готовые классические элитные классические с котельной классические с изолированной кухней классические с подвалом классические с 2 санузлами классические с прачечной классические прямоугольные классические с камином классические с вальмовой крышей большие готовые большие в классическом стиле большие с вальмовой крышей большие прямоугольные большие с камином большие без гаража большие с изолированной кухней большие с террасой большие с прачечной большие с котельной большие с тремя спальнями из клееного бруса без гаража Показать все категории Скрыть категории

Похожие проекты
Состав проекта
Входит в стоимость
Цена, руб. Сроки, дней
Комплект архитектурно-строительных чертежей (АС) Входит в стоимость Готов к отправке
Готово к продаже
Цена, руб. Сроки, дней
Паспорт рабочего проекта 5 000 ₽ 3 рабочих дня в корзину
Дополнительная копия проекта формата А3 4 000 ₽ Готов к отправке в корзину
Электронная копия проекта (скан распечатанной версии) 4 000 ₽ 3 рабочих дня в корзину
Разрабатывается отдельно
Цена, руб. Сроки, дней
Адаптация фундамента (изменение типа фундамента) по запросу 14 рабочих дней
Дизайн интерьера (стоимость от 2200руб. за квад.метр площади) по запросу 30 рабочих дней
Внесение изменений в проект по запросу 20 рабочих дней
Инженерные разделы: ВК + ОВ + ЭО 40 000 ₽ 20 рабочих дней в корзину
Зеркалирование проекта (для которого нет зеркальной версии) 8 000 ₽ 5 рабочих дней в корзину
Разработка Генплана участка, в масштабе 1:250 7 500 ₽ 5 рабочих дней в корзину
Фэншуй дома 20 000 ₽ 14 рабочих дней в корзину
Фэншуй участка 15 000 ₽ 14 рабочих дней в корзину
Фэншуй полная консультация дом+участок с выездом на объект 100 000 ₽ 30 рабочих дней в корзину
Опции проекта вы можете заказать в корзине при оформлении заказа
Отзывы покупателей
Рейтинг покупателей
0 / 5 5 5 1
На основе 1 оценок покупателей
0%
0%
0%
0%
0%
Отзывы о проекте D5838
Отзыв о проекте D5838
Чтобы оставить отзыв, пожалуйста авторизуйтесь.
Подбор строительной компании
Не знаете кому доверить строительство дома? Мы можем помочь! Подберем для вас из сотен наших партнеров несколько компаний с лучшем соотношением цена/качество под конкретно ваш запрос.
Подобрать