Главная Проекты домов Проект небольшого каркасного дачного дома с утеплением

D577 Проект небольшого каркасного дачного дома с утеплением

Сравнить проект В избранное
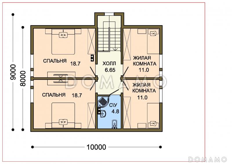
Проект небольшого каркасного дачного дома с утеплением  / 1
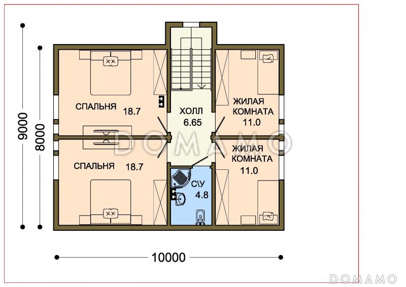
Проект небольшого каркасного дачного дома с утеплением  / 2
Проект небольшого каркасного дачного дома с утеплением  / 1
Проект небольшого каркасного дачного дома с утеплением  / 2
D577
155 м²
Подготовка проекта:
3 рабочих дня
Стоимость проекта
Купить проект
Задайте вопросы по проекту нашему архитектору
8 (800) 200-28-83
Время работы: пн-вс: с 9:00 до 20:00
Задать вопрос по проекту

Технические характеристики
Общие
Материал стен
Каркас
Общая площадь
155 м²
Жилая площадь
98.8 м²
Площадь застройки
96.3 м²
Приведенная площадь
144.96 м²
Количество жилых комнат/спален
5
Этажи
1 этаж + мансарда
Гараж
Нет гаража
Подвал / цокольный этаж
Без подвала
Длина дома
10 м
Ширина дома
9 м
Высота в коньке
7.8 м
Кровля
Металлочерепица
Облицовка внешних стен
Деревянная вагонка
,
Мокрая штукатурка
Толщина несущих наружных стен
150 мм
Межэтажные перекрытия
По деревянным балкам
Внутренние не несущие перегородки
Каркасно-обшивные
Фундамент
Монолитная ж/бетонная плита
Терраса
Терраса крытая
Дополнительные
Окна
Окна до пола
Мансардные окна
Есть
Камин
Есть
Сауна/баня внутри
Нет
Площадь гостиной
28.5 м²
Площадь кухни
9.7 м²
Количество санузлов
1
Котельная
Есть
Кладовая
1
Дом для узких участков
Есть
Планы помещений
Фасады
Описание проекта

Двухэтажный домик с мансардной крышей станет удобной дачей или местом круглогодичного проживания семьи из 3-х — 7-ми человек. Оформление «под дерево» дает ему особое очарование и близость к природе, панорамные и мансардные окна обеспечивают естественное освещение комнат. Строительство из каркасных конструкций ускоряет процесс возведения и делает дом энергоэффективным, а планировка предусматривает максимальное использование площади:

  • Гостиная совмещена со столовой, что удобно для послеобеденного отдыха и проведения праздников,
  • В плане — 5 жилых комнат, которые могут служить спальнями, кабинетом, гостевой,
  • Лестница вынесена в эркер, что сохраняет внутреннее пространство дома.
Категории проекта: с мансардой для постоянного проживания каркасные дачные дома от 100 до 200 кв.м с эркером с террасой каркасные дома с мансардой готовые одноэтажные с мансардой одноэтажные с котельной с котельной дачные с мансардой дачные с верандой для узкого участка с мансардой до 200 кв.м с двухскатной крышей 6х10 9х10 9х12 загородные с камином прямоугольные в русском стиле в стиле эклектика с эркером и мансардой Проекты одноэтажных каркасных домов Проекты каркасных домов с эркером Проекты каркасных домов с террасой Проекты одноэтажных домов с эркером Проекты одноэтажных домов с террасой дачные одноэтажные Типовые проекты загородных одноэтажных домов без гаража одноэтажные без гаража дачные с террасой с террасой и камином дачные с камином каркасные для постоянного проживания с мансардой и террасой полутораэтажные дачные с мансардой и верандой одноэтажные каркасные для круглогодичного проживания одноэтажные для узких участков дачные каркасные 9 на 12 с мансардой одноэтажные до 200 кв м недорогие с 5 спальнями одноэтажные с мансардными окнами с мансардой с котельной с мансардой с камином с мансардой с двухскатной крышей с мансардой с окнами до пола с мансардой с мансардными окнами с мансардой прямоугольные с мансардой готовые с мансардой для постоянного проживания с мансардой узкие с мансардой до 200 кв.м без гаража эклектика готовые для узких участков с камином с котельной с двухскатной крышей одноэтажные с мансардой каркасные одноэтажные с мансардой для постоянного проживания одноэтажные с мансардой дачные одноэтажные с мансардой в русском стиле одноэтажные с мансардой в стиле эклектика недорогие с мансардой недорогие в русском стиле недорогие в стиле эклектика недорогие без гаража недорогие с террасой недорогие для постоянного проживания недорогие дачные недорогие с двухскатной крышей недорогие с окнами до пола недорогие без бани недорогие с котельной недорогие с мансардными окнами недорогие с камином недорогие для узких участков недорогие прямоугольные недорогие 9х10 недорогие от 100 до 200 м2 в русском стиле без гаража в русском стиле с террасой в русском стиле с окнами в пол в русском стиле прямоугольные в русском стиле для постоянного проживания в русском стиле дачные в русском стиле для узких участков в русском стиле для с камином в русском стиле без бани в русском стиле с котельной в русском стиле с двускатной крышей в русском стиле узкие в русском стиле от 100 до 200 кв м из клееного бруса без гаража Показать все категории Скрыть категории

Похожие проекты
Состав проекта
Входит в стоимость
Цена, руб. Сроки, дней
Комплект архитектурно-строительных чертежей (АС) Входит в стоимость 3 рабочих дня
Готово к продаже
Цена, руб. Сроки, дней
Зеркальная версия проекта Входит в стоимость 3 рабочих дня
Паспорт рабочего проекта 4 000 ₽ 3 рабочих дня в корзину
Инженерные разделы: ВК + ОВ + ЭО 10 000 ₽ 3 рабочих дня в корзину
Дополнительная копия проекта формата А3 3 000 ₽ 3 рабочих дня в корзину
Две дополнительные копии проекта формата А3 + 1 паспорт рабочего проекта 10 000 ₽ 3 рабочих дня в корзину
Разрабатывается отдельно
Цена, руб. Сроки, дней
Адаптация фундамента (изменение типа фундамента) по запросу 14 рабочих дней
Дизайн интерьера (стоимость от 2200руб. за квад.метр площади) по запросу 30 рабочих дней
Внесение изменений в проект по запросу 20 рабочих дней
Фэншуй дома 20 000 ₽ 14 рабочих дней в корзину
Фэншуй участка 15 000 ₽ 14 рабочих дней в корзину
Фэншуй полная консультация дом+участок с выездом на объект 100 000 ₽ 30 рабочих дней в корзину
Опции проекта вы можете заказать в корзине при оформлении заказа
Отзывы покупателей
Рейтинг покупателей
0 / 5 5 5 1
На основе 1 оценок покупателей
0%
0%
0%
0%
0%
Отзывы о проекте D577
Отзыв о проекте D577
Чтобы оставить отзыв, пожалуйста авторизуйтесь.
Подбор строительной компании
Не знаете кому доверить строительство дома? Мы можем помочь! Подберем для вас из сотен наших партнеров несколько компаний с лучшем соотношением цена/качество под конкретно ваш запрос.
Подобрать