Главная Проекты домов Проект коттеджа в стиле модерн с парадным балконом

D520 Проект коттеджа в стиле модерн с парадным балконом

Сравнить проект В избранное
Проект коттеджа в стиле модерн с парадным балконом / 1
Проект коттеджа в стиле модерн с парадным балконом / 2
Проект коттеджа в стиле модерн с парадным балконом / 3
Проект коттеджа в стиле модерн с парадным балконом / 4
Проект коттеджа в стиле модерн с парадным балконом / 5
Проект коттеджа в стиле модерн с парадным балконом / 6
Проект коттеджа в стиле модерн с парадным балконом / 1
Проект коттеджа в стиле модерн с парадным балконом / 2
Проект коттеджа в стиле модерн с парадным балконом / 3
Проект коттеджа в стиле модерн с парадным балконом / 4
Проект коттеджа в стиле модерн с парадным балконом / 5
Проект коттеджа в стиле модерн с парадным балконом / 6
D520
670 м²
Подготовка проекта:
Готов к отправке
Стоимость проекта
Купить проект
Задайте вопросы по проекту нашему архитектору
8 (800) 200-28-83
Время работы: пн-вс: с 9:00 до 20:00
Задать вопрос по проекту

Технические характеристики
Общие
Материал стен
Кирпич
Общая площадь
670 м²
Жилая площадь
273 м²
Площадь застройки
328 м²
Приведенная площадь
592.11 м²
Количество жилых комнат/спален
5
Этажи
2 этажа
Гараж
Нет гаража
Подвал / цокольный этаж
С окнами
Длина дома
17.5 м
Ширина дома
15.4 м
Кровля
Гибкая черепица
Облицовка внешних стен
Мокрая штукатурка
,
Облицовка камнем
Толщина несущих наружных стен
510 мм
Межэтажные перекрытия
Сборно-монолитные
Внутренние не несущие перегородки
Кирпичные
Фундамент
Монолитная ж/бетонная плита
Терраса
Терраса крытая
Дополнительные
Окна
Панорамные окна
Камин
Есть
Сауна/баня внутри
Есть
Бассейн
Есть
Площадь гостиной
45.4 м²
Площадь кухни
20.5 м²
Количество санузлов
2
Окно в ванной комнате
Есть
Котельная
Есть
Кабинет
Есть
Постирочная
Есть
Хозяйский санузел
Есть
Хозяйская гардеробная
Есть
Кладовая
8
Балкон / лоджия
Балкон
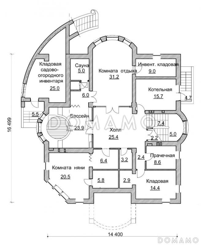
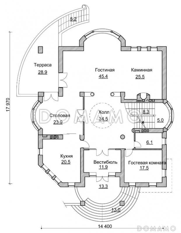
Планы помещений
Фасады
Описание проекта

Изысканный коттедж с четырьмя спальнями и бассейном на цокольном этаже подойдет для жизни за городом семьи 4-5 человек. Здание в стиле модерн украшают эркеры и парадное крыльцо с балконом над ним.

В этом проекте на цокольном этаже установлены окна и оборудованы полноценные комнаты. Здесь также расположен бассейн, сауна и кладовые. На первом этаже находятся комнаты для проведения времени всей семьей, а также гостевая спальня. Спальня хозяев и две детские размещены на втором этаже, в еще одной комнате архитектор предусмотрел кабинет.

Преимущества и особенности:

  • в спальне на цокольном этаже может жить обслуживающий персонал, например, няня,

  • множество подсобок позволяют лучше организовать хранение вещей и размещение технологического оборудования,

  • балкон на втором этаже органично продолжает холл и дает возможность отдохнуть на свежем воздухе, не выходя из дома.

Категории проекта: для постоянного проживания кирпич от 500 кв.м с эркером кирпичные дома с эркером с террасой из кирпича с террасой готовые в стиле модерн с цокольным этажом загородные из кирпича двухэтажные из кирпича двухэтажные кирпичные с цокольным этажом кирпичные с котельной с котельной с баней с бассейном загородные с четырехскатной крышей с мансардной крышей с баней и бассейном с камином с сауной с гардеробной с балконом с панорамным остеклением кирпичные с баней кирпичные с бассейном двухэтажные с цокольным этажом двухэтажные с эркером Проекты двухэтажных домов с террасой Проекты двухэтажных домов с верандой без гаража с террасой и камином с кабинетом особняки каменные с панорамными окнами и террасой двухэтажные с сауной с балконом и террасой с 5 спальнями большие сложной формы двухэтажные с камином двухэтажные с панорамными окнами двухэтажные с балконом двухэтажные с балконом и террасой двухэтажные с бассейном двухэтажные без гаража большие готовые большие в стиле модерн большие с четырехскатной крышей большие с балконом большие сложной формы большие с камином большие с бассейном большие с окном в ванной комнате большие с панорамными окнами большие без гаража большие с большой кухней большие с изолированной кухней большие с террасой большие с баней большие с прачечной большие с котельной большие с кабинетом большие с мастер-спальней недорогие с панорамными окнами из клееного бруса без гаража Показать все категории Скрыть категории

Похожие проекты
Состав проекта
Входит в стоимость
Цена, руб. Сроки, дней
Комплект архитектурно-строительных чертежей (АС) Входит в стоимость Готов к отправке
Разрабатывается отдельно
Цена, руб. Сроки, дней
Адаптация фундамента (изменение типа фундамента) по запросу 14 рабочих дней
Дизайн интерьера (стоимость от 2200руб. за квад.метр площади) по запросу 30 рабочих дней
Внесение изменений в проект по запросу 20 рабочих дней
Фэншуй дома 20 000 ₽ 14 рабочих дней в корзину
Фэншуй участка 15 000 ₽ 14 рабочих дней в корзину
Фэншуй полная консультация дом+участок с выездом на объект 100 000 ₽ 30 рабочих дней в корзину
Опции проекта вы можете заказать в корзине при оформлении заказа
Отзывы покупателей
Рейтинг покупателей
0 / 5 5 5 1
На основе 1 оценок покупателей
0%
0%
0%
0%
0%
Отзывы о проекте D520
Отзыв о проекте D520
Чтобы оставить отзыв, пожалуйста авторизуйтесь.
Подбор строительной компании
Не знаете кому доверить строительство дома? Мы можем помочь! Подберем для вас из сотен наших партнеров несколько компаний с лучшем соотношением цена/качество под конкретно ваш запрос.
Подобрать