Главная Проекты домов Проект уютного загородного дома из SIP панелей с ажурным крыльцом под зеленой крышей

D5178 Проект уютного загородного дома из SIP панелей с ажурным крыльцом под зеленой крышей

Сравнить проект В избранное
Проект уютного загородного дома из SIP панелей с ажурным крыльцом под зеленой крышей / 1
Проект уютного загородного дома из SIP панелей с ажурным крыльцом под зеленой крышей / 1
D5178
170 м²
Подготовка проекта:
25 рабочих дней
Стоимость проекта
Купить проект
Задайте вопросы по проекту нашему архитектору
8 (800) 200-28-83
Время работы: пн-вс: с 9:00 до 20:00
Задать вопрос по проекту

Технические характеристики
Общие
Материал стен
SIP
Общая площадь
170 м²
Жилая площадь
89.0 м²
Площадь застройки
120.7 м²
Приведенная площадь
164.1 м²
Количество жилых комнат/спален
5
Этажи
1 этаж + мансарда
Гараж
Нет гаража
Подвал / цокольный этаж
Без подвала
Длина дома
12.3 м
Ширина дома
8.3 м
Высота в коньке
8.8 м
Кровля
Гибкая черепица
Облицовка внешних стен
Мокрая штукатурка
,
Облицовка камнем
Толщина несущих наружных стен
400 мм
Межэтажные перекрытия
По деревянным балкам
Внутренние не несущие перегородки
Газобетонные
Фундамент
Малозаглубленные ростверки
Терраса
Терраса крытая
Дополнительные
Мансардные окна
Есть
Камин
Есть
Сауна/баня внутри
Нет
Площадь гостиной
22 м²
Площадь кухни
15.6 м²
Количество санузлов
2
Окно в ванной комнате
Есть
Котельная
Есть
Кабинет
Есть
Кладовая
1
Дом для узких участков
Есть
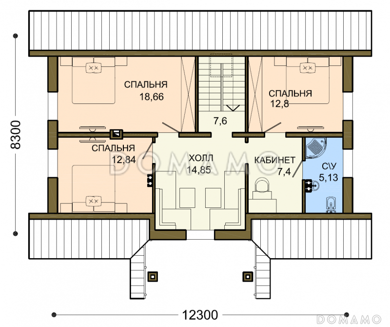
Планы помещений
Фасады
Описание проекта

Двухэтажный мансардный дом из пенобетона с выразительным сочетанием штукатурки и каменной облицовке в форме арок и других декоративных элементов. Проектом предусмотрены четыре спальни и кабинет, доступ дополнительного естественного солнечного света и тепла обеспечивают мансардные окна. В функциональной зоне расположены котельная и кладовая, на каждом этаже кладовой и котельной, а также для просторного санузла на каждом этаже.

Ключевые особенности:

  • Архитектурная выразительность экстерьера — ажурный козырек над крыльцом, каменные вставки, отделанные камнем колоны.
  • Два санузла, по одному на каждом этаже.
  • Удобная широкая маршевая лестница.
  • Спальня на первом этаже для старших членов семьи.
  • Отдельная техническая зона с помещениями для котельной и кладовой.
  • Энергоэффективный и недорогой материал стен — пенобетон.
Категории проекта: с мансардой для постоянного проживания из сип панелей по технологии Velox от 100 до 200 кв.м в европейском стиле с террасой готовые одноэтажные с мансардой одноэтажные с котельной с котельной из сип панелей с мансардой для узкого участка с мансардой до 200 кв.м с двухскатной крышей загородные с камином прямоугольные Проекты одноэтажных домов из сип панелей Проекты одноэтажных домов с террасой Типовые проекты загородных одноэтажных домов без гаража одноэтажные без гаража с террасой и камином с кабинетом с мансардой и террасой полутораэтажные одноэтажные для узких участков каменные одноэтажные до 200 кв м с 5 спальнями одноэтажные с мансардными окнами с мансардой с котельной с мансардой с камином с мансардой с двухскатной крышей с мансардой в европейском стиле с мансардой с мансардными окнами с мансардой прямоугольные с мансардой готовые с мансардой для постоянного проживания с мансардой узкие с мансардой до 200 кв.м одноэтажные с мансардой из SIP-панелей одноэтажные с мансардой для постоянного проживания одноэтажные с мансардой с большой кухней одноэтажные с мансардой с изолированной кухней одноэтажные с мансардой в европейском стиле европейские для постоянного проживания европейские готовые европейские без подвала европейские с террасой европейские с изолированной кухней европейские с 2 санузлами европейские с котельной европейские с кабинетом европейские с кладовой европейские прямоугольные европейские с мансардными окнами европейские с двухскатной крышей европейские с камином европейские для узких участков европейские 100-200 м2 из клееного бруса без гаража Показать все категории Скрыть категории

Похожие проекты
Состав проекта
Входит в стоимость
Цена, руб. Сроки, дней
Комплект архитектурно-строительных чертежей (АС) Входит в стоимость 25 рабочих дней
Разрабатывается отдельно
Цена, руб. Сроки, дней
Адаптация фундамента (изменение типа фундамента) по запросу 14 рабочих дней
Дизайн интерьера (стоимость от 2200руб. за квад.метр площади) по запросу 30 рабочих дней
Внесение изменений в проект по запросу 20 рабочих дней
Фэншуй дома 20 000 ₽ 14 рабочих дней в корзину
Фэншуй участка 15 000 ₽ 14 рабочих дней в корзину
Фэншуй полная консультация дом+участок с выездом на объект 100 000 ₽ 30 рабочих дней в корзину
Опции проекта вы можете заказать в корзине при оформлении заказа
Отзывы покупателей
Рейтинг покупателей
0 / 5 5 5 1
На основе 1 оценок покупателей
0%
0%
0%
0%
0%
Отзывы о проекте D5178
Отзыв о проекте D5178
Чтобы оставить отзыв, пожалуйста авторизуйтесь.
Подбор строительной компании
Не знаете кому доверить строительство дома? Мы можем помочь! Подберем для вас из сотен наших партнеров несколько компаний с лучшем соотношением цена/качество под конкретно ваш запрос.
Подобрать