Главная Проекты домов Проект загородного дома с террасой, кабинетом, совмещенной гостиной-столовой

D4701 Проект загородного дома с террасой, кабинетом, совмещенной гостиной-столовой

Сравнить проект В избранное
Проект загородного дома с террасой, кабинетом, совмещенной гостиной-столовой / 1
Проект загородного дома с террасой, кабинетом, совмещенной гостиной-столовой / 1
D4701
182 м²
Подготовка проекта:
25 рабочих дней
Стоимость проекта
Купить проект
Задайте вопросы по проекту нашему архитектору
8 (800) 200-28-83
Время работы: пн-вс: с 9:00 до 20:00
Задать вопрос по проекту

Технические характеристики
Общие
Материал стен
Газобетон
,
Кирпич
Общая площадь
182 м²
Жилая площадь
107.8 м²
Приведенная площадь
185.61 м²
Количество жилых комнат/спален
5
Этажи
1 этаж + мансарда
Гараж
Нет гаража
Подвал / цокольный этаж
Без подвала
Длина дома
16.36 м
Ширина дома
10.86 м
Кровля
Металлочерепица
Облицовка внешних стен
Деревянная вагонка
,
Мокрая штукатурка
Межэтажные перекрытия
Сборные
Фундамент
Монолитная ж/бетонная плита
Терраса
Терраса открытая
Дополнительные
Окна
Окна до пола
Камин
Есть
Сауна/баня внутри
Нет
Площадь гостиной
27.6 м²
Площадь кухни
10.2 м²
Количество санузлов
4
Окно в ванной комнате
Есть
Котельная
Есть
Кабинет
Есть
Хозяйский санузел
Есть
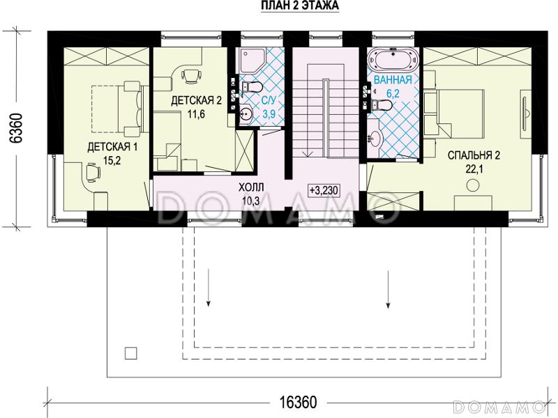
Планы помещений
Фасады
Описание проекта
Компания Domamo предлагает проект загородного дома с террасой, кабинетом, совмещенной гостиной-столовой D4701. Общая площадь - 182 м2, размер - 16.36х10.86 м. Фундамент - монолитная ж/бетонная плита, кровля - металлочерепица, внешняя отделка - деревянная вагонка мокрая штукатурка. Для заказа проекта или внесения изменений свяжитесь с нами с помощью форм обратной связи на сайте или по телефону +7 (831) 231-05-01.
Категории проекта: с мансардой для постоянного проживания пенобетон кирпич современные от 100 до 200 кв.м кирпичные дома с мансардой в европейском стиле с террасой из кирпича с террасой из пеноблоков с мансардой из газобетона готовые из газобетона с мансардой загородные из кирпича одноэтажные из кирпича одноэтажные из кирпича с мансардой одноэтажные кирпичные с котельной одноэтажные с мансардой кирпичные с котельной одноэтажные с котельной с котельной одноэтажные из газобетона из газосиликатных блоков кирпичные до 200 кв.м до 200 кв.м загородные из керамзитобетонных блоков с камином прямоугольные из газобетона с террасой из блоков одноэтажные из блоков из блоков с мансардой современные кирпичные из пеноблоков с террасой загородные из газобетона Проекты одноэтажных домов с террасой Типовые проекты загородных одноэтажных домов без гаража одноэтажные без гаража с террасой и камином с кабинетом одноэтажных из керамзитобетонных блоков с односкатной крышей с мансардой и террасой полутораэтажные одноэтажные до 200 кв м полутораэтажные из кирпича из пеноблоков загородные с 5 спальнями с мансардой с котельной с мансардой с камином с мансардой с односкатной крышей с мансардой современные с мансардой с окнами до пола с мансардой прямоугольные с мансардой готовые с мансардой для постоянного проживания с мансардой до 200 кв.м одноэтажные из газобетона с террасой одноэтажные из газобетона с мансардой с односкатной крышей готовые для постоянного проживания с камином без гаража без подвала современные прямоугольные из газобетона до 200 кв.м из газобетона от 100 до 200 кв.м из газобетона с односкатной крышей из газобетона современные из газобетона с котельной из газобетона прямоугольные из газобетона готовые из газобетона с камином из газобетона с кабинетом из газобетона для постоянного проживания двухэтажные из газобетона без гаража двухэтажные из газобетона с террасой двухэтажные из газобетона с камином двухэтажные из газобетона с кабинетом двухэтажные из газобетона с котельной двухэтажные из газобетона современные двухэтажные из газобетона до 200 кв. м двухэтажные из газобетона без подвала из газобетона с мансардой современные из газобетона с мансардой с террасой из газобетона с мансардой с камином из газобетона с мансардой для постоянного проживания из газобетона с мансардой готовые из газобетона с мансардой прямоугольные одноэтажные с мансардой для постоянного проживания одноэтажные с мансардой современные современные без гаража современные с односкатной крышей современные с окнами в пол современные с террасой современные от 100 до 200 кв. м европейские с односкатной крышей из пеноблоков в современном стиле из пеноблоков с односкатной крышей из пеноблоков с окнами до пола из пеноблоков прямоугольные из пеноблоков для постоянного проживания из пеноблоков готовые из пеноблоков с камином из пеноблоков от 100 до 200 м2 из клееного бруса без гаража Показать все категории Скрыть категории

Похожие проекты
Состав проекта
Входит в стоимость
Цена, руб. Сроки, дней
Комплект архитектурно-строительных чертежей (АС) Входит в стоимость 25 рабочих дней
Готово к продаже
Цена, руб. Сроки, дней
Зеркальная версия проекта Входит в стоимость 25 рабочих дней
Паспорт рабочего проекта 5 000 ₽ 25 рабочих дней в корзину
Инженерные разделы: ВК + ОВ + ЭО 23 000 ₽ 25 рабочих дней в корзину
Дополнительная копия проекта формата А3 3 000 ₽ 25 рабочих дней в корзину
Две дополнительные копии проекта формата А3 + 1 паспорт рабочего проекта 10 100 ₽ 25 рабочих дней в корзину
Электронная копия проекта (скан распечатанной версии) 4 000 ₽ 3 рабочих дня в корзину
Разрабатывается отдельно
Цена, руб. Сроки, дней
Адаптация фундамента (изменение типа фундамента) по запросу 14 рабочих дней
Дизайн интерьера (стоимость от 2200руб. за квад.метр площади) по запросу 30 рабочих дней
Внесение изменений в проект по запросу 20 рабочих дней
Фэншуй дома 20 000 ₽ 14 рабочих дней в корзину
Фэншуй участка 15 000 ₽ 14 рабочих дней в корзину
Фэншуй полная консультация дом+участок с выездом на объект 100 000 ₽ 30 рабочих дней в корзину
Опции проекта вы можете заказать в корзине при оформлении заказа
Отзывы покупателей
Рейтинг покупателей
0 / 5 5 5 1
На основе 1 оценок покупателей
0%
0%
0%
0%
0%
Отзывы о проекте D4701
Отзыв о проекте D4701
Чтобы оставить отзыв, пожалуйста авторизуйтесь.
Подбор строительной компании
Не знаете кому доверить строительство дома? Мы можем помочь! Подберем для вас из сотен наших партнеров несколько компаний с лучшем соотношением цена/качество под конкретно ваш запрос.
Подобрать