Главная Проекты домов Проект компактного коттеджа из SIP с двускатной кровлей

D4274 Проект компактного коттеджа из SIP с двускатной кровлей

Сравнить проект В избранное
Проект компактного коттеджа из SIP с двускатной кровлей / 1
Проект компактного коттеджа из SIP с двускатной кровлей / 2
Проект компактного коттеджа из SIP с двускатной кровлей / 1
Проект компактного коттеджа из SIP с двускатной кровлей / 2
D4274
128 м²
Подготовка проекта:
25 рабочих дней
Стоимость проекта
Купить проект
Задайте вопросы по проекту нашему архитектору
8 (800) 200-28-83
Время работы: пн-вс: с 9:00 до 20:00
Задать вопрос по проекту

Технические характеристики
Общие
Материал стен
SIP
Общая площадь
128 м²
Жилая площадь
82.0 м²
Площадь застройки
113.7 м²
Приведенная площадь
123.13 м²
Количество жилых комнат/спален
4
Этажи
1 этаж + мансарда
Гараж
Нет гаража
Подвал / цокольный этаж
С окнами
Длина дома
11.6 м
Ширина дома
7.5 м
Высота в коньке
9.1 м
Кровля
Натуральная черепица
Облицовка внешних стен
Облицовочный кирпич
Толщина несущих наружных стен
400 мм
Межэтажные перекрытия
Сборные
Внутренние не несущие перегородки
Газобетонные
Фундамент
Малозаглубленные ростверки
Терраса
Терраса крытая
Дополнительные
Окна
Круглые окна
Мансардные окна
Есть
Камин
Есть
Сауна/баня внутри
Нет
Площадь гостиной
17 м²
Площадь кухни
10.7 м²
Количество санузлов
2
Котельная
Есть
Кабинет
Есть
Хозяйская гардеробная
Есть
Кладовая
2
Балкон / лоджия
Балкон
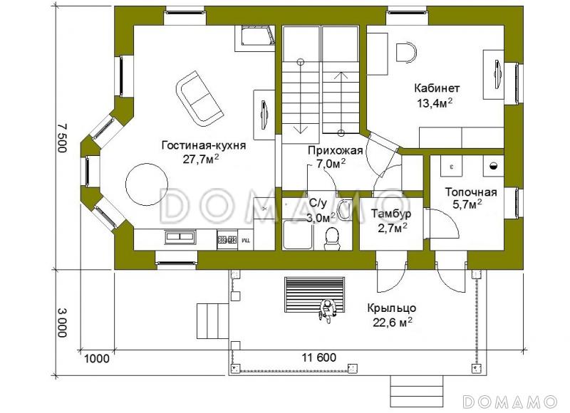
Планы помещений
Фасады
Описание проекта

Проект уютного коттеджа с мансардой, выполненного в европейском стиле, который отлично подойдет для проживания семьи из трех-четырех человек. Ключевыми деталями экстерьера постройки здесь выступают натуральная черепица, а также небольшие башенки, украшающие крышу и придающие дому особенный колорит. Перед входом расположена достаточно просторная терраса, где хозяева смогут разместить уличную мебель для отдыха. На первом этаже – кухня, объединенная с гостиной, хозяйский кабинет и топочная. Второй этаж занимают три спальных комнаты, в одной из которых предусмотрен выход на балкон и личная гардеробная.

Ключевые особенности:

  • Просторная крытая терраса, где можно разместить мебель для отдыха.
  • Мастер - спальня на втором этаже
Категории проекта: с мансардой для постоянного проживания из сип панелей для узких участков по технологии Velox от 100 до 200 кв.м в европейском стиле с эркером с террасой готовые с цокольным этажом одноэтажные с мансардой одноэтажные до 150 кв. м. одноэтажные с цокольным этажом одноэтажные с котельной с котельной из сип панелей с мансардой с цокольным этажом и мансардой до 150 кв.м до 200 кв.м с двухскатной крышей загородные с мансардной крышей с камином с гардеробной узкие прямоугольные с балконом с эркером и мансардой Проекты одноэтажных домов из сип панелей Проекты одноэтажных домов с эркером Проекты одноэтажных домов с террасой Типовые проекты загородных одноэтажных домов без гаража одноэтажные без гаража с террасой и камином облицованные кирпичом с кабинетом одноэтажные с 4 спальнями с мансардой до 150 кв м с мансардой и террасой полутораэтажные с 4 спальнями одноэтажные до 200 кв м до 140 кв м до 130 кв м с балконом и террасой одноэтажные с мансардными окнами с мансардой с котельной с мансардой с камином с мансардой с двухскатной крышей с мансардой в европейском стиле с мансардой с мансардными окнами с мансардой с балконом с мансардой прямоугольные с мансардой готовые с мансардой для постоянного проживания с мансардой до 200 кв.м с мансардой от 100 до 150 кв.м одноэтажные с мансардой из SIP-панелей одноэтажные с мансардой для постоянного проживания одноэтажные с мансардой в европейском стиле одноэтажные с мансардой с балконом европейские для постоянного проживания европейские дорогие европейские готовые европейские с подвалом европейские с террасой европейские с 2 санузлами европейские с котельной европейские с кабинетом европейские с кладовой европейские с балконом европейские прямоугольные европейские с мансардными окнами европейские с двухскатной крышей европейские с мансардной крышей европейские с камином европейские до 150 м2 европейские 100-200 м2 до 150 кв.м из SIP-панелей до 150 кв.м для постоянного проживания до 150 кв.м без гаража до 150 кв.м с двухскатной крышей до 150 кв.м готовые до 150 кв.м с мансардными окнами до 150 кв.м с балконом до 150 кв.м прямоугольные до 150 кв.м с котельной до 150 кв.м с кабинетом до 150 кв.м без бани до 150 кв.м с террасой до 150 кв.м с 4 спальнями до 150 кв.м с камином из клееного бруса без гаража Показать все категории Скрыть категории

Похожие проекты
Состав проекта
Входит в стоимость
Цена, руб. Сроки, дней
Комплект архитектурно-строительных чертежей (АС) Входит в стоимость 25 рабочих дней
Готово к продаже
Цена, руб. Сроки, дней
Электронная копия проекта (скан распечатанной версии) 4 000 ₽ 3 рабочих дня в корзину
Разрабатывается отдельно
Цена, руб. Сроки, дней
Адаптация фундамента (изменение типа фундамента) по запросу 14 рабочих дней
Дизайн интерьера (стоимость от 2200руб. за квад.метр площади) по запросу 30 рабочих дней
Внесение изменений в проект по запросу 20 рабочих дней
Фэншуй дома 20 000 ₽ 14 рабочих дней в корзину
Фэншуй участка 15 000 ₽ 14 рабочих дней в корзину
Фэншуй полная консультация дом+участок с выездом на объект 100 000 ₽ 30 рабочих дней в корзину
Опции проекта вы можете заказать в корзине при оформлении заказа
Варианты проекта Сравнить все варианты
Отзывы покупателей
Рейтинг покупателей
0 / 5 5 5 1
На основе 1 оценок покупателей
0%
0%
0%
0%
0%
Отзывы о проекте D4274
Отзыв о проекте D4274
Чтобы оставить отзыв, пожалуйста авторизуйтесь.
Подбор строительной компании
Не знаете кому доверить строительство дома? Мы можем помочь! Подберем для вас из сотен наших партнеров несколько компаний с лучшем соотношением цена/качество под конкретно ваш запрос.
Подобрать