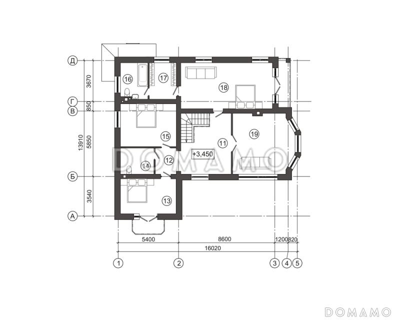
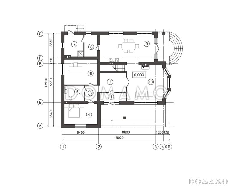
Большой дом с арочными окнами смотрится величественно благодаря вертикальной ориентации архитектурных элементов, арочным проемам и эркерным зонам. Внутреннее пространство отличается наполнением естественным светом, который дают застекленные выступающие участки постройки и устройство второго освещения в гостиной. Несмотря на внешнюю грандиозность здания, внутри него царят уют и комфорт: