Главная Проекты домов Проект большого современного дома из SIP панелей с цокольным этажом и навесом для двух автомобилей

D3176 Проект большого современного дома из SIP панелей с цокольным этажом и навесом для двух автомобилей

Сравнить проект В избранное
Проект большого современного дома из SIP панелей с цокольным этажом и навесом для двух автомобилей / 1
Проект большого современного дома из SIP панелей с цокольным этажом и навесом для двух автомобилей / 2
Проект большого современного дома из SIP панелей с цокольным этажом и навесом для двух автомобилей / 1
Проект большого современного дома из SIP панелей с цокольным этажом и навесом для двух автомобилей / 2
D3176
526 м²
Подготовка проекта:
25 рабочих дней
Стоимость проекта
Купить проект
Задайте вопросы по проекту нашему архитектору
8 (800) 200-28-83
Время работы: пн-вс: с 9:00 до 20:00
Задать вопрос по проекту

Технические характеристики
Общие
Материал стен
SIP
Общая площадь
526 м²
Площадь застройки
242.8 м²
Приведенная площадь
508.656 м²
Количество жилых комнат/спален
4
Этажи
1 этаж + мансарда
Гараж
Нет гаража
Количество машин
2
Подвал / цокольный этаж
С окнами
Длина дома
22.03 м
Ширина дома
17.24 м
Высота в коньке
8.55 м
Кровля
Металлочерепица
Облицовка внешних стен
Облицовочный кирпич
Толщина несущих наружных стен
520 мм
Межэтажные перекрытия
Сборные
Фундамент
Ленточный монолитный
Терраса
Терраса открытая
Дополнительные
Окна
Окна до пола
Сауна/баня внутри
Есть
Площадь гостиной
30 м²
Площадь кухни
14.18 м²
Количество санузлов
5
Окно в ванной комнате
Есть
Котельная
Есть
Кабинет
Есть
Кладовая
1
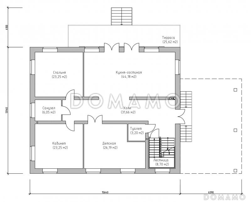
Планы помещений
Описание проекта
Компания Domamo предлагает проект большого современного дома из sip панелей с цокольным этажом и навесом для двух автомобилей D3176. Общая площадь - 526 м2, размер - 22.03х17.24 м. Фундамент - ленточный монолитный, кровля - металлочерепица, внешняя отделка - облицовочный кирпич. Для заказа проекта или внесения изменений свяжитесь с нами с помощью форм обратной связи на сайте или по телефону +7 (831) 231-05-01.
Категории проекта: с мансардой для постоянного проживания шале из сип панелей по технологии Velox от 500 кв.м с террасой готовые с цокольным этажом одноэтажные с мансардой одноэтажные с цокольным этажом одноэтажные с котельной с котельной из сип панелей с мансардой с баней с цокольным этажом и мансардой загородные с сауной прямоугольные Проекты одноэтажных домов из сип панелей Проекты одноэтажных домов с террасой Типовые проекты загородных одноэтажных домов Проекты одноэтажных домов с баней без гаража одноэтажные без гаража облицованные кирпичом с кабинетом одноэтажные с 4 спальнями с мансардой и террасой полутораэтажные особняки одноэтажные шале с 4 спальнями большие с мансардой с баней с мансардой с котельной с мансардой шале с мансардой с окнами до пола с мансардой прямоугольные с мансардой готовые с мансардой для постоянного проживания с мансардой элитные с мансардой большие одноэтажные с мансардой из SIP-панелей одноэтажные с мансардой для постоянного проживания одноэтажные с мансардой в стиле шале большие готовые большие прямоугольные большие с окном в ванной комнате большие с окнами в пол большие без гаража большие с террасой большие с баней большие с котельной большие с кабинетом большие с 4 спальнями недорогие с мансардой недорогие в стиле шале недорогие без гаража недорогие с террасой недорогие для постоянного проживания недорогие с окнами до пола недорогие с баней недорогие с кабинетом недорогие с котельной недорогие прямоугольные недорогие большие из клееного бруса без гаража Показать все категории Скрыть категории

Похожие проекты
Состав проекта
Входит в стоимость
Цена, руб. Сроки, дней
Комплект архитектурно-строительных чертежей (АС) Входит в стоимость 25 рабочих дней
Готово к продаже
Цена, руб. Сроки, дней
Дополнительная копия проекта формата А3 4 000 ₽ 3 рабочих дня в корзину
Электронная копия проекта (скан распечатанной версии) 4 000 ₽ 3 рабочих дня в корзину
3D модель дома 20 000 ₽ 3 рабочих дня в корзину
Разрабатывается отдельно
Цена, руб. Сроки, дней
Адаптация фундамента (изменение типа фундамента) по запросу 14 рабочих дней
Дизайн интерьера (стоимость от 2200руб. за квад.метр площади) по запросу 30 рабочих дней
Внесение изменений в проект по запросу 20 рабочих дней
Разработка Генплана участка, в масштабе 1:250 7 000 ₽ 15 рабочих дней в корзину
Фэншуй дома 20 000 ₽ 14 рабочих дней в корзину
Фэншуй участка 15 000 ₽ 14 рабочих дней в корзину
Фэншуй полная консультация дом+участок с выездом на объект 100 000 ₽ 30 рабочих дней в корзину
Опции проекта вы можете заказать в корзине при оформлении заказа
Отзывы покупателей
Рейтинг покупателей
0 / 5 5 5 1
На основе 1 оценок покупателей
0%
0%
0%
0%
0%
Отзывы о проекте D3176
Отзыв о проекте D3176
Чтобы оставить отзыв, пожалуйста авторизуйтесь.
Подбор строительной компании
Не знаете кому доверить строительство дома? Мы можем помочь! Подберем для вас из сотен наших партнеров несколько компаний с лучшем соотношением цена/качество под конкретно ваш запрос.
Подобрать