Главная Проекты домов Проект двухэтажного деревянного дома с двумя террасами и гаражом на 1 автомобиль

D3136 Проект двухэтажного деревянного дома с двумя террасами и гаражом на 1 автомобиль

Сравнить проект В избранное
Проект двухэтажного деревянного дома с двумя террасами и гаражом на 1 автомобиль / 1
Проект двухэтажного деревянного дома с двумя террасами и гаражом на 1 автомобиль / 1
D3136
216 м²
Подготовка проекта:
Готов к отправке
Стоимость проекта
Купить проект
Задайте вопросы по проекту нашему архитектору
8 (800) 200-28-83
Время работы: пн-вс: с 9:00 до 20:00
Задать вопрос по проекту

Технические характеристики
Общие
Материал стен
Брус
Общая площадь
216 м²
Жилая площадь
111 м²
Приведенная площадь
206.52 м²
Количество жилых комнат/спален
4
Этажи
2 этажа
Гараж
Пристроенный гараж
Количество машин
1
Подвал / цокольный этаж
Без подвала
Длина дома
16.3 м
Ширина дома
13.8 м
Высота в коньке
10.1 м
Кровля
Гибкая черепица
Облицовка внешних стен
Без облицовки
Толщина несущих наружных стен
200 мм
Межэтажные перекрытия
По деревянным балкам
Внутренние не несущие перегородки
Каркасно-обшивные
Фундамент
Ленточный монолитный
Терраса
Терраса крытая
Дополнительные
Камин
Есть
Сауна/баня внутри
Нет
Площадь гостиной
20.1 м²
Площадь кухни
15.2 м²
Количество санузлов
2
Котельная
Есть
Кабинет
Есть
Кладовая
1
Балкон / лоджия
Балкон
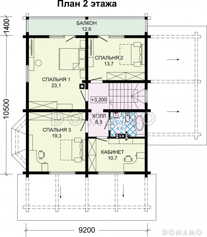
Планы помещений
Фасады
Описание проекта
Компания Domamo предлагает проект двухэтажного деревянного дома с двумя террасами и гаражом на 1 автомобиль D3136. Общая площадь - 216 м2, размер - 16.3х13.8 м. Фундамент - ленточный монолитный, кровля - гибкая черепица, внешняя отделка - без облицовки. Для заказа проекта или внесения изменений свяжитесь с нами с помощью форм обратной связи на сайте или по телефону +7 (831) 231-05-01.
Категории проекта: двухэтажные дома из бруса двухэтажные дома из бруса с гаражом двухэтажные двухэтажные с гаражом двухэтажные деревянные Проекты двухэтажных домов с террасой Проекты двухэтажных домов с верандой двухэтажные с террасой и гаражом двухэтажные с камином двухэтажные с двускатной крышей двухэтажные с 4 спальнями двухэтажные с балконом двухэтажные с балконом и террасой из клееного бруса без гаража из бруса готовые из бруса с камином из бруса сложной формы из бруса с балконом из бруса с двухскатной крышей из бруса с крышей сложной формы из бруса с ленточным заглубленным монолитным фундаментом с каркасными стенами из бруса с перекрытиями по деревянным балкам из бруса без облицовки из бруса с кровлей из гибкой черепицы из бруса с кабинетом из бруса с котельной из бруса без сауны из бруса с выходом на террасу из гостиной из бруса с крытой террасой из бруса без подвала из бруса с большой террасой из бруса от 200 до 300 м2 из бруса с большой кухней Показать все категории Скрыть категории

Похожие проекты
Состав проекта
Входит в стоимость
Цена, руб. Сроки, дней
Комплект архитектурно-строительных чертежей (АС) Входит в стоимость 3 рабочих дня
Готово к продаже
Цена, руб. Сроки, дней
Зеркальная версия проекта Входит в стоимость 3 рабочих дня
Паспорт рабочего проекта 5 000 ₽ 3 рабочих дня в корзину
Инженерные разделы: ВК + ОВ + ЭО 23 000 ₽ 10 рабочих дней в корзину
Дополнительная копия проекта формата А3 3 000 ₽ 3 рабочих дня в корзину
Две дополнительные копии проекта формата А3 + 1 паспорт рабочего проекта 10 100 ₽ 3 рабочих дня в корзину
Электронная копия проекта (скан распечатанной версии) 4 000 ₽ 3 рабочих дня в корзину
Разрабатывается отдельно
Цена, руб. Сроки, дней
Адаптация фундамента (изменение типа фундамента) по запросу 14 рабочих дней
Дизайн интерьера (стоимость от 2200руб. за квад.метр площади) по запросу 30 рабочих дней
Внесение изменений в проект по запросу 20 рабочих дней
Фэншуй дома 20 000 ₽ 14 рабочих дней в корзину
Фэншуй участка 15 000 ₽ 14 рабочих дней в корзину
Фэншуй полная консультация дом+участок с выездом на объект 100 000 ₽ 30 рабочих дней в корзину
Опции проекта вы можете заказать в корзине при оформлении заказа
Варианты проекта Сравнить все варианты
Отзывы покупателей
Рейтинг покупателей
0 / 5 5 5 1
На основе 1 оценок покупателей
0%
0%
0%
0%
0%
Отзывы о проекте D3136
Отзыв о проекте D3136
Чтобы оставить отзыв, пожалуйста авторизуйтесь.
Подбор строительной компании
Не знаете кому доверить строительство дома? Мы можем помочь! Подберем для вас из сотен наших партнеров несколько компаний с лучшем соотношением цена/качество под конкретно ваш запрос.
Подобрать