Главная Проекты домов Проект компактного одноэтажного мансардного дома из кирпича с двумя балконами и тремя спальнями

D2997 Проект компактного одноэтажного мансардного дома из кирпича с двумя балконами и тремя спальнями

Сравнить проект В избранное
Проект компактного одноэтажного мансардного дома из кирпича с двумя балконами и тремя спальнями / 1
Проект компактного одноэтажного мансардного дома из кирпича с двумя балконами и тремя спальнями / 2
Проект компактного одноэтажного мансардного дома из кирпича с двумя балконами и тремя спальнями / 3
Проект компактного одноэтажного мансардного дома из кирпича с двумя балконами и тремя спальнями / 1
Проект компактного одноэтажного мансардного дома из кирпича с двумя балконами и тремя спальнями / 2
Проект компактного одноэтажного мансардного дома из кирпича с двумя балконами и тремя спальнями / 3
D2997
105 м²
Подготовка проекта:
33 рабочих дня
Стоимость проекта
Купить проект
Задайте вопросы по проекту нашему архитектору
8 (800) 200-28-83
Время работы: пн-вс: с 9:00 до 20:00
Задать вопрос по проекту

Технические характеристики
Общие
Материал стен
Кирпич
Общая площадь
105 м²
Площадь застройки
71.6 м²
Приведенная площадь
102.7 м²
Количество жилых комнат/спален
4
Этажи
1 этаж + мансарда
Гараж
Нет гаража
Подвал / цокольный этаж
Без подвала
Длина дома
9.84 м
Ширина дома
7.44 м
Высота в коньке
7.7 м
Кровля
Металлочерепица
Облицовка внешних стен
Деревянная вагонка
,
Мокрая штукатурка
Толщина несущих наружных стен
380 мм
Межэтажные перекрытия
Монолитные
Внутренние не несущие перегородки
Кирпичные
Фундамент
Ленточный заглубленный из ФБС
Терраса
Терраса открытая
Дополнительные
Окна
Окна до пола
Мансардные окна
Есть
Камин
Есть
Сауна/баня внутри
Нет
Площадь гостиной
16.5 м²
Площадь кухни
10.3 м²
Количество санузлов
2
Окно в ванной комнате
Есть
Котельная
Есть
Кабинет
Есть
Кладовая
1
Дом для узких участков
Есть
Балкон / лоджия
Балкон
Длина участка
17.84 м
Ширина участка
13.44 м
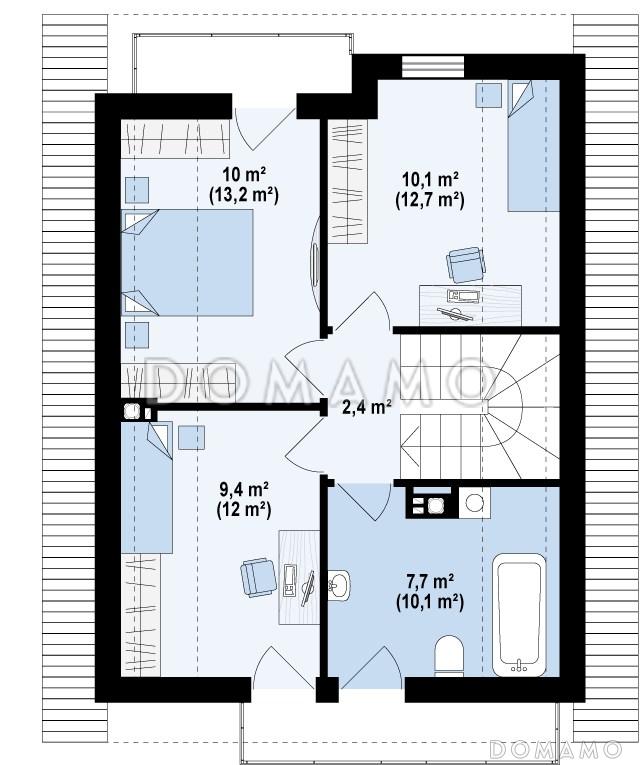
Планы помещений
Описание проекта
Компания Domamo предлагает проект компактного одноэтажного мансардного дома из кирпича с двумя балконами и тремя спальнями D2997. Общая площадь - 105 м2, размер - 9.84х7.44 м. Фундамент - ленточный заглубленный из фбс, кровля - металлочерепица, внешняя отделка - деревянная вагонка мокрая штукатурка. Для заказа проекта или внесения изменений свяжитесь с нами с помощью форм обратной связи на сайте или по телефону +7 (831) 231-05-01.
Категории проекта: с мансардой для постоянного проживания кирпич современные для узких участков от 100 до 200 кв.м кирпичные дома с мансардой в европейском стиле с террасой из кирпича с террасой готовые кирпичные для узких участков загородные из кирпича одноэтажные из кирпича одноэтажные из кирпича с мансардой одноэтажные кирпичные с котельной одноэтажные с мансардой кирпичные площадью до 150 кв. м. кирпичные с котельной одноэтажные до 150 кв. м. одноэтажные с котельной с котельной кирпичные до 200 кв.м для узкого участка с мансардой до 120 кв.м до 150 кв.м до 200 кв.м с двухскатной крышей 6х10 загородные с камином узкие прямоугольные с балконом современные кирпичные до 100 кв.м с мансардой Проекты одноэтажных домов с террасой Типовые проекты загородных одноэтажных домов без гаража одноэтажные без гаража с террасой и камином с кабинетом одноэтажные с 4 спальнями с мансардой до 150 кв м с мансардой и террасой полутораэтажные с мансардой до 120 кв.м одноэтажные до 120 кв.м одноэтажные для узких участков с 4 спальнями одноэтажные до 200 кв м до 140 кв м полутораэтажные из кирпича до 130 кв м с балконом и террасой одноэтажные с мансардными окнами с мансардой с котельной с мансардой с камином с мансардой с двухскатной крышей с мансардой современные с мансардой с окнами до пола с мансардой с мансардными окнами с мансардой с балконом с мансардой прямоугольные с мансардой готовые с мансардой для постоянного проживания с мансардой узкие с мансардой до 200 кв.м с мансардой от 100 до 150 кв.м одноэтажные из кирпича с 4 спальнями готовые для узких участков для постоянного проживания с камином без гаража без подвала современные прямоугольные одноэтажные с мансардой для постоянного проживания одноэтажные с мансардой современные одноэтажные с мансардой с балконом современные без гаража современные с двухскатной крышей современные с окнами в пол современные с террасой современные небольшие современные узкие современные до 120 кв. м современные до 150 кв. м современные от 100 до 200 кв. м до 120 кв.м кирпичные до 120 кв.м готовые до 120 кв.м для постоянного проживания до 120 кв.м без гаража до 120 кв.м с двухскатной крышей до 120 кв.м с окнами в пол до 120 кв.м с террасой до 120 кв.м с котельной до 120 кв.м с кабинетом до 120 кв.м с 4 спальнями до 120 кв.м прямоугольные до 120 кв.м с балконом до 150 кв.м для постоянного проживания до 150 кв.м без гаража до 150 кв.м с двухскатной крышей до 150 кв.м с окнами до пола до 150 кв.м для узких участков до 150 кв.м готовые до 150 кв.м с мансардными окнами до 150 кв.м с балконом до 150 кв.м прямоугольные до 150 кв.м с котельной до 150 кв.м с кабинетом до 150 кв.м без бани до 150 кв.м с террасой до 150 кв.м без подвала до 150 кв.м с 4 спальнями до 150 кв.м с камином из клееного бруса без гаража Показать все категории Скрыть категории

Похожие проекты
Состав проекта
Входит в стоимость
Цена, руб. Сроки, дней
Комплект архитектурно-строительных чертежей (АС) Входит в стоимость 33 рабочих дня
Готово к продаже
Цена, руб. Сроки, дней
Паспорт рабочего проекта 8 000 ₽ 5 рабочих дней в корзину
Дополнительная копия проекта формата А3 6 500 ₽ 5 рабочих дней в корзину
Электронная копия проекта (скан распечатанной версии) 4 000 ₽ 3 рабочих дня в корзину
Разрабатывается отдельно
Цена, руб. Сроки, дней
Адаптация фундамента (изменение типа фундамента) по запросу 14 рабочих дней
Дизайн интерьера (стоимость от 2200руб. за квад.метр площади) по запросу 30 рабочих дней
Внесение изменений в проект по запросу 20 рабочих дней
Инженерные разделы: ВК + ОВ + ЭО 21 690 ₽ 33 рабочих дня в корзину
Разработка Генплана участка, в масштабе 1:250 7 500 ₽ 15 рабочих дней в корзину
Фэншуй дома 20 000 ₽ 14 рабочих дней в корзину
Фэншуй участка 15 000 ₽ 14 рабочих дней в корзину
Фэншуй полная консультация дом+участок с выездом на объект 100 000 ₽ 30 рабочих дней в корзину
Опции проекта вы можете заказать в корзине при оформлении заказа
Отзывы покупателей
Рейтинг покупателей
0 / 5 5 5 1
На основе 1 оценок покупателей
0%
0%
0%
0%
0%
Отзывы о проекте D2997
Отзыв о проекте D2997
Чтобы оставить отзыв, пожалуйста авторизуйтесь.
Подбор строительной компании
Не знаете кому доверить строительство дома? Мы можем помочь! Подберем для вас из сотен наших партнеров несколько компаний с лучшем соотношением цена/качество под конкретно ваш запрос.
Подобрать