Главная Проекты домов Проект двухэтажного дома из кирпича с гаражом и террасой на втором уровне по периметру дома

D2835 Проект двухэтажного дома из кирпича с гаражом и террасой на втором уровне по периметру дома

Сравнить проект В избранное
Проект двухэтажного дома из кирпича с гаражом и террасой на втором уровне по периметру дома / 1
Проект двухэтажного дома из кирпича с гаражом и террасой на втором уровне по периметру дома / 2
Проект двухэтажного дома из кирпича с гаражом и террасой на втором уровне по периметру дома / 3
Проект двухэтажного дома из кирпича с гаражом и террасой на втором уровне по периметру дома / 4
Проект двухэтажного дома из кирпича с гаражом и террасой на втором уровне по периметру дома / 5
Проект двухэтажного дома из кирпича с гаражом и террасой на втором уровне по периметру дома / 6
Проект двухэтажного дома из кирпича с гаражом и террасой на втором уровне по периметру дома / 1
Проект двухэтажного дома из кирпича с гаражом и террасой на втором уровне по периметру дома / 2
Проект двухэтажного дома из кирпича с гаражом и террасой на втором уровне по периметру дома / 3
Проект двухэтажного дома из кирпича с гаражом и террасой на втором уровне по периметру дома / 4
Проект двухэтажного дома из кирпича с гаражом и террасой на втором уровне по периметру дома / 5
Проект двухэтажного дома из кирпича с гаражом и террасой на втором уровне по периметру дома / 6
D2835
297 м²
Подготовка проекта:
33 рабочих дня
Стоимость проекта
Купить проект
Задайте вопросы по проекту нашему архитектору
8 (800) 200-28-83
Время работы: пн-вс: с 9:00 до 20:00
Задать вопрос по проекту

Технические характеристики
Общие
Материал стен
Кирпич
Общая площадь
297 м²
Площадь застройки
305.7 м²
Приведенная площадь
298.61 м²
Количество жилых комнат/спален
5
Этажи
2 этажа
Гараж
Пристроенный гараж
Количество машин
2
Подвал / цокольный этаж
Без подвала
Длина дома
12.41 м
Ширина дома
18.41 м
Высота в коньке
9.44 м
Кровля
Металлочерепица
Облицовка внешних стен
Мокрая штукатурка
,
Облицовочный кирпич
Толщина несущих наружных стен
380 мм
Межэтажные перекрытия
Монолитные
Внутренние не несущие перегородки
Кирпичные
Фундамент
Ленточный заглубленный из ФБС
Терраса
Терраса открытая
,
Терраса крытая
Дополнительные
Окна
Окна до пола
,
Панорамные окна
Камин
Есть
Сауна/баня внутри
Нет
Площадь гостиной
24.7 м²
Площадь кухни
13 м²
Количество санузлов
4
Окно в ванной комнате
Есть
Котельная
Есть
Кабинет
Есть
Хозяйский санузел
Есть
Хозяйская гардеробная
Есть
Кладовая
3
Длина участка
20.41 м
Ширина участка
26.41 м
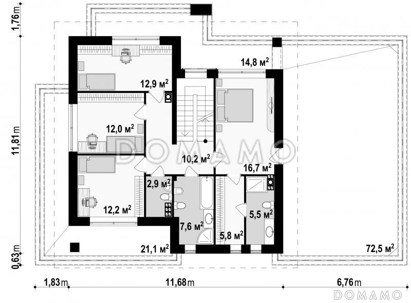
Планы помещений
Описание проекта
Компания Domamo предлагает проект двухэтажного дома из кирпича с гаражом и террасой на втором уровне по периметру дома D2835. Общая площадь - 297 м2, размер - 12.41х18.41 м. Фундамент - ленточный заглубленный из фбс, кровля - металлочерепица, внешняя отделка - облицовочный кирпич мокрая штукатурка. Для заказа проекта или внесения изменений свяжитесь с нами с помощью форм обратной связи на сайте или по телефону +7 (831) 231-05-01.
Категории проекта: с гаражом для постоянного проживания кирпич современные от 200 до 300 кв.м дома из кирпича с гаражом в европейском стиле с террасой из кирпича с террасой готовые загородные из кирпича двухэтажные из кирпича двухэтажные кирпичные с гаражом двухэтажные двухэтажные с гаражом кирпичные с котельной с котельной загородные с четырехскатной крышей с камином с гардеробной прямоугольные с панорамным остеклением современные кирпичные Проекты двухэтажных домов с террасой Проекты двухэтажных домов с верандой с террасой и камином облицованные кирпичом с кабинетом с гаражом под одной крышей с гаражом на 2 машины с гаражом и террасой двухэтажные с террасой и гаражом с панорамными окнами и террасой с 5 спальнями двухэтажные с камином двухэтажные с панорамными окнами двухэтажные в современном стиле современные с гаражом современные с панорамными окнами современные с окнами в пол современные с террасой недорогие с панорамными окнами из клееного бруса без гаража Показать все категории Скрыть категории

Похожие проекты
Состав проекта
Входит в стоимость
Цена, руб. Сроки, дней
Комплект архитектурно-строительных чертежей (АС) Входит в стоимость 33 рабочих дня
Готово к продаже
Цена, руб. Сроки, дней
Паспорт рабочего проекта 8 000 ₽ 5 рабочих дней в корзину
Дополнительная копия проекта формата А3 6 500 ₽ 5 рабочих дней в корзину
Электронная копия проекта (скан распечатанной версии) 4 000 ₽ 3 рабочих дня в корзину
Разрабатывается отдельно
Цена, руб. Сроки, дней
Адаптация фундамента (изменение типа фундамента) по запросу 14 рабочих дней
Дизайн интерьера (стоимость от 2200руб. за квад.метр площади) по запросу 30 рабочих дней
Внесение изменений в проект по запросу 20 рабочих дней
Инженерные разделы: ВК + ОВ + ЭО 24 330 ₽ 33 рабочих дня в корзину
Разработка Генплана участка, в масштабе 1:250 7 500 ₽ 15 рабочих дней в корзину
Фэншуй дома 20 000 ₽ 14 рабочих дней в корзину
Фэншуй участка 15 000 ₽ 14 рабочих дней в корзину
Фэншуй полная консультация дом+участок с выездом на объект 100 000 ₽ 30 рабочих дней в корзину
Опции проекта вы можете заказать в корзине при оформлении заказа
Отзывы покупателей
Рейтинг покупателей
0 / 5 5 5 1
На основе 1 оценок покупателей
0%
0%
0%
0%
0%
Отзывы о проекте D2835
Отзыв о проекте D2835
Чтобы оставить отзыв, пожалуйста авторизуйтесь.
Подбор строительной компании
Не знаете кому доверить строительство дома? Мы можем помочь! Подберем для вас из сотен наших партнеров несколько компаний с лучшем соотношением цена/качество под конкретно ваш запрос.
Подобрать