Оригинальный особняк с круглой башней занимает 4 этажа и предназначен для большой семьи из нескольких поколений. Дом в замковом стиле украшает башня с конической крышей, колонны крыльца и пилястры на фасаде.
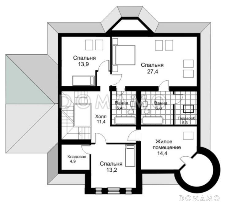
Планировка предполагает полноценное функциональное использование всех четырех уровней. В подвале располагается зона для релакса: бассейн, сауна, комната отдыха. Отдельный вход ведет в котельную. Просторный вестибюль первого этажа ведет в гостиную и в столовую с эркером. На втором этаже архитектор запланировал три спальни, кабинет и зимний сад. На втором этаже — еще 4 комнаты.
башня в этом проекте вписана в основной объем прилегающих к ней комнат на всех этажах, образуя в них уютные полукруглые пространства,
застекленный зимний сад дополнит стандартную комнату отдыха панорамным видом,
в спальне на мансардном этаже предусмотрены две ванные и гардеробная.