Главная Проекты домов Проект коттеджа в классическом стиле с подвалом

D262 Проект коттеджа в классическом стиле с подвалом

Сравнить проект В избранное
Проект коттеджа в классическом стиле с подвалом / 1
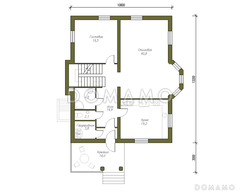
Проект коттеджа в классическом стиле с подвалом / 2
Проект коттеджа в классическом стиле с подвалом / 3
Проект коттеджа в классическом стиле с подвалом / 1
Проект коттеджа в классическом стиле с подвалом / 2
Проект коттеджа в классическом стиле с подвалом / 3
D262
361 м²
Подготовка проекта:
Готов к отправке
Стоимость проекта
Купить проект
Задайте вопросы по проекту нашему архитектору
8 (800) 200-28-83
Время работы: пн-вс: с 9:00 до 20:00
Задать вопрос по проекту

Технические характеристики
Общие
Материал стен
Газобетон
Общая площадь
361 м²
Жилая площадь
131.5 м²
Площадь застройки
161.5 м²
Приведенная площадь
361.9 м²
Количество жилых комнат/спален
5
Этажи
2 этажа + мансарда
Гараж
Нет гаража
Подвал / цокольный этаж
С окнами
Длина дома
13.2 м
Ширина дома
10.6 м
Высота в коньке
11.72 м
Кровля
Натуральная черепица
Облицовка внешних стен
Облицовочный кирпич
Толщина несущих наружных стен
400 мм
Межэтажные перекрытия
Сборные
Внутренние не несущие перегородки
Газобетонные
Фундамент
Ленточный монолитный
Терраса
Терраса крытая
Дополнительные
Мансардные окна
Есть
Камин
Есть
Сауна/баня внутри
Есть
Купель
Есть
Площадь гостиной
40.8 м²
Площадь кухни
19.2 м²
Количество санузлов
6
Окно в ванной комнате
Есть
Котельная
Есть
Спортзал / детский / игровой зал
Есть
Бильярдная
Есть
Хозяйский санузел
Есть
Хозяйская гардеробная
Есть
Кладовая
2
Планы помещений
Фасады
Описание проекта

Большой коттедж с полноценными двумя этажами, мансардным этажом и подвалом общей площадью 361,7 кв. м. Помещения первого этажа можно объединить в единое жилое пространство или отделить гостиную от столовой. Второй этаж вмещает 4 спальни и кладовую. На каждом этаже есть свой санузел, на втором он расположен в хозяйской спальне. Мансарда может быть использована как биллиардная или любое другое полезное помещение. При входе в дом предусмотрена большая гардеробная. В подвале имеется большое техническое помещение, которое может быть спортивным залом, мастерской или бильярдной. Проект предусматривает и размещение в подвале полноценного банного комплекса, состоящего из парной, душевой и раздевалки. Возможности проекта также позволяют разместить здесь разборный или стационарный бассейн.

Категории проекта: с мансардой для постоянного проживания пенобетон в классическом стиле от 300 до 400 кв.м с эркером с террасой из пеноблоков с мансардой из газобетона с мансардой и эркером из газобетона с цокольным этажом из газобетона с эркером и цоколем из газобетона с эркером из газобетона готовые из газобетона с мансардой с цокольным этажом двухэтажные двухэтажные с мансардой с котельной двухэтажные из газобетона из газосиликатных блоков двухэтажные из пеноблоков с баней с цокольным этажом и мансардой загородные с четырехскатной крышей с мансардной крышей из керамзитобетонных блоков с бильярдной с камином с сауной с гардеробной прямоугольные из газобетона с баней из газобетона с террасой двухэтажные с цокольным этажом с эркером и мансардой двухэтажные с эркером из блоков двухэтажные из блоков из блоков с мансардой из блоков с эркером из пеноблоков с баней Проекты домов из пеноблоков с эркером из пеноблоков с цокольным этажом из пеноблоков с террасой загородные из газобетона Проекты двухэтажных домов с террасой Проекты двухэтажных домов с верандой без гаража с террасой и камином облицованные кирпичом с мансардой и террасой двухэтажные с сауной недорогие из пеноблоков загородные с 5 спальнями двухэтажные с камином двухэтажные в классическом стиле двухэтажные без гаража с мансардой с баней с мансардой с котельной с мансардой с камином с мансардой с четырехскатной крышей с мансардой в классическом стиле с мансардой с мансардными окнами с мансардой прямоугольные с мансардой готовые с мансардой для постоянного проживания с мансардой элитные из газобетона от 300 до 400 кв.м из газобетона с четырехскатной крышей из газобетона в классическом стиле из газобетона с котельной из газобетона прямоугольные из газобетона готовые из газобетона с камином из газобетона с большой кухней из газобетона с изолированной кухней из газобетона большие из газобетона для постоянного проживания двухэтажные из газобетона с четырехскатной крышей двухэтажные из газобетона большие из газобетона с мансардой в классическом стиле из газобетона с мансардой с террасой из газобетона с мансардой с камином из газобетона с мансардой для постоянного проживания из газобетона с мансардой готовые из газобетона с мансардой с четырехскатной крышей из газобетона с мансардой большие из газобетона с мансардой с большой кухней из газобетона с мансардой с большой гостиной из газобетона с мансардой с баней из газобетона с мансардой с изолированной кухней из газобетона с мансардой с гардеробной из газобетона с мансардой прямоугольные классические для постоянного проживания классические без гаража классические с террасой классические готовые классические элитные классические с котельной классические с большой гостиной классические с большой кухней классические с изолированной кухней классические с подвалом классические с сауной классические прямоугольные классические с камином классические с четырехскатной крышей классические с мансардной крышей из пеноблоков в классическом стиле из пеноблоков с четырехскатной крышей из пеноблоков с мансардной крышей из пеноблоков прямоугольные из пеноблоков для постоянного проживания из пеноблоков недорогие из пеноблоков готовые из пеноблоков с камином из пеноблоков от 300 до 400 м2 из пеноблоков большие из пеноблоков с большой гостиной из пеноблоков с большой кухней из пеноблоков с изолированной кухней недорогие с мансардой недорогие без гаража недорогие с террасой недорогие для постоянного проживания недорогие с четырехскатной крышей недорогие с мансардной крышей недорогие с большой гостиной недорогие с изолированной кухней недорогие с баней недорогие с котельной недорогие с мансардными окнами недорогие с камином недорогие прямоугольные недорогие от 300 до 400 м2 из клееного бруса без гаража Показать все категории Скрыть категории

Похожие проекты
Состав проекта
Входит в стоимость
Цена, руб. Сроки, дней
Комплект архитектурно-строительных чертежей (АС) Входит в стоимость Готов к отправке
Готово к продаже
Цена, руб. Сроки, дней
Паспорт рабочего проекта 5 000 ₽ 3 рабочих дня в корзину
Дополнительная копия проекта формата А3 4 000 ₽ Готов к отправке в корзину
Электронная копия проекта (скан распечатанной версии) 4 000 ₽ 3 рабочих дня в корзину
Разрабатывается отдельно
Цена, руб. Сроки, дней
Адаптация фундамента (изменение типа фундамента) по запросу 14 рабочих дней
Дизайн интерьера (стоимость от 2200руб. за квад.метр площади) по запросу 30 рабочих дней
Внесение изменений в проект по запросу 20 рабочих дней
Инженерные разделы: ВК + ОВ + ЭО 40 000 ₽ 20 рабочих дней в корзину
Зеркалирование проекта (для которого нет зеркальной версии) 8 000 ₽ 5 рабочих дней в корзину
Разработка Генплана участка, в масштабе 1:250 7 500 ₽ 5 рабочих дней в корзину
Фэншуй дома 20 000 ₽ 14 рабочих дней в корзину
Фэншуй участка 15 000 ₽ 14 рабочих дней в корзину
Фэншуй полная консультация дом+участок с выездом на объект 100 000 ₽ 30 рабочих дней в корзину
Опции проекта вы можете заказать в корзине при оформлении заказа
Варианты проекта Сравнить все варианты
Избранные проекты
Избранные строители
Отзывы покупателей
Рейтинг покупателей
0 / 5 5 5 1
На основе 1 оценок покупателей
0%
0%
0%
0%
0%
Отзывы о проекте D262
Отзыв о проекте D262
Чтобы оставить отзыв, пожалуйста авторизуйтесь.
Подбор строительной компании
Не знаете кому доверить строительство дома? Мы можем помочь! Подберем для вас из сотен наших партнеров несколько компаний с лучшем соотношением цена/качество под конкретно ваш запрос.
Подобрать