Главная Проекты домов Проект деревянного дома стандартной планировки

D2567 Проект деревянного дома стандартной планировки

Сравнить проект В избранное
Проект деревянного дома стандартной планировки / 1
Проект деревянного дома стандартной планировки / 1
D2567
160 м²
Домокомплект
Артикул проекта: ПД-8
Компания: Element-House
Стоимость домокомплекта
773 000 ₽
Заказать подробную смету
+7 (909) XXX-XX-XX Показать телефон
Задать вопрос по проекту
Технические характеристики
Общие
Материал стен
Бревно
Общая площадь
160 м²
Приведенная площадь
137.11 м²
Количество жилых комнат/спален
5
Этажи
1 этаж + мансарда
Гараж
Нет гаража
Подвал / цокольный этаж
Без подвала
Длина дома
9.0 м
Ширина дома
9.0 м
Облицовка внешних стен
Без облицовки
Межэтажные перекрытия
По деревянным балкам
Внутренние не несущие перегородки
Каркасно-обшивные
Терраса
Без террасы
Дополнительные
Сауна/баня внутри
Нет
Площадь гостиной
16.7 м²
Площадь кухни
10 м²
Количество санузлов
2
Окно в ванной комнате
Есть
Котельная
Есть
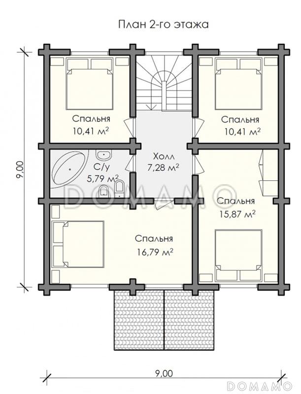
Планы помещений
Описание проекта
Компания Domamo предлагает проект деревянного дома стандартной планировки D2567. Общая площадь - 160 м2, размер - 9.0х9.0 м. Фундамент - , кровля - , внешняя отделка - без облицовки. Для заказа проекта или внесения изменений свяжитесь с нами с помощью форм обратной связи на сайте или по телефону +7 (831) 231-05-01.
Категории проекта: с мансардой деревянные для постоянного проживания из бревна от 100 до 200 кв.м одноэтажные с мансардой одноэтажные с котельной с котельной одноэтажные деревянные оцилиндрованное бревно 9 на 9 с мансардой 9х9 до 200 кв.м с двухскатной крышей 6х10 8х9 9х10 9х12 загородные квадратные в русском стиле одноэтажные из бревна из бревна с мансардой Проекты деревянных домов с мансардой Типовые проекты загородных одноэтажных домов без гаража одноэтажные без гаража одноэтажные 9 на 9 полутораэтажные деревянные для круглогодичного проживания из бревна для постоянного проживания рубленные 9 на 12 с мансардой одноэтажные до 200 кв м с 5 спальнями с мансардой с котельной с мансардой с двухскатной крышей с мансардой квадратные с мансардой для постоянного проживания с мансардой до 200 кв.м с котельной без гаража одноэтажные с мансардой из бревна одноэтажные с мансардой для постоянного проживания одноэтажные с мансардой в русском стиле деревянные в русском стиле деревянные квадратные деревянные без гаража деревянные домокомплекты деревянные без подвала деревянные от 100 до 200 м2 в русском стиле без гаража в русском стиле без террасы в русском стиле для постоянного проживания в русском стиле без бани в русском стиле с котельной в русском стиле с двускатной крышей в русском стиле от 100 до 200 кв м из клееного бруса без гаража Показать все категории Скрыть категории

Похожие проекты
Состав проекта
Входит в стоимость
Цена, руб. Сроки, дней
Комплект архитектурно-строительных чертежей (АС) Входит в стоимость Готов к отправке
Разрабатывается отдельно
Цена, руб. Сроки, дней
Адаптация фундамента (изменение типа фундамента) по запросу 14 рабочих дней
Дизайн интерьера (стоимость от 2200руб. за квад.метр площади) по запросу 30 рабочих дней
Внесение изменений в проект по запросу 20 рабочих дней
Фэншуй дома 20 000 ₽ 14 рабочих дней в корзину
Фэншуй участка 15 000 ₽ 14 рабочих дней в корзину
Фэншуй полная консультация дом+участок с выездом на объект 100 000 ₽ 30 рабочих дней в корзину
Опции проекта вы можете заказать в корзине при оформлении заказа
Отзывы покупателей
Рейтинг покупателей
0 / 5 5 5 1
На основе 1 оценок покупателей
0%
0%
0%
0%
0%
Отзывы о проекте D2567
Отзыв о проекте D2567
Чтобы оставить отзыв, пожалуйста авторизуйтесь.
Подбор строительной компании
Не знаете кому доверить строительство дома? Мы можем помочь! Подберем для вас из сотен наших партнеров несколько компаний с лучшем соотношением цена/качество под конкретно ваш запрос.
Подобрать