Главная Проекты домов Проект одноэтажного дома из бруса с мансардным этажом и верандой

D2454 Проект одноэтажного дома из бруса с мансардным этажом и верандой

Сравнить проект В избранное
Проект одноэтажного дома из бруса с мансардным этажом и верандой / 1
Проект одноэтажного дома из бруса с мансардным этажом и верандой / 1
D2454
147 м²
Подготовка проекта:
Готов к отправке
Стоимость проекта
Купить проект
Задайте вопросы по проекту нашему архитектору
8 (800) 200-28-83
Время работы: пн-вс: с 9:00 до 20:00
Задать вопрос по проекту

Технические характеристики
Общие
Материал стен
Клееный брус
Общая площадь
147 м²
Приведенная площадь
147.6 м²
Количество жилых комнат/спален
3
Этажи
1 этаж + мансарда
Гараж
Нет гаража
Подвал / цокольный этаж
Без подвала
Длина дома
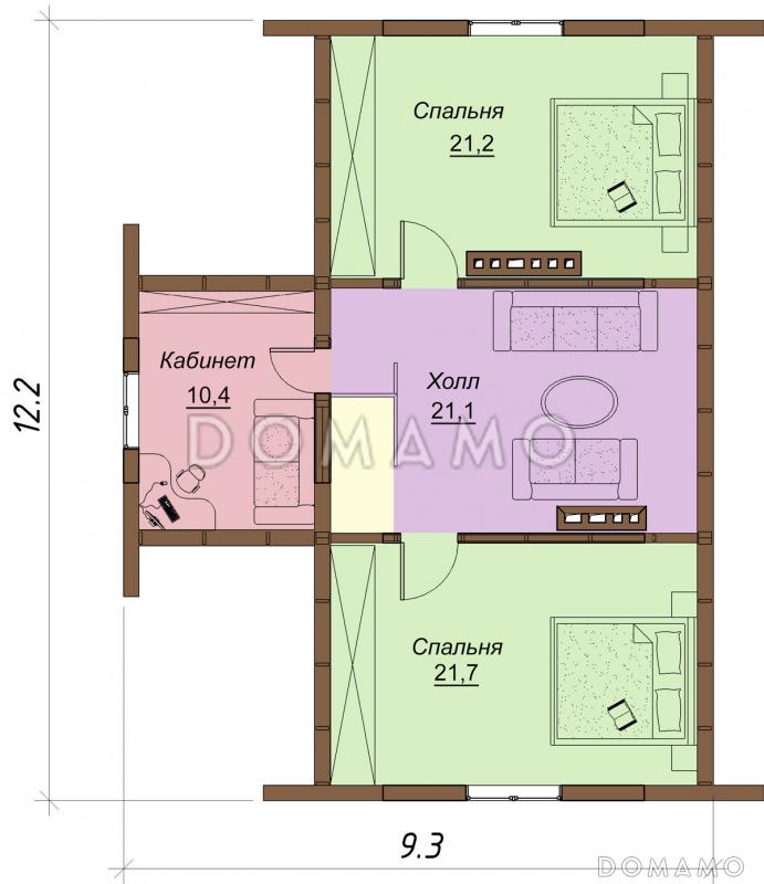
12.2 м
Ширина дома
9.2 м
Кровля
Металлочерепица
Облицовка внешних стен
Без облицовки
Межэтажные перекрытия
По деревянным балкам
Внутренние не несущие перегородки
Каркасно-обшивные
Фундамент
Ленточный монолитный
Терраса
Терраса застекленная (веранда)
Дополнительные
Сауна/баня внутри
Нет
Площадь гостиной
21.7 м²
Площадь кухни
13.4 м²
Количество санузлов
2
Кабинет
Есть
Кладовая
1
Планы помещений
Фасады
Описание проекта
Компания Domamo предлагает проект одноэтажного дома из бруса с мансардным этажом и верандой D2454. Общая площадь - 147 м2, размер - 12.2х9.2 м. Фундамент - ленточный монолитный, кровля - металлочерепица, внешняя отделка - без облицовки. Для заказа проекта или внесения изменений свяжитесь с нами с помощью форм обратной связи на сайте или по телефону +7 (831) 231-05-01.
Категории проекта: с мансардой деревянные для постоянного проживания из клееного бруса в классическом стиле от 100 до 200 кв.м с террасой готовые одноэтажные с мансардой одноэтажные до 150 кв. м. одноэтажные деревянные до 150 кв.м до 200 кв.м с двухскатной крышей 9х12 загородные с мансардной крышей прямоугольные с верандой Проекты деревянных домов с мансардой Проекты деревянных домов с террасой Проекты домов из клееного бруса с мансардой Проекты одноэтажных домов из клееного бруса Проекты одноэтажных домов с террасой Проекты одноэтажных домов с верандой Типовые проекты загородных одноэтажных домов без гаража одноэтажные без гаража с кабинетом одноэтажные с тремя спальнями Проекты домов с тремя спальнями с мансардой до 150 кв м с мансардой и террасой полутораэтажные деревянные для круглогодичного проживания 9 на 12 с мансардой одноэтажные до 200 кв м недорогие с мансардой с двухскатной крышей с мансардой в классическом стиле с мансардой прямоугольные с мансардой готовые с мансардой для постоянного проживания с мансардой до 200 кв.м с мансардой от 100 до 150 кв.м одноэтажные с мансардой из клееного бруса одноэтажные с мансардой для постоянного проживания одноэтажные с мансардой с изолированной кухней одноэтажные с мансардой классические классические для постоянного проживания классические без гаража классические с 3 спальнями классические с террасой классические готовые классические недорогие классические с изолированной кухней классические без подвала классические с 2 санузлами классические прямоугольные классические с двухскатной крышей классические с мансардной крышей классические с кабинетом до 150 кв.м из клееного бруса до 150 кв.м для постоянного проживания до 150 кв.м без гаража до 150 кв.м с двухскатной крышей до 150 кв.м классические до 150 кв.м готовые до 150 кв.м прямоугольные до 150 кв.м с кабинетом до 150 кв.м с изолированной кухней до 150 кв.м без бани до 150 кв.м с террасой до 150 кв.м без подвала до 150 кв.м с 3 спальнями деревянные недорогие деревянные прямоугольные деревянные без гаража деревянные готовые деревянные без подвала деревянные с 3 спальнями деревянные с изолированной кухней деревянные 9х12 деревянные до 150 кв.м деревянные от 100 до 200 м2 деревянные в классическом стиле недорогие с мансардой недорогие без гаража недорогие с террасой недорогие для постоянного проживания недорогие с двухскатной крышей недорогие с мансардной крышей недорогие с изолированной кухней недорогие без бани недорогие с кабинетом недорогие прямоугольные недорогие 9х12 недорогие до 150 м2 недорогие от 100 до 200 м2 из клееного бруса готовый проект из клееного бруса для постоянного проживания из клееного бруса прямоугольный из клееного бруса в скандинавском стиле из клееного бруса с двухскатной крышей из клееного бруса с ленточным заглубленным монолитным фундаментом из клееного бруса с каркасно-обшивными перегородками из клееного бруса без облицовки из клееного бруса с перекрытиями по деревянным балкам из клееного бруса с кровлей из металлочерепицы из клееного бруса с кабинетом из клееного бруса с изолированной кухней из клееного бруса без подвала из клееного бруса без гаража одноэтажные из клееного бруса с мансардой из клееного бруса от 100 до 200 м2 Показать все категории Скрыть категории

Похожие проекты
Состав проекта
Входит в стоимость
Цена, руб. Сроки, дней
Комплект архитектурно-строительных чертежей (АС) Входит в стоимость Готов к отправке
Готово к продаже
Цена, руб. Сроки, дней
Паспорт рабочего проекта 5 000 ₽ Готов к отправке в корзину
Разрабатывается отдельно
Цена, руб. Сроки, дней
Адаптация фундамента (изменение типа фундамента) по запросу 14 рабочих дней
Дизайн интерьера (стоимость от 2200руб. за квад.метр площади) по запросу 30 рабочих дней
Внесение изменений в проект по запросу 20 рабочих дней
Фэншуй дома 20 000 ₽ 14 рабочих дней в корзину
Фэншуй участка 15 000 ₽ 14 рабочих дней в корзину
Фэншуй полная консультация дом+участок с выездом на объект 100 000 ₽ 30 рабочих дней в корзину
Опции проекта вы можете заказать в корзине при оформлении заказа
Отзывы покупателей
Рейтинг покупателей
0 / 5 5 5 1
На основе 1 оценок покупателей
0%
0%
0%
0%
0%
Отзывы о проекте D2454
Отзыв о проекте D2454
Чтобы оставить отзыв, пожалуйста авторизуйтесь.
Подбор строительной компании
Не знаете кому доверить строительство дома? Мы можем помочь! Подберем для вас из сотен наших партнеров несколько компаний с лучшем соотношением цена/качество под конкретно ваш запрос.
Подобрать