Главная Проекты домов Проект дома с закрытым парковочным местом на две машины, огромной террасой и специально отведенным местом под барбекю

D2268 Проект дома с закрытым парковочным местом на две машины, огромной террасой и специально отведенным местом под барбекю

Сравнить проект В избранное
Проект дома с закрытым парковочным местом на две машины, огромной террасой и специально отведенным местом под барбекю / 1
Проект дома с закрытым парковочным местом на две машины, огромной террасой и специально отведенным местом под барбекю / 1
D2268
242 м²
Домокомплект
Артикул проекта: ПДБ-11
Компания: Element-House
Стоимость домокомплекта
1 757 000 ₽
Заказать подробную смету
+7 (909) XXX-XX-XX Показать телефон
Задать вопрос по проекту
Технические характеристики
Общие
Материал стен
Клееный брус
Общая площадь
242 м²
Приведенная площадь
154.51 м²
Количество жилых комнат/спален
2
Этажи
1 этаж + мансарда
Гараж
Пристроенный навес
Количество машин
2
Подвал / цокольный этаж
Без подвала
Длина дома
9.7 м
Ширина дома
8.7 м
Облицовка внешних стен
Без облицовки
Толщина несущих наружных стен
200 мм
Межэтажные перекрытия
По деревянным балкам
Внутренние не несущие перегородки
Каркасно-обшивные
Терраса
Терраса крытая
Дополнительные
Камин
Есть
Сауна/баня внутри
Есть
Площадь гостиной
20 м²
Площадь кухни
17.8 м²
Количество санузлов
1
Окно в ванной комнате
Есть
Котельная
Есть
Балкон / лоджия
Балкон
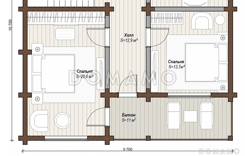
Планы помещений
Описание проекта
Компания Domamo предлагает проект дома с закрытым парковочным местом на две машины, огромной террасой и специально отведенным местом под барбекю D2268. Общая площадь - 242 м2, размер - 9.7х8.7 м. Фундамент - , кровля - , внешняя отделка - без облицовки. Для заказа проекта или внесения изменений свяжитесь с нами с помощью форм обратной связи на сайте или по телефону +7 (831) 231-05-01.
Категории проекта: с мансардой с гаражом с мансардой и гаражом деревянные для постоянного проживания из клееного бруса в английском стиле в скандинавском стиле от 200 до 300 кв.м в европейском стиле с террасой из бруса в стиле замка в финском стиле одноэтажные с гаражом одноэтажные с мансардой одноэтажные с котельной с котельной одноэтажные деревянные с баней одноэтажные с гаражом и мансардой с двухскатной крышей 6х10 9х10 9х12 загородные с баней и гаражом с камином с сауной прямоугольные с балконом с барбекю с навесом для машины Проекты деревянных домов с мансардой Проекты деревянных домов с террасой Проекты деревянных домов с баней Проекты деревянных домов с гаражом Проекты домов из клееного бруса с гаражом Проекты домов из клееного бруса с мансардой Проекты одноэтажных домов из клееного бруса Проекты одноэтажных домов с террасой Типовые проекты загородных одноэтажных домов Проекты одноэтажных домов с баней с террасой и камином с гаражом под одной крышей одноэтажные финские одноэтажные с гаражом и террасой с гаражом на 2 машины с мансардой и террасой полутораэтажные деревянные для круглогодичного проживания одноэтажные с 2 спальнями с гаражом и террасой 9 на 12 с мансардой с балконом и террасой от 200 до 250 м с мансардой с баней с мансардой с котельной с мансардой с камином с мансардой с двухскатной крышей с мансардой скандинавские с мансардой с балконом с мансардой прямоугольные с мансардой для постоянного проживания одноэтажные с мансардой из клееного бруса одноэтажные с мансардой для постоянного проживания одноэтажные с мансардой с большой кухней одноэтажные с мансардой скандинавские одноэтажные с мансардой с балконом скандинавские для постоянного проживания скандинавские с гаражом на 2 машины скандинавские с террасой скандинавские с большой кухней скандинавские с балконом скандинавские прямоугольные скандинавские 9х10 скандинавские с камином скандинавские от 200 до 300 м2 скандинавские с двухскатной крышей скандинавские с котельной деревянные в скандинавском стиле деревянные с балконом деревянные прямоугольные деревянные с камином деревянные домокомплекты деревянные без подвала деревянные с 2 спальнями деревянные с большой кухней деревянные с баней деревянные от 200 до 300 м2 из клееного бруса домокомплект из клееного бруса для постоянного проживания из клееного бруса с окном в ванной комнате из клееного бруса с камином из клееного бруса прямоугольный из клееного бруса с балконом из клееного бруса в скандинавском стиле из клееного бруса с двухскатной крышей из клееного бруса с каркасно-обшивными перегородками из клееного бруса без облицовки из клееного бруса с перекрытиями по деревянным балкам из клееного бруса с котельной из клееного бруса с сауной/баней внутри из клееного бруса с выходом на терассу из гостиной из клееного бруса с выходом на терассу из кухни из клееного бруса с крытой терассой из клееного бруса без подвала из клееного бруса без гаража одноэтажные из клееного бруса с мансардой из клееного бруса от 200 до 300 м2 Показать все категории Скрыть категории

Похожие проекты
Состав проекта
Входит в стоимость
Цена, руб. Сроки, дней
Комплект архитектурно-строительных чертежей (АС) Входит в стоимость Готов к отправке
Разрабатывается отдельно
Цена, руб. Сроки, дней
Адаптация фундамента (изменение типа фундамента) по запросу 14 рабочих дней
Дизайн интерьера (стоимость от 2200руб. за квад.метр площади) по запросу 30 рабочих дней
Внесение изменений в проект по запросу 20 рабочих дней
Фэншуй дома 20 000 ₽ 14 рабочих дней в корзину
Фэншуй участка 15 000 ₽ 14 рабочих дней в корзину
Фэншуй полная консультация дом+участок с выездом на объект 100 000 ₽ 30 рабочих дней в корзину
Опции проекта вы можете заказать в корзине при оформлении заказа
Отзывы покупателей
Рейтинг покупателей
0 / 5 5 5 1
На основе 1 оценок покупателей
0%
0%
0%
0%
0%
Отзывы о проекте D2268
Отзыв о проекте D2268
Чтобы оставить отзыв, пожалуйста авторизуйтесь.
Подбор строительной компании
Не знаете кому доверить строительство дома? Мы можем помочь! Подберем для вас из сотен наших партнеров несколько компаний с лучшем соотношением цена/качество под конкретно ваш запрос.
Подобрать