Главная Проекты домов Проект современного коттеджа с оригинальной планировкой

D211 Проект современного коттеджа с оригинальной планировкой

Сравнить проект В избранное
Проект современного коттеджа с оригинальной планировкой / 1
Проект современного коттеджа с оригинальной планировкой / 1
D211
397/448 м²
Подготовка проекта:
Готов к отправке
Стоимость проекта
Купить проект
Задайте вопросы по проекту нашему архитектору
8 (800) 200-28-83
Время работы: пн-вс: с 9:00 до 20:00
Задать вопрос по проекту

Технические характеристики
Общие
Материал стен
Кирпич
Общая площадь
397/448 м²
Жилая площадь
117 м²
Площадь застройки
398 м²
Приведенная площадь
658.65 м²
Количество жилых комнат/спален
4
Этажи
2 этажа + мансарда
Гараж
Встроенный гараж
Количество машин
2
Подвал / цокольный этаж
Без окон
Длина дома
20.1 м
Ширина дома
15.84 м
Высота в коньке
14 м
Кровля
Гибкая черепица
Облицовка внешних стен
Мокрая штукатурка
Толщина несущих наружных стен
640 мм
Межэтажные перекрытия
Сборно-монолитные
Внутренние не несущие перегородки
Кирпичные
Фундамент
Монолитная ж/бетонная плита
Терраса
Терраса крытая
Дополнительные
Окна
Панорамные окна
Второй свет
Есть
Камин
Есть
Сауна/баня внутри
Есть
Площадь гостиной
31.4 м²
Площадь кухни
12.2 м²
Количество санузлов
4
Окно в ванной комнате
Есть
Котельная
Есть
Кабинет
Есть
Хозяйский санузел
Есть
Хозяйская гардеробная
Есть
Кладовая
3
Балкон / лоджия
Балкон
Планы помещений
Фасады
Описание проекта

Оригинальный коттедж с гаражом для семьи из 3-4 человек. Фасады в современном стиле оформлены окнами неправильной формы, выступами и лаконичными колоннами.

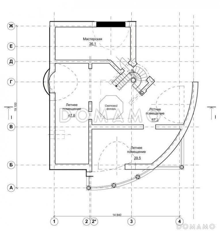
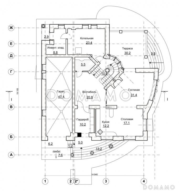
В доме предусмотрен цокольный этаж: здесь выделено три разногабаритных подсобки. Нежилые помещения также имеются и на мансарде: мастерская и летние комнаты отдыха. Этажи в доме разноуровневые. Основную площадь первого этажа занимают гостиная и столовая с кухней. Чуть ниже расположены котельная и кладовая. Над ними находится пространство с сауной и комнатой отдыха. На остальной части второго этажа размещены три спальни и кабинет.

Преимущества и особенности

  • гараж площадью 47 кв.м подойдет для двух автомобилей,

  • в холле второго этажа организовано дополнительное освещение за счет светового фонаря на крыше,

  • из гостиной предусмотрен выход на террасу, на втором этаже имеются балконы — всегда можно подышать свежим воздухом не выходя из дома.

Категории проекта: с мансардой с гаражом с мансардой и гаражом для постоянного проживания кирпич современные от 300 до 400 кв.м кирпичные дома с мансардой дома из кирпича с гаражом в европейском стиле с эркером кирпичные дома с эркером с террасой из кирпича с террасой готовые с цокольным этажом загородные из кирпича двухэтажные из кирпича двухэтажные кирпичные с гаражом двухэтажные из кирпича с мансардой двухэтажные двухэтажные с гаражом двухэтажные с мансардой кирпичные с подвалом кирпичные с котельной с подвалом с котельной со вторым светом с баней загородные с четырехскатной крышей с мансардной крышей с баней и гаражом с камином с сауной с гардеробной с балконом со встроенным гаражом с панорамным остеклением кирпичные с баней с эркером и мансардой двухэтажные с эркером современные кирпичные Проекты двухэтажных домов с террасой Проекты двухэтажных домов с верандой Проекты двухэтажных домов с подвалом с террасой и камином с кабинетом с гаражом под одной крышей с гаражом на 2 машины с мансардой и террасой с гаражом и террасой двухэтажные с террасой и гаражом с 4 спальнями с панорамными окнами и террасой двухэтажные с сауной с цокольным этажом и гаражом с балконом и террасой с эркером и гаражом сложной формы двухэтажные с камином двухэтажные со вторым светом двухэтажные с панорамными окнами двухэтажные с 4 спальнями двухэтажные с балконом двухэтажные с балконом и террасой двухэтажные в современном стиле с мансардой с баней с мансардой с котельной с мансардой с камином с мансардой с четырехскатной крышей с мансардой современные с мансардой с панорамными окнами с мансардой со вторым светом с мансардой с балконом с мансардой сложной формы с мансардой готовые с мансардой для постоянного проживания с мансардой элитные современные с гаражом современные с панорамными окнами современные с террасой современные большие современные со вторым светом современные с подвалом недорогие с мансардой недорогие кирпичные недорогие с гаражом недорогие с террасой недорогие для постоянного проживания недорогие с четырехскатной крышей недорогие с мансардной крышей недорогие с панорамными окнами недорогие с изолированной кухней недорогие с баней недорогие с кабинетом недорогие с котельной недорогие с вторым светом недорогие с балконом недорогие с камином недорогие сложной формы недорогие от 300 до 400 м2 из клееного бруса без гаража Показать все категории Скрыть категории

Похожие проекты
Состав проекта
Входит в стоимость
Цена, руб. Сроки, дней
Комплект архитектурно-строительных чертежей (АС) Входит в стоимость Готов к отправке
Разрабатывается отдельно
Цена, руб. Сроки, дней
Адаптация фундамента (изменение типа фундамента) по запросу 14 рабочих дней
Дизайн интерьера (стоимость от 2200руб. за квад.метр площади) по запросу 30 рабочих дней
Внесение изменений в проект по запросу 20 рабочих дней
Фэншуй дома 20 000 ₽ 14 рабочих дней в корзину
Фэншуй участка 15 000 ₽ 14 рабочих дней в корзину
Фэншуй полная консультация дом+участок с выездом на объект 100 000 ₽ 30 рабочих дней в корзину
Опции проекта вы можете заказать в корзине при оформлении заказа
Отзывы покупателей
Рейтинг покупателей
0 / 5 5 5 1
На основе 1 оценок покупателей
0%
0%
0%
0%
0%
Отзывы о проекте D211
Отзыв о проекте D211
Чтобы оставить отзыв, пожалуйста авторизуйтесь.
Подбор строительной компании
Не знаете кому доверить строительство дома? Мы можем помочь! Подберем для вас из сотен наших партнеров несколько компаний с лучшем соотношением цена/качество под конкретно ваш запрос.
Подобрать