Главная Проекты домов Проект одноэтажного дома из кирпича с просторной гостиной и гаражом на два автомобиля

D2046 Проект одноэтажного дома из кирпича с просторной гостиной и гаражом на два автомобиля

Сравнить проект В избранное
Проект одноэтажного дома из кирпича с просторной гостиной и гаражом на два автомобиля / 1
Проект одноэтажного дома из кирпича с просторной гостиной и гаражом на два автомобиля / 2
Проект одноэтажного дома из кирпича с просторной гостиной и гаражом на два автомобиля / 3
Проект одноэтажного дома из кирпича с просторной гостиной и гаражом на два автомобиля / 4
Проект одноэтажного дома из кирпича с просторной гостиной и гаражом на два автомобиля / 5
Проект одноэтажного дома из кирпича с просторной гостиной и гаражом на два автомобиля / 1
Проект одноэтажного дома из кирпича с просторной гостиной и гаражом на два автомобиля / 2
Проект одноэтажного дома из кирпича с просторной гостиной и гаражом на два автомобиля / 3
Проект одноэтажного дома из кирпича с просторной гостиной и гаражом на два автомобиля / 4
Проект одноэтажного дома из кирпича с просторной гостиной и гаражом на два автомобиля / 5
D2046
166 м²
Подготовка проекта:
33 рабочих дня
Стоимость проекта
Купить проект
Задайте вопросы по проекту нашему архитектору
8 (800) 200-28-83
Время работы: пн-вс: с 9:00 до 20:00
Задать вопрос по проекту

Технические характеристики
Общие
Материал стен
Кирпич
Общая площадь
166 м²
Площадь застройки
200 м²
Приведенная площадь
171.4 м²
Количество жилых комнат/спален
3
Этажи
1 этаж
Гараж
Встроенный гараж
Количество машин
2
Подвал / цокольный этаж
Без подвала
Длина дома
17.34 м
Ширина дома
15.34 м
Высота в коньке
5.83 м
Кровля
Металлочерепица
Облицовка внешних стен
Деревянная вагонка
,
Мокрая штукатурка
Толщина несущих наружных стен
380 мм
Межэтажные перекрытия
Монолитные
Внутренние не несущие перегородки
Кирпичные
Фундамент
Ленточный заглубленный из ФБС
Терраса
Терраса открытая
,
Терраса крытая
Дополнительные
Окна
Окна до пола
Камин
Есть
Сауна/баня внутри
Нет
Площадь гостиной
40.5 м²
Площадь кухни
10 м²
Количество санузлов
2
Окно в ванной комнате
Есть
Котельная
Есть
Кладовая
1
Длина участка
24.34 м
Ширина участка
23.34 м
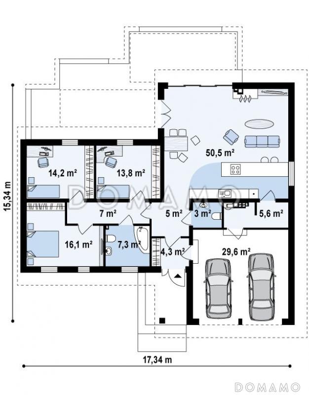
Планы помещений
Фасады
Описание проекта
Компания Domamo предлагает проект одноэтажного дома из кирпича с просторной гостиной и гаражом на два автомобиля D2046. Общая площадь - 166 м2, размер - 17.34х15.34 м. Фундамент - ленточный заглубленный из фбс, кровля - металлочерепица, внешняя отделка - деревянная вагонка мокрая штукатурка. Для заказа проекта или внесения изменений свяжитесь с нами с помощью форм обратной связи на сайте или по телефону +7 (831) 231-05-01.
Категории проекта: с гаражом для постоянного проживания кирпич в классическом стиле от 100 до 200 кв.м кирпичные дома хай-тек классические кирпичные дома дома из кирпича с гаражом с террасой из кирпича с террасой готовые загородные из кирпича одноэтажные из кирпича одноэтажные из кирпича с гаражом одноэтажные кирпичные с котельной одноэтажные одноэтажные с гаражом кирпичные с котельной одноэтажные с котельной с котельной кирпичные до 200 кв.м до 200 кв.м загородные с четырехскатной крышей с камином прямоугольные со встроенным гаражом Проекты одноэтажных домов с террасой Типовые проекты загородных одноэтажных домов с террасой и камином одноэтажные с тремя спальнями Проекты домов с тремя спальнями с гаражом под одной крышей одноэтажные с гаражом и террасой с гаражом на 2 машины с гаражом и террасой одноэтажные до 200 кв м одноэтажные в классическом стиле одноэтажные с четырехскатной крышей одноэтажные прямоугольные одноэтажные с окнами в пол одноэтажные с камином одноэтажные с 2 санузлами одноэтажные с большой гостиной одноэтажные до 180 м2 одноэтажные из кирпича с террасой одноэтажные из кирпича с 3 спальнями с четырехскатной крышей готовые для постоянного проживания с камином с гаражом на 2 машины без подвала классический стиль прямоугольные с большой гостиной классические для постоянного проживания классические с гаражом классические с гаражом на 2 машины классические с 3 спальнями классические с окнами в пол классические с террасой классические готовые классические с котельной классические с большой гостиной классические без подвала классические с 2 санузлами классические прямоугольные классические с камином классические с четырехскатной крышей из клееного бруса без гаража Показать все категории Скрыть категории

Похожие проекты
Состав проекта
Входит в стоимость
Цена, руб. Сроки, дней
Комплект архитектурно-строительных чертежей (АС) Входит в стоимость 33 рабочих дня
Готово к продаже
Цена, руб. Сроки, дней
Паспорт рабочего проекта 8 000 ₽ 5 рабочих дней в корзину
Дополнительная копия проекта формата А3 6 500 ₽ 5 рабочих дней в корзину
Электронная копия проекта (скан распечатанной версии) 4 000 ₽ 3 рабочих дня в корзину
Разрабатывается отдельно
Цена, руб. Сроки, дней
Адаптация фундамента (изменение типа фундамента) по запросу 14 рабочих дней
Дизайн интерьера (стоимость от 2200руб. за квад.метр площади) по запросу 30 рабочих дней
Внесение изменений в проект по запросу 20 рабочих дней
Инженерные разделы: ВК + ОВ + ЭО 21 690 ₽ 33 рабочих дня в корзину
Разработка Генплана участка, в масштабе 1:250 7 500 ₽ 15 рабочих дней в корзину
Фэншуй дома 20 000 ₽ 14 рабочих дней в корзину
Фэншуй участка 15 000 ₽ 14 рабочих дней в корзину
Фэншуй полная консультация дом+участок с выездом на объект 100 000 ₽ 30 рабочих дней в корзину
Опции проекта вы можете заказать в корзине при оформлении заказа
Отзывы покупателей
Рейтинг покупателей
0 / 5 5 5 1
На основе 1 оценок покупателей
0%
0%
0%
0%
0%
Отзывы о проекте D2046
Отзыв о проекте D2046
Чтобы оставить отзыв, пожалуйста авторизуйтесь.
Подбор строительной компании
Не знаете кому доверить строительство дома? Мы можем помочь! Подберем для вас из сотен наших партнеров несколько компаний с лучшем соотношением цена/качество под конкретно ваш запрос.
Подобрать