Главная Проекты домов Проект двухэтажного коттеджа с террасой для узкого участка

D174 Проект двухэтажного коттеджа с террасой для узкого участка

Сравнить проект В избранное
Проект двухэтажного коттеджа с террасой для узкого участка / 1
Проект двухэтажного коттеджа с террасой для узкого участка / 2
Проект двухэтажного коттеджа с террасой для узкого участка / 3
Проект двухэтажного коттеджа с террасой для узкого участка / 4
Проект двухэтажного коттеджа с террасой для узкого участка / 1
Проект двухэтажного коттеджа с террасой для узкого участка / 2
Проект двухэтажного коттеджа с террасой для узкого участка / 3
Проект двухэтажного коттеджа с террасой для узкого участка / 4
D174
174 м²
Подготовка проекта:
15 рабочих дней
Стоимость проекта
Купить проект
Задайте вопросы по проекту нашему архитектору
8 (800) 200-28-83
Время работы: пн-вс: с 9:00 до 20:00
Задать вопрос по проекту

Технические характеристики
Общие
Материал стен
Газобетон
Общая площадь
174 м²
Жилая площадь
105.5 м²
Площадь застройки
134.6 м²
Приведенная площадь
162.962 м²
Количество жилых комнат/спален
5
Этажи
2 этажа
Гараж
Нет гаража
Подвал / цокольный этаж
Без подвала
Длина дома
12.0 м
Ширина дома
9.0 м
Высота в коньке
9.27 м
Кровля
Натуральная черепица
Облицовка внешних стен
Облицовочный кирпич
Толщина несущих наружных стен
375 мм
Межэтажные перекрытия
Сборные
Внутренние не несущие перегородки
Газобетонные
Фундамент
Монолитная ж/бетонная плита
Терраса
Терраса открытая
,
Терраса крытая
Дополнительные
Окна
Окна до пола
,
Окна с французским балконом
Камин
Есть
Сауна/баня внутри
Нет
Площадь гостиной
20 м²
Площадь кухни
12.76 м²
Количество санузлов
3
Окно в ванной комнате
Есть
Котельная
Есть
Кабинет
Есть
Хозяйский санузел
Есть
Хозяйская гардеробная
Есть
Кладовая
2
Балкон / лоджия
Балкон
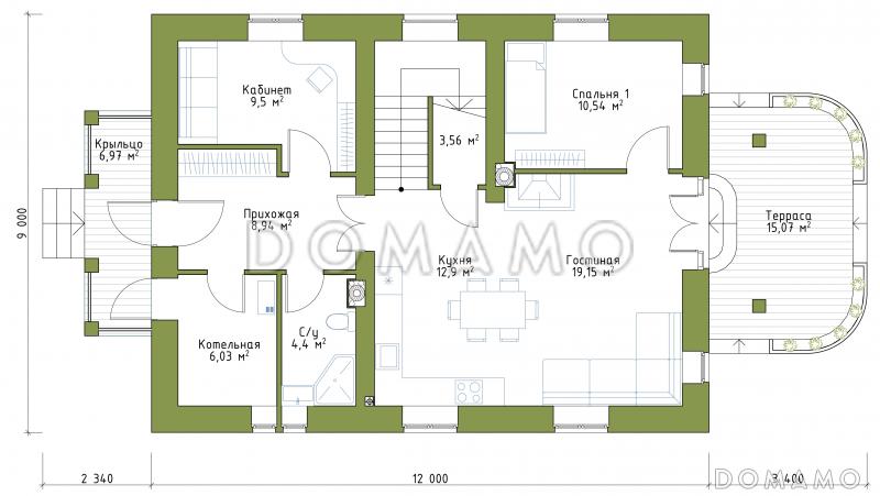
Планы помещений
Фасады
Описание проекта
Представительная усадьба с парадным фасадом, облицованным кирпичом и коваными ограждениями, для постоянного проживания семьи из 4-5 человек.

Главным помещением первого этажа является кухня-гостиная с панорамным остеклением и выходом на просторную террасу — дополнительную зону для летнего отдыха. На первом этаже размещены гостевая спальня, кабинет. При входе — просторная прихожая, котельная и санузел. На втором этаже находятся две детских спальни, большая ванная комната и хозяйская спальня с собственным санузлом, гардеробной и выходом на балкон, с которого открывается вид на ваш участок.
Стоит отметить большую приватную зону при хозяйской спальне, а также  - наличие двух жилых помещений на 1 этаже (что нечасто бывает в домах такой площади).
Возможна перепланировка 1 этажа, с расширением гостиной за счет спальни (10,5м2). При этом возможно выделение кухни в отдельную обособленную комнату, с перегородкой между нею и гостиной.
Высота 1 этажа = 3,1м. Высота 2 этажа = 3,0м. На втором этаже - кровельных скатов нет.
Терраса накрыта кровлей, может быть остеклена без изменений  в конструкциях.
Дом имеет ширину всего 9,0м, и может быть поставлен на участок шириной от 15 метров. Парадный вход с торца дома позволяет разместить дом лицом к узкой въездной стороне участка.
Узкие (шириной 15-20 метров и длиной до 150 метров) участки - характерны для Российской деревни 19-20 веков, когда на улицу была обращена узкая сторона, а за домом тянулся длинный кусок земли с огородом. Часто и теперь, покупая землю под ИЖС в деревнях, застройщики сталкиваются с такой нарезкой участков.
Терраса на заднем, садовом фасаде, позволяет получить вид на свой участок в приватной зоне. Когда садовая часть участка отделена от въезда домом.
Терраса имеет выход из гостиной-кухни, что удобно для выноса блюд, самовара и мебели из кухни на террасу и обратно.
Категории проекта: для постоянного проживания пенобетон в английском стиле в классическом стиле от 100 до 200 кв.м с эркером с террасой из газобетона с эркером из газобетона в английском стиле из газобетона готовые двухэтажные с котельной двухэтажные из газобетона из газосиликатных блоков двухэтажные из пеноблоков до 200 кв.м 9х12 загородные с четырехскатной крышей из керамзитобетонных блоков с камином с гардеробной прямоугольные с балконом из газобетона с террасой двухэтажные с эркером из блоков двухэтажные из блоков из блоков с эркером Проекты домов из пеноблоков с эркером из пеноблоков с террасой загородные из газобетона Проекты двухэтажных домов с террасой Проекты двухэтажных домов с верандой без гаража с террасой и камином облицованные кирпичом с кабинетом двухэтажные 200 кв м двухэтажные от 150 до 200 кв м недорогие с балконом и террасой из пеноблоков загородные с 5 спальнями двухэтажные до 180 кв.м двухэтажные с камином двухэтажные с балконом двухэтажные с балконом и террасой двухэтажные в классическом стиле двухэтажные эконом класса двухэтажные без гаража из газобетона до 200 кв.м из газобетона от 100 до 200 кв.м из газобетона с четырехскатной крышей из газобетона в классическом стиле из газобетона с балконом из газобетона с котельной из газобетона прямоугольные из газобетона готовые из газобетона с камином из газобетона с кабинетом из газобетона 9х12 из газобетона недорогие из газобетона для постоянного проживания двухэтажные из газобетона без гаража двухэтажные из газобетона с террасой двухэтажные из газобетона недорогие двухэтажные из газобетона с камином двухэтажные из газобетона с кабинетом двухэтажные из газобетона с котельной двухэтажные из газобетона в английском стиле двухэтажные из газобетона классические двухэтажные из газобетона с четырехскатной крышей двухэтажные из газобетона до 200 кв. м двухэтажные из газобетона без подвала двухэтажные из газобетона с эркером классические для постоянного проживания классические без гаража классические с окнами в пол классические с террасой классические готовые классические недорогие классические с котельной классические без подвала классические с балконом классические прямоугольные классические с камином классические с четырехскатной крышей классические с кабинетом из пеноблоков в английском стиле из пеноблоков в классическом стиле из пеноблоков с четырехскатной крышей из пеноблоков с окнами до пола из пеноблоков прямоугольные из пеноблоков с балконом из пеноблоков для постоянного проживания из пеноблоков недорогие из пеноблоков готовые из пеноблоков с камином из пеноблоков 9х12 из пеноблоков от 100 до 200 м2 недорогие двухэтажные недорогие в английском стиле недорогие без гаража недорогие с террасой недорогие для постоянного проживания недорогие с четырехскатной крышей недорогие с окнами до пола недорогие без бани недорогие с кабинетом недорогие с котельной недорогие с балконом недорогие с камином недорогие прямоугольные недорогие 9х12 недорогие от 100 до 200 м2 из клееного бруса без гаража Показать все категории Скрыть категории

Похожие проекты
Состав проекта
Входит в стоимость
Цена, руб. Сроки, дней
Паспорт рабочего проекта Входит в стоимость 15 рабочих дней
Готово к продаже
Цена, руб. Сроки, дней
Комплект архитектурно-строительных чертежей (АС) 27 000 ₽ 15 рабочих дней в корзину
Дополнительная копия проекта формата А3 4 000 ₽ 15 рабочих дней в корзину
Электронная копия проекта (скан распечатанной версии) 4 000 ₽ 3 рабочих дня в корзину
Разрабатывается отдельно
Цена, руб. Сроки, дней
Адаптация фундамента (изменение типа фундамента) по запросу 14 рабочих дней
Дизайн интерьера (стоимость от 2200руб. за квад.метр площади) по запросу 30 рабочих дней
Внесение изменений в проект по запросу 20 рабочих дней
Зеркалирование проекта (для которого нет зеркальной версии) 8 000 ₽ 5 рабочих дней в корзину
Разработка Генплана участка, в масштабе 1:250 7 500 ₽ 5 рабочих дней в корзину
Фэншуй дома 20 000 ₽ 14 рабочих дней в корзину
Фэншуй участка 15 000 ₽ 14 рабочих дней в корзину
Фэншуй полная консультация дом+участок с выездом на объект 100 000 ₽ 30 рабочих дней в корзину
Опции проекта вы можете заказать в корзине при оформлении заказа
Отзывы покупателей
Рейтинг покупателей
0 / 5 5 5 1
На основе 1 оценок покупателей
0%
0%
0%
0%
0%
Отзывы о проекте D174
Отзыв о проекте D174
Чтобы оставить отзыв, пожалуйста авторизуйтесь.
Подбор строительной компании
Не знаете кому доверить строительство дома? Мы можем помочь! Подберем для вас из сотен наших партнеров несколько компаний с лучшем соотношением цена/качество под конкретно ваш запрос.
Подобрать