Двухэтажный коттедж в современном стиле, который идеально подойдет для жизни семьи из пяти-шести человек. Каменная кладка и большие окна, расположенные по всему периметру дома, — главные украшения его экстерьера.
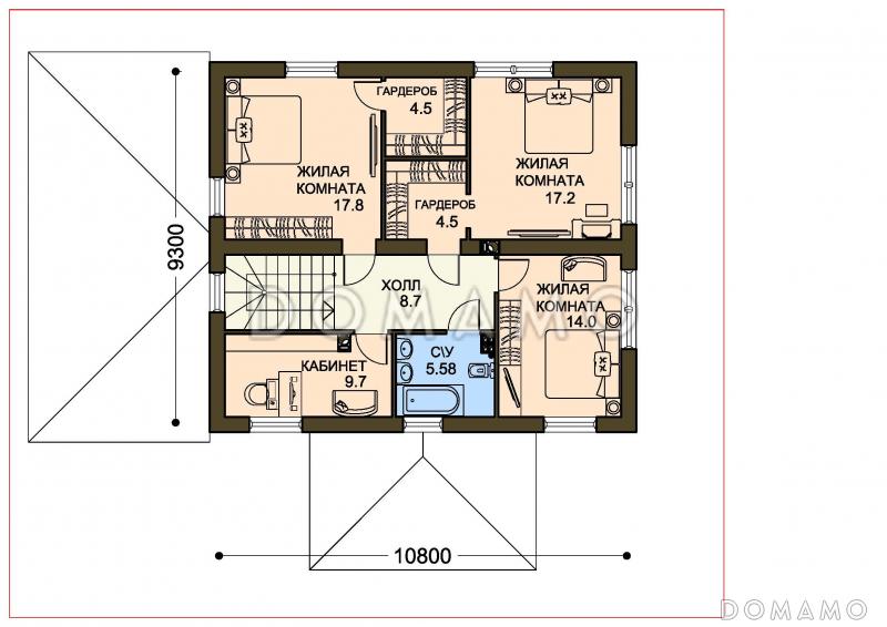
На первом этаже дома располагается небольшая кухня с выходом в просторную гостиную-столовую, а также одна из спальных комнат. Второй этаж включает в себя три спальни и кабинет.
В проекте предусмотрено наличие гаража с парковочным местом для одного автомобиля.
Расположение одной из спальных комнат на первом этаже оценят старшие члены семьи.