Проект особняка в стиле эклектика, который понравится любителям колоритной архитектуры. Геометричность форм строения, лаконично совмещенная с витыми перегородками и массивными колоннами, делает его внешний вид элегантным, но не вычурным.
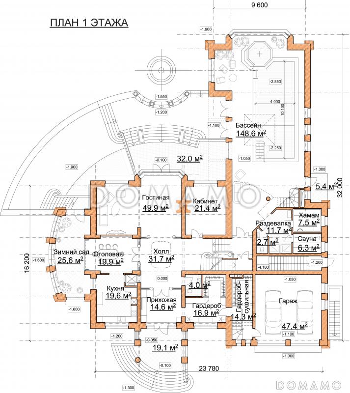
На цокольном этаже коттеджа располагается просторная комната, где можно оборудовать библиотеку или же домашний кинотеатр, винный погреб и различные технические помещения. Поднявшись на первый этаж, мы окажемся в холле, откуда можно пройти в гостиную или объединенную кухню-столовую и далее — в зимний сад. Здесь же находится хозяйский кабинет, сауна с душем и большой бассейн. Второй этаж отведен под четыре спальных комнаты, в одной из которых предусмотрена собственная гардеробная и выход на балкон. На мансардном этаже помещение, которые можно отвести под игровую или спорт зал, также гостевая комната и еще один кабинет.
В проекте предусмотрено наличие гаража с парковочными местами для двух автомобилей.
На цокольном этаже находится большая зона отдыха, где хозяева смогут проводить свободное время.