Главная Проекты домов Проект одноэтажного дома из кирпича с небольшой мансардой и с гаражом на два автомобиля

D1271 Проект одноэтажного дома из кирпича с небольшой мансардой и с гаражом на два автомобиля

Сравнить проект В избранное
Проект одноэтажного дома из кирпича с небольшой мансардой и с гаражом на два автомобиля / 1
Проект одноэтажного дома из кирпича с небольшой мансардой и с гаражом на два автомобиля / 2
Проект одноэтажного дома из кирпича с небольшой мансардой и с гаражом на два автомобиля / 3
Проект одноэтажного дома из кирпича с небольшой мансардой и с гаражом на два автомобиля / 4
Проект одноэтажного дома из кирпича с небольшой мансардой и с гаражом на два автомобиля / 1
Проект одноэтажного дома из кирпича с небольшой мансардой и с гаражом на два автомобиля / 2
Проект одноэтажного дома из кирпича с небольшой мансардой и с гаражом на два автомобиля / 3
Проект одноэтажного дома из кирпича с небольшой мансардой и с гаражом на два автомобиля / 4
D1271
252 м²
Подготовка проекта:
33 рабочих дня
Стоимость проекта
Купить проект
Задайте вопросы по проекту нашему архитектору
8 (800) 200-28-83
Время работы: пн-вс: с 9:00 до 20:00
Задать вопрос по проекту

Технические характеристики
Общие
Материал стен
Кирпич
Общая площадь
252 м²
Площадь застройки
218.3 м²
Приведенная площадь
230.3 м²
Количество жилых комнат/спален
5
Этажи
1 этаж + мансарда
Гараж
Встроенный гараж
Количество машин
2
Подвал / цокольный этаж
Без подвала
Длина дома
17.34 м
Ширина дома
15.84 м
Высота в коньке
6.79 м
Кровля
Металлочерепица
Облицовка внешних стен
Мокрая штукатурка
Толщина несущих наружных стен
380 мм
Межэтажные перекрытия
Монолитные
Внутренние не несущие перегородки
Кирпичные
Фундамент
Ленточный заглубленный из ФБС
Терраса
Терраса крытая
Дополнительные
Окна
Окна до пола
,
Панорамные окна
Мансардные окна
Есть
Камин
Есть
Сауна/баня внутри
Нет
Площадь гостиной
47.5 м²
Площадь кухни
9.6 м²
Количество санузлов
3
Окно в ванной комнате
Есть
Котельная
Есть
Кабинет
Есть
Кладовая
1
Длина участка
26.34 м
Ширина участка
23.84 м
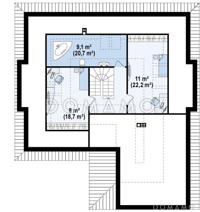
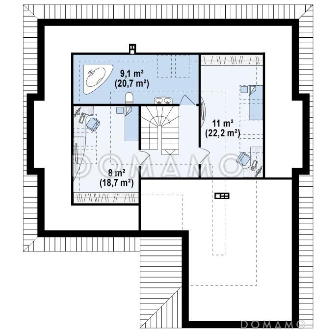
Планы помещений
Описание проекта

Проект дома в современном стиле с гаражом на две машины и пятью спальнями подойдет для строительства загородного жилья семье из 5-6 человек. Кирпичное здание облицовано штукатуркой, основное украшение фасада — панорамные окна и терраса с прозрачной крышей.

Планировка первого этажа включает в себя 3 спальни, 2 санузла и, конечно, гостиную. Она занимает 47,5 кв.м, оборудована камином, окнами в пол и выходом на террасу. Кухонная зона имеет огороженное пространство для обустройства кладовой. Пройти в гараж можно через котельную. На мансарде расположены еще две небольшие спальни и просторная ванная.

Преимущества и особенности:

  • гараж площадью 31,5 кв.м подойдет для двух автомобилей,

  • прозрачная крыша террасы не затеняет окна и в то же время укрывает находящихся на свежем воздухе людей во время дождя или слишком горячего солнца.

Категории проекта: с мансардой с гаражом с мансардой и гаражом для постоянного проживания кирпич современные от 200 до 300 кв.м кирпичные дома с мансардой дома из кирпича с гаражом в европейском стиле с террасой из кирпича с террасой готовые загородные из кирпича одноэтажные из кирпича одноэтажные из кирпича с гаражом одноэтажные из кирпича с мансардой одноэтажные кирпичные с котельной одноэтажные с гаражом одноэтажные с мансардой кирпичные с котельной одноэтажные с котельной с котельной одноэтажные с гаражом и мансардой загородные с четырехскатной крышей с камином прямоугольные со встроенным гаражом с панорамным остеклением современные кирпичные Проекты одноэтажных домов с террасой Типовые проекты загородных одноэтажных домов с террасой и камином с кабинетом с гаражом под одной крышей одноэтажные с гаражом и террасой с гаражом на 2 машины с мансардой и террасой полутораэтажные с гаражом и террасой с панорамными окнами и террасой полутораэтажные из кирпича с 5 спальнями одноэтажные с мансардными окнами с мансардой с котельной с мансардой с камином с мансардой с четырехскатной крышей с мансардой современные с мансардой с панорамными окнами с мансардой с окнами до пола с мансардой с мансардными окнами с мансардой прямоугольные с мансардой готовые с мансардой для постоянного проживания с четырехскатной крышей готовые для постоянного проживания с камином с гаражом на 2 машины без подвала современные с панорамными окнами прямоугольные с большой гостиной одноэтажные с мансардой для постоянного проживания одноэтажные с мансардой с панорамными окнами одноэтажные с мансардой современные современные с гаражом современные с панорамными окнами современные с окнами в пол современные с террасой недорогие с панорамными окнами из клееного бруса без гаража Показать все категории Скрыть категории

Похожие проекты
Состав проекта
Входит в стоимость
Цена, руб. Сроки, дней
Комплект архитектурно-строительных чертежей (АС) Входит в стоимость 33 рабочих дня
Готово к продаже
Цена, руб. Сроки, дней
Паспорт рабочего проекта 8 000 ₽ 5 рабочих дней в корзину
Дополнительная копия проекта формата А3 6 500 ₽ 5 рабочих дней в корзину
Электронная копия проекта (скан распечатанной версии) 4 000 ₽ 3 рабочих дня в корзину
Разрабатывается отдельно
Цена, руб. Сроки, дней
Адаптация фундамента (изменение типа фундамента) по запросу 14 рабочих дней
Дизайн интерьера (стоимость от 2200руб. за квад.метр площади) по запросу 30 рабочих дней
Внесение изменений в проект по запросу 20 рабочих дней
Инженерные разделы: ВК + ОВ + ЭО 25 980 ₽ 33 рабочих дня в корзину
Разработка Генплана участка, в масштабе 1:250 7 500 ₽ 15 рабочих дней в корзину
Фэншуй дома 20 000 ₽ 14 рабочих дней в корзину
Фэншуй участка 15 000 ₽ 14 рабочих дней в корзину
Фэншуй полная консультация дом+участок с выездом на объект 100 000 ₽ 30 рабочих дней в корзину
Опции проекта вы можете заказать в корзине при оформлении заказа
Отзывы покупателей
Рейтинг покупателей
0 / 5 5 5 1
На основе 1 оценок покупателей
0%
0%
0%
0%
0%
Отзывы о проекте D1271
Отзыв о проекте D1271
Чтобы оставить отзыв, пожалуйста авторизуйтесь.
Подбор строительной компании
Не знаете кому доверить строительство дома? Мы можем помочь! Подберем для вас из сотен наших партнеров несколько компаний с лучшем соотношением цена/качество под конкретно ваш запрос.
Подобрать