Главная Проекты домов Проект деревянного дома из клееного бруса с отдельным входом в котельную

D1031 Проект деревянного дома из клееного бруса с отдельным входом в котельную

Сравнить проект В избранное
Проект деревянного дома из клееного бруса с отдельным входом в котельную / 1
Проект деревянного дома из клееного бруса с отдельным входом в котельную / 1
D1031
223 м²
Домокомплект
Артикул проекта: Пушкино
Компания: ГК "Приозерский лесокомбинат"
Стоимость домокомплекта
4 099 000 ₽
Заказать подробную смету
+7 (921) XXX-XX-XX Показать телефон
Задать вопрос по проекту
Технические характеристики
Общие
Материал стен
Клееный брус
Общая площадь
223 м²
Приведенная площадь
173.37 м²
Количество жилых комнат/спален
3
Этажи
2 этажа
Гараж
Нет гаража
Подвал / цокольный этаж
Без подвала
Длина дома
13.4 м
Ширина дома
9.1 м
Облицовка внешних стен
Без облицовки
Толщина несущих наружных стен
166 мм
Межэтажные перекрытия
По деревянным балкам
Внутренние не несущие перегородки
Каркасно-обшивные
Терраса
Терраса крытая
,
Терраса застекленная (веранда)
Дополнительные
Окна
Окна до пола
Сауна/баня внутри
Есть
Площадь гостиной
20.5 м²
Площадь кухни
17.3 м²
Количество санузлов
3
Окно в ванной комнате
Есть
Котельная
Есть
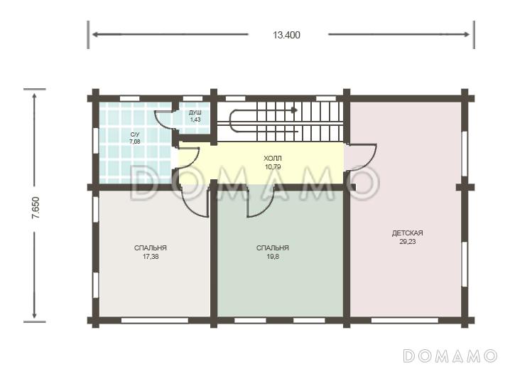
Планы помещений
Описание проекта

Этот деревянный дом с тремя спальнями и детской – удачный вариант для семьи из 4-5 человек. Экстерьер здания обладает присущей скандинавскому стилю минималистичностью и строгостью.

Планировка отличается функциональностью. Входная дверь с террасы ведет в прихожую, где предусмотрено место под вместительные шкафы. Далее с одной стороны холла расположена зона с сауной и котельной, а с другой – жилые помещения: гостиная, спальня, столовая с кухней. Второй этаж занимают 2 спальни, детская и санузел.

Преимущества и особенности:

  • кухня-столовая дополняется застекленной верандой с хорошим обзором,

  • котельная дает возможность жить в таком доме круглый год.

Категории проекта: деревянные для постоянного проживания из клееного бруса в английском стиле в скандинавском стиле от 200 до 300 кв.м в европейском стиле с террасой из бруса в стиле замка в финском стиле двухэтажные с котельной двухэтажные деревянные с баней с двухскатной крышей загородные с сауной прямоугольные с верандой Проекты деревянных домов с террасой Проекты деревянных домов с баней Проекты двухэтажных домов из клееного бруса Проекты двухэтажных домов с террасой Проекты двухэтажных домов с верандой без гаража Проекты домов с тремя спальнями деревянные для круглогодичного проживания двухэтажные с сауной от 200 до 250 м двухэтажные с двускатной крышей двухэтажные с 3 спальнями двухэтажные без гаража скандинавские для постоянного проживания скандинавские без гаража скандинавские с окнами в пол скандинавские с террасой скандинавские с большой кухней скандинавские прямоугольные скандинавские от 200 до 300 м2 скандинавские с двухскатной крышей скандинавские с котельной деревянные в скандинавском стиле деревянные с окнами в пол деревянные прямоугольные деревянные без гаража деревянные домокомплекты деревянные без подвала деревянные с 3 спальнями деревянные с большой кухней деревянные с баней деревянные с изолированной кухней деревянные от 200 до 300 м2 из клееного бруса домокомплект из клееного бруса для постоянного проживания из клееного бруса с окном в ванной комнате из клееного бруса прямоугольный из клееного бруса с окнами в пол (в гостиной) из клееного бруса с окнами в пол (на кухне) из клееного бруса с окнами в пол из клееного бруса в скандинавском стиле из клееного бруса с двухскатной крышей из клееного бруса с каркасно-обшивными перегородками из клееного бруса без облицовки из клееного бруса с перекрытиями по деревянным балкам из клееного бруса с котельной из клееного бруса с изолированной кухней из клееного бруса с сауной/баней внутри из клееного бруса с крытой терассой из клееного бруса без подвала из клееного бруса без гаража из клееного бруса двухэтажные из клееного бруса от 200 до 300 м2 Показать все категории Скрыть категории

Похожие проекты
Состав проекта
Входит в стоимость
Цена, руб. Сроки, дней
Комплект архитектурно-строительных чертежей (АС) Входит в стоимость Готов к отправке
Разрабатывается отдельно
Цена, руб. Сроки, дней
Адаптация фундамента (изменение типа фундамента) по запросу 14 рабочих дней
Дизайн интерьера (стоимость от 2200руб. за квад.метр площади) по запросу 30 рабочих дней
Внесение изменений в проект по запросу 20 рабочих дней
Фэншуй дома 20 000 ₽ 14 рабочих дней в корзину
Фэншуй участка 15 000 ₽ 14 рабочих дней в корзину
Фэншуй полная консультация дом+участок с выездом на объект 100 000 ₽ 30 рабочих дней в корзину
Опции проекта вы можете заказать в корзине при оформлении заказа
Отзывы покупателей
Рейтинг покупателей
0 / 5 5 5 1
На основе 1 оценок покупателей
0%
0%
0%
0%
0%
Отзывы о проекте D1031
Отзыв о проекте D1031
Чтобы оставить отзыв, пожалуйста авторизуйтесь.
Подбор строительной компании
Не знаете кому доверить строительство дома? Мы можем помочь! Подберем для вас из сотен наших партнеров несколько компаний с лучшем соотношением цена/качество под конкретно ваш запрос.
Подобрать